CO
Beechcroft Road, Chessington, Surrey. KT9 1RL
By Compass Property & Letting
£ 585,000
Reviews
3 out of 5 stars
Compass Property & Letting says ..
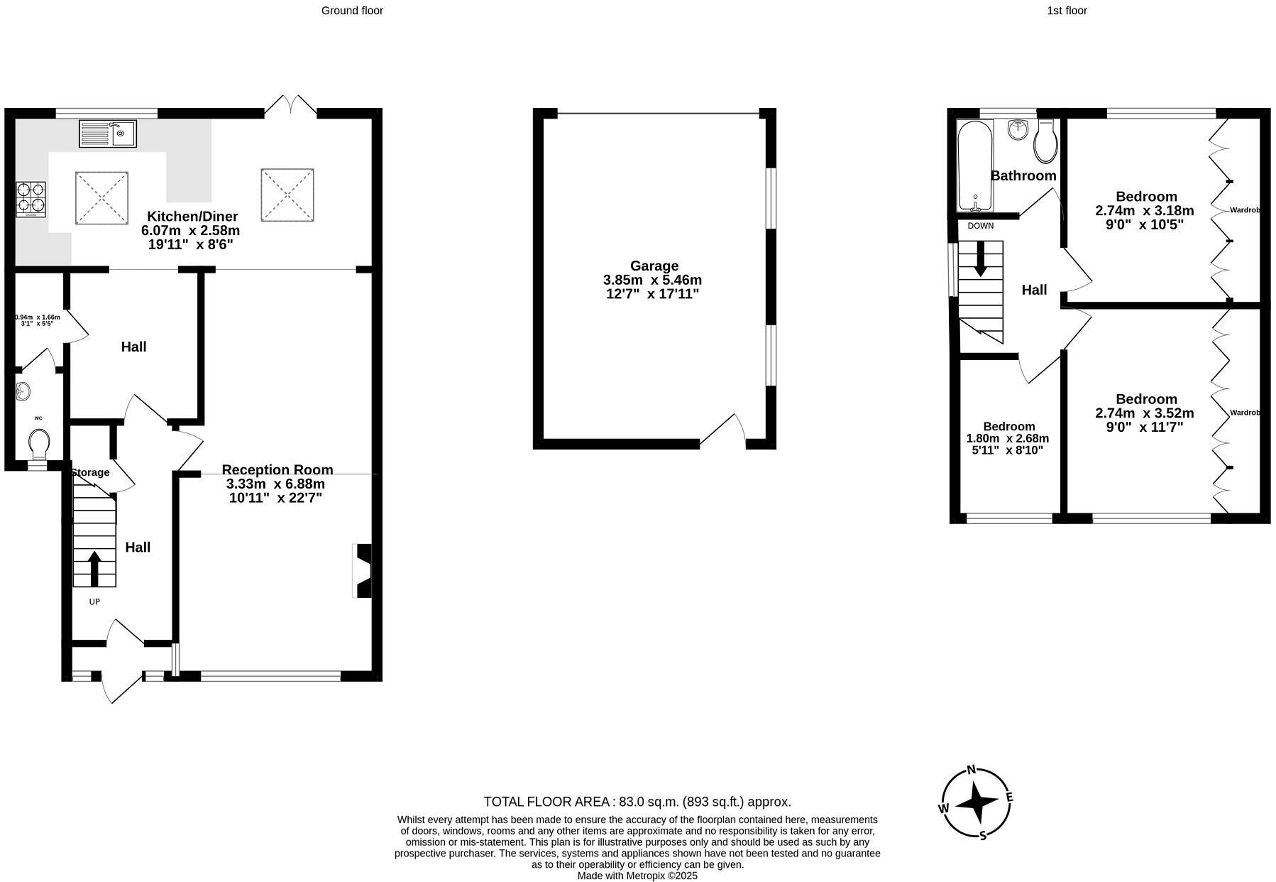
A well presented three bedroom extended semi detached house offered for sale in one of the most popular and convenient locations in Chessington. An ideal family home, viewings highly recommended. An ideal family home, viewings highly recommended.
Property Oracle says ..
Therefore, we give this property 7 / 10. *Disclaimer: This is our option and does constitute a recommendation or financial advice. Do your own research. *
- Price
- 6
- Condition
- 8
- Location
- 8
- Land
- 7
- Bedrooms
- 3
- Bathrooms
- 1
- Sqft (est)
- 893.40
The heatmap indicates the level of crime in the area. The color of the heatmap indicates the crime severity and recency.
Metrics Year-on-Year
- Average area value
- 508,970.00 £Decreased by 1.26 %
- Est sale value
- 527,106.00 £Increased by 13.46 %
- Average area rental value
- 1,835.00 £/moDecreased by 6.71 %
- Est letting value
- 1,786.80 £/moIncreased by 100.00 %
- Est rental Yield
- 4.33 %Decreased by 5.46 %
- Crime Rate
- 5.00 %Unchanged by 0.00 %
from 515,463.00 £
from 464,568.00 £
from 1,967.00 £/mo
from 893.40 £/mo
from 4.58 %
from 5.00 %
Agent Activity
Compass Property & Letting created the listing.
Nearby Schools
| Name | Type | Ofsted | Distance |
|---|---|---|---|
| Tolworth Girls' School And Sixth Form | Academy Converter | Outstanding | 0.34 KM |
| Chessington Children'S Centre | Children's Centre | 0.78 KM | |
| Castle Hill Primary School | Academy Converter | Good | 0.78 KM |
| Southborough High School | Academy Converter | Good | 0.94 KM |
| Tolworth Junior School | Community School | Good | 1.17 KM |
Images
Nearby Streets
| Name | Average Price | Average Sqft | Distance |
|---|---|---|---|
| Durbin Road | £ 450,000 | 0 | 0.00 KM |
| Baden-Powell Close | £ 0 | 0 | 0.00 KM |
| The Causeway | £ 500,000 | 0 | 0.00 KM |
| Queen Mary Close | £ 0 | 0 | 0.00 KM |
| Thornhill Avenue | £ 0 | 0 | 0.00 KM |
Nearby Transport
| Name | NLC | TLC | Distance |
|---|---|---|---|
| Chessington North | 5582 | CSN | 1.12 KM |
| Tolworth | 5573 | TOL | 1.74 KM |
| Chessington South | 5554 | CSS | 2.29 KM |
| Surbiton | 5571 | SUR | 2.52 KM |
| Berrylands | 5581 | BRS | 3.38 KM |
Nearby Listings
| Address | Price | Type | Score | Distance |
|---|---|---|---|---|
| Beechcroft Road, Chessington, Surrey. KT9 1RL | £ 585,000 | BUY | 7 / 10 | 0.00 KM |
| Oakcroft Road, Chessington, Surrey. KT9 1RH | £ 450,000 | BUY | 6 / 10 | 0.13 KM |
| Oakcroft Road, Chessington, KT9 | £ 600,000 | BUY | 7 / 10 | 0.13 KM |
| Ashcroft Road, Chessington, Surrey, KT9 | £ 525,000 | BUY | 6 / 10 | 0.13 KM |
| Ashcroft Road, Chessington, Surrey. KT9 | £ 500,000 | BUY | 7 / 10 | 0.13 KM |
Nearby Properties
| Address | Price | Distance |
|---|---|---|
| 4 Beechcroft Road | £ 553,000 | 0.00 KM |
| 28 Beechcroft Road | £ 455,000 | 0.00 KM |
| 18 Beechcroft Road | £ 359,950 | 0.00 KM |
| 13 Beechcroft Road | £ 442,000 | 0.00 KM |
| 15 Beechcroft Road | £ 410,000 | 0.00 KM |