Manor Road, GUILDFORD, GU2
By Hipps Estate Agents Ltd
£ 429,950
Reviews
3 out of 5 stars
Hipps Estate Agents Ltd says ..
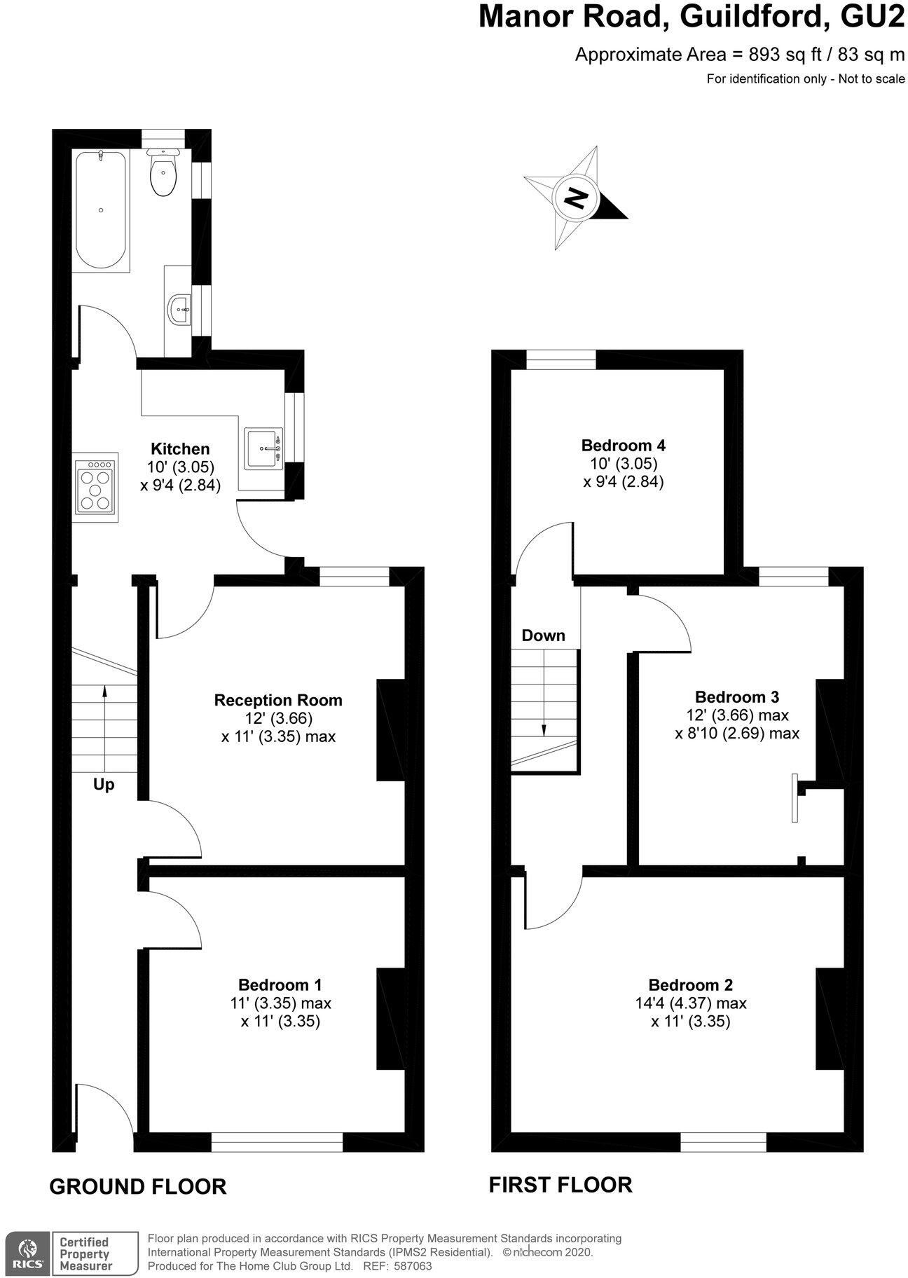
This conveniently located , well presented home comes to the market with tenants in situ. The ground flooroffers two separate reception rooms, fitted kitchen and bathroom whilst the first floor benefits from three bedrooms. Further benefits include gas central heating, double glazing, parking ...
Property Oracle says ..
The property is located in Stoughton, Guildford, Surrey. Based on the provided information and images, the property appears to be a three-bedroom house with one bathroom. The property has a garden, which is visible in the provided images. The location is close to Stoughton Infant School (0.24 KM) and The Hope Service (0.34 KM), which is rated as outstanding by Ofsted. Guildford train station is approximately 2.02 KM away. The property’s condition appears to be generally good, though some minor cosmetic updates might enhance its overall appeal. The kitchen and bathroom appear functional but could benefit from some modernizing. The property is a terraced house and appears well-maintained from the exterior images. The list price of £429,950 is lower than the average price of £517,072 for the area. However, the average price per square foot in the area is £530, while this property is listed at approximately £482 per sqft (£429,950 / 893.40 sqft). The smaller plot size (0.00 sqft) compared to other properties in the area may contribute to the lower price. Nearby comparable properties on Aragorn Court range from £141,000 to £228,000, suggesting the list price is at the higher end of the range for this specific street. The lack of plot size information for some nearby listings makes a direct comparison difficult.
Therefore, we give this property 7 / 10. *Disclaimer: This is our option and does constitute a recommendation or financial advice. Do your own research. *
- Price
- 7
- Condition
- 7
- Location
- 8
- Land
- 7
- Bedrooms
- 3
- Bathrooms
- 1
- Sqft (est)
- 893.40
The heatmap indicates the level of crime in the area. The color of the heatmap indicates the crime severity and recency.
Metrics Year-on-Year
- Average area value
- 494,444.00 £Increased by 7.93 %
- Est sale value
- 457,420.80 £Decreased by 1.35 %
- Average area rental value
- 1,841.00 £/moDecreased by 9.22 %
- Est letting value
- 893.40 £/moDecreased by 50.00 %
- Est rental Yield
- 4.47 %Decreased by 15.82 %
- Crime Rate
- 4.00 %Unchanged by 0.00 %
Agent Activity
Hipps Estate Agents Ltd marked this listing as sold.
Hipps Estate Agents Ltd created the listing.
Nearby Schools
| Name | Type | Ofsted | Distance |
|---|---|---|---|
| Stoughton Infant School | Academy Converter | 0.24 KM | |
| The Hope Service | Pupil Referral Unit | Outstanding | 0.34 KM |
| Northmead Junior School | Academy Converter | 0.57 KM | |
| Christ'S College, Guildford | Academy Converter | Requires improvement | 0.86 KM |
| Wey Valley College | Academy Alternative Provision Converter | 1.12 KM |
Images
Nearby Streets
| Name | Average Price | Average Sqft | Distance |
|---|---|---|---|
| Percy Road | £ 0 | 0 | 0.00 KM |
| Aldershot Road | £ 120,000 | 0 | 0.00 KM |
| Stratton Court | £ 220,000 | 0 | 0.00 KM |
| A3 | £ 220,000 | 0 | 0.00 KM |
| Midleton Road | £ 0 | 0 | 0.00 KM |
Nearby Transport
| Name | NLC | TLC | Distance |
|---|---|---|---|
| Guildford | 5631 | GLD | 2.02 KM |
| London Road (Guildford) | 5632 | LRD | 2.95 KM |
| Worplesdon | 5686 | WPL | 4.04 KM |
| Shalford (Surrey) | 5638 | SFR | 4.95 KM |
| Farncombe | 5643 | FNC | 6.49 KM |
Nearby Listings
| Address | Price | Type | Score | Distance |
|---|---|---|---|---|
| Manor Road, GUILDFORD, GU2 | £ 429,950 | BUY | 7 / 10 | 0.00 KM |
| South Road, Guildford, Surrey, GU2 | £ 400,000 | BUY | 7 / 10 | 0.02 KM |
| Aragorn Court, Guildford, GU2 | £ 220,000 | BUY | Unknown | 0.03 KM |
| South Road, Guildford, Surrey, GU2 | £ 475,000 | BUY | Unknown | 0.03 KM |
| Aragorn Court, Guildford, GU2 | £ 190,000 | BUY | 6 / 10 | 0.05 KM |
Nearby Properties
| Address | Price | Distance |
|---|---|---|
| 7 Aragorn Court | £ 228,000 | 0.02 KM |
| 8 Aragorn Court | £ 217,500 | 0.02 KM |
| 2 Aragorn Court | £ 228,000 | 0.02 KM |
| 6 Aragorn Court | £ 141,000 | 0.02 KM |
| 4 Aragorn Court | £ 212,500 | 0.02 KM |