KE
Sunset Drive, Romford, RM4
By Keller Williams
£ 175,000
Reviews
3 out of 5 stars
Keller Williams says ..
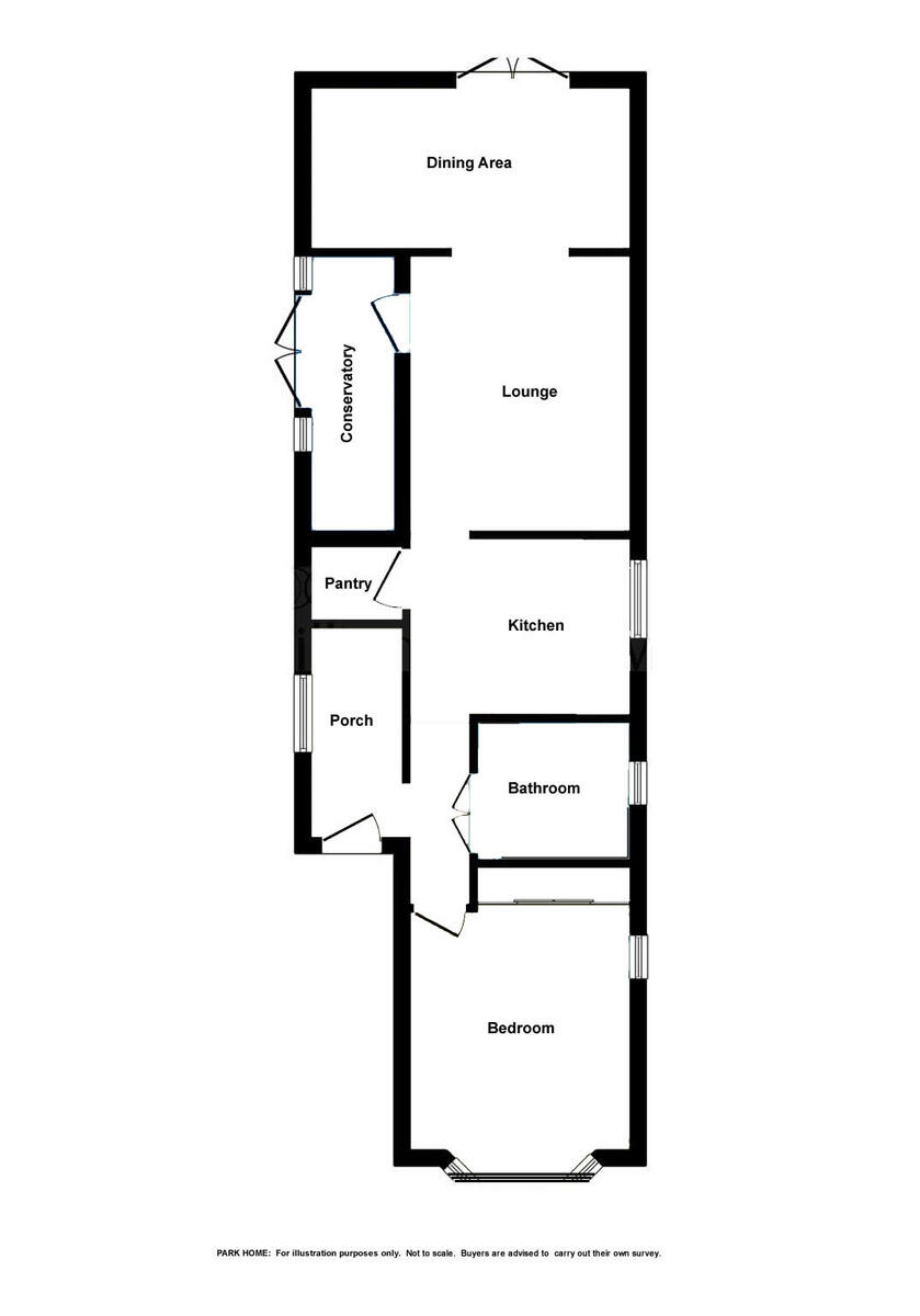
If you are looking for something spacious but cosy then you need to see this! Well-presented 1 bedroom Park Home in an over 50’s complex, private garden and lovely location
Property Oracle says ..
Therefore, we give this property 7 / 10. *Disclaimer: This is our option and does constitute a recommendation or financial advice. Do your own research. *
- Price
- 8
- Condition
- 8
- Location
- 7
- Land
- 7
- Bedrooms
- 1
- Bathrooms
- 1
- Sqft (est)
- 592.00
The heatmap indicates the level of crime in the area. The color of the heatmap indicates the crime severity and recency.
Metrics Year-on-Year
- Average area value
- 297,629.00 £Increased by 0.56 %
- Est sale value
- 252,784.00 £Increased by 45.24 %
- Average area rental value
- 1,009.00 £/moDecreased by 1.85 %
- Est letting value
- 592.00 £/moUnchanged by 0.00 %
- Est rental Yield
- 4.07 %Decreased by 2.40 %
- Crime Rate
- 2.00 %Unchanged by 0.00 %
from 295,957.00 £
from 174,048.00 £
from 1,028.00 £/mo
from 592.00 £/mo
from 4.17 %
from 2.00 %
Agent Activity
Keller Williams created the listing.
Nearby Schools
| Name | Type | Ofsted | Distance |
|---|---|---|---|
| St Ursula'S Catholic Primary School | Voluntary Aided School | Outstanding | 0.53 KM |
| Hilldene Primary School | Community School | Good | 0.80 KM |
| Hilldene | Children's Centre | 0.88 KM | |
| Koru | Other Independent School | Good | 1.02 KM |
| Ingrebourne Children'S Centre | Children's Centre | 1.31 KM |
Images
Nearby Streets
| Name | Average Price | Average Sqft | Distance |
|---|---|---|---|
| Appleby Green | £ 0 | 0 | 0.00 KM |
| Cowley Road | £ 290,000 | 0 | 0.00 KM |
| Saddleworth Road | £ 0 | 0 | 0.00 KM |
| Brooklime Path | £ 255,000 | 0 | 0.00 KM |
| Hilldene Close | £ 300,000 | 0 | 0.00 KM |
Nearby Transport
| Name | NLC | TLC | Distance |
|---|---|---|---|
| Gidea Park | 6877 | GDP | 3.07 KM |
| Harold Wood | 6879 | HRO | 3.57 KM |
| Romford | 6886 | RMF | 4.58 KM |
| Emerson Park | 7473 | EMP | 4.82 KM |
| Upminster | 7464 | UPM | 7.52 KM |
Nearby Listings
| Address | Price | Type | Score | Distance |
|---|---|---|---|---|
| Sunset Drive, Romford, RM4 | £ 175,000 | BUY | 7 / 10 | 0.00 KM |
| Sunset Drive, Havering-Atte-Bower, Romford, RM4 | £ 180,000 | BUY | 6 / 10 | 0.14 KM |
| Sunset Drive, Havering-Atte-Bower, Romford, RM4 | £ 180,000 | BUY | 6 / 10 | 0.14 KM |
| Sunset Drive, Romford, RM4 | £ 170,000 | BUY | 7 / 10 | 0.14 KM |
| Whitworth Avenue, Romford | £ 525,000 | BUY | 6 / 10 | 0.34 KM |
Nearby Properties
| Address | Price | Distance |
|---|---|---|
| 7 Stanwyck Gardens | £ 337,500 | 0.20 KM |
| 16 Stanwyck Gardens | £ 335,000 | 0.20 KM |
| 21 Stanwyck Gardens | £ 315,000 | 0.20 KM |
| 14 Stanwyck Gardens | £ 335,000 | 0.20 KM |
| 8 Stanwyck Gardens | £ 345,000 | 0.20 KM |