Frindsbury Road, Rochester, Kent, ME2
By Robinson Michael & Jackson
£ 450,000
Reviews
3 out of 5 stars
Robinson Michael & Jackson says ..
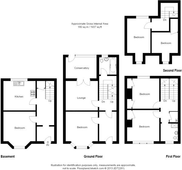
A rare and imposing period property arranged over four floors, currently operating as a fully licensed 5-bedroom HMO with a planning application submitted to increase to 6 bedrooms. Offering excellent potential gross income of £48,000 per annum (based on £660 pcm average per room...
Property Oracle says ..
This is a large, end-of-terrace property located on Frindsbury Road in Rochester, Kent. It features 6 bedrooms and 2 bathrooms, with a total square footage of 1,937. The property is situated in a residential area with convenient access to local amenities, schools, and transportation, including Strood (Kent) station. While the property appears to be in reasonable condition, some modernisation would be beneficial. The kitchen and bathrooms are functional but dated. The property includes a small paved outdoor area. Given the size and location, the list price of £450,000 seems reasonable, especially considering the average price per square foot in the area.
Therefore, we give this property 6 / 10. *Disclaimer: This is our option and does constitute a recommendation or financial advice. Do your own research. *
- Price
- 7
- Condition
- 6
- Location
- 7
- Land
- 5
- Bedrooms
- 6
- Bathrooms
- 2
- Sqft (est)
- 1,937.00
The heatmap indicates the level of crime in the area. The color of the heatmap indicates the crime severity and recency.
Metrics Year-on-Year
- Average area value
- 224,000.00 £Decreased by 29.61 %
- Est sale value
- 650,832.00 £Increased by 13.13 %
- Average area rental value
- 1,116.00 £/moDecreased by 12.40 %
- Est letting value
- 1,937.00 £/moUnchanged by 0.00 %
- Est rental Yield
- 5.98 %Increased by 24.58 %
- Crime Rate
- 14.00 %Unchanged by 0.00 %
Agent Activity
Robinson Michael & Jackson created the listing.
Nearby Schools
| Name | Type | Ofsted | Distance |
|---|---|---|---|
| English Martyrs' Catholic Primary School | Voluntary Aided School | Good | 0.34 KM |
| Gun Lane Children'S Centre | Children's Centre | 0.48 KM | |
| All Faiths Children'S Academy | Academy Converter | Good | 0.49 KM |
| Hilltop Primary Academy | Academy Converter | 0.77 KM | |
| The Children'S Centre At Temple Mill | Children's Centre | 0.88 KM |
Images
Nearby Streets
| Name | Average Price | Average Sqft | Distance |
|---|---|---|---|
| Watermill Close | £ 0 | 0 | 0.00 KM |
| Edward Street | £ 0 | 0 | 0.00 KM |
| Taylor's Lane | £ 0 | 0 | 0.00 KM |
| RRX60 | £ 280,000 | 0 | 0.00 KM |
| RS124 | £ 380,000 | 0 | 0.00 KM |
Nearby Transport
| Name | NLC | TLC | Distance |
|---|---|---|---|
| Strood (Kent) | 5191 | SOO | 0.38 KM |
| Rochester | 5203 | RTR | 2.04 KM |
| Chatham | 5199 | CTM | 3.31 KM |
| Higham | 5202 | HGM | 4.64 KM |
| Cuxton | 5201 | CUX | 4.88 KM |
Nearby Listings
| Address | Price | Type | Score | Distance |
|---|---|---|---|---|
| Frindsbury Road, Rochester, Kent, ME2 | £ 450,000 | BUY | 6 / 10 | 0.00 KM |
| Watling Drive, Newington, Sittingbourne, Kent, ME9 | £ 425,000 | BUY | 7 / 10 | 0.02 KM |
| Frindsbury Road, Rochester, Kent, ME2 | £ 375,000 | BUY | Unknown | 0.04 KM |
| Chaucer Court, Frindsbury Road, Strood, ME2 4GJ | £ 40,000 | BUY | 5 / 10 | 0.05 KM |
| Frindsbury Road, Rochester, Kent, ME2 | £ 400,000 | BUY | 3 / 10 | 0.08 KM |
Nearby Properties
| Address | Price | Distance |
|---|---|---|
| 22 Frindsbury Road | £ 157,000 | 0.04 KM |
| 24 Frindsbury Road | £ 260,000 | 0.04 KM |
| 32 Frindsbury Road | £ 212,500 | 0.04 KM |
| 40 Frindsbury Road | £ 230,000 | 0.04 KM |
| 24 Grove Road | £ 228,000 | 0.10 KM |