Yopa says ..
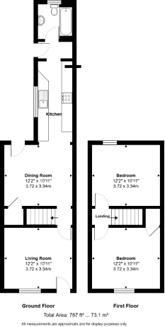
This TERRACED home is located in a popular location in Reading close to local amenities. The property is presented in good order throughout and other benefits include two double bedrooms, a SITTING ROOM with a separate dining room, a fitted kitchen and it is available with NO ONWARD CHAIN.
Property Oracle says ..
This is a two-bedroom terraced house in Redlands, Reading. The property is in a good location, close to schools and transport links. While the property is in reasonable condition, it could benefit from some modernisation. The property has a garden. The asking price of £325,000 appears reasonable when compared to similar properties in the area.
Therefore, we give this property 6 / 10. *Disclaimer: This is our option and does constitute a recommendation or financial advice. Do your own research. *
- Price
- 7
- Condition
- 6
- Location
- 7
- Land
- 7
- Bedrooms
- 2
- Bathrooms
- 1
- Sqft (est)
- 787.00
The heatmap indicates the level of crime in the area. The color of the heatmap indicates the crime severity and recency.
Metrics Year-on-Year
- Average area value
- 429,375.00 £Increased by 2.76 %
- Est sale value
- 519,420.00 £Increased by 67.94 %
- Average area rental value
- 1,283.00 £/moIncreased by 0.16 %
- Est letting value
- 787.00 £/moUnchanged by 0.00 %
- Est rental Yield
- 3.59 %Decreased by 2.45 %
- Crime Rate
- 8.00 %Unchanged by 0.00 %
Agent Activity
Yopa created the listing.
Nearby Schools
| Name | Type | Ofsted | Distance |
|---|---|---|---|
| Redlands Primary School | Community School | Good | 0.17 KM |
| St Joseph'S College | Other Independent School | 0.23 KM | |
| Maiden Erlegh School In Reading | Free Schools | Good | 0.74 KM |
| Utc Reading | University Technical College | Outstanding | 0.75 KM |
| Reading School | Academy Converter | 0.80 KM |
Images
Nearby Streets
| Name | Average Price | Average Sqft | Distance |
|---|---|---|---|
| Lydford Road | £ 0 | 0 | 0.00 KM |
| Oaklands | £ 223,333 | 0 | 0.00 KM |
| Wokingham Road | £ 0 | 0 | 0.00 KM |
| Villa Mews | £ 0 | 0 | 0.00 KM |
| King's Road | £ 0 | 0 | 0.00 KM |
Nearby Transport
| Name | NLC | TLC | Distance |
|---|---|---|---|
| Reading | 3149 | RDG | 2.98 KM |
| Earley | 5694 | EAR | 3.32 KM |
| Reading West | 3160 | RDW | 4.82 KM |
| Winnersh Triangle | 5698 | WTI | 6.30 KM |
| Winnersh | 5697 | WNS | 8.02 KM |
Nearby Listings
| Address | Price | Type | Score | Distance |
|---|---|---|---|---|
| Foxhill Road, Reading, RG1 | £ 300,000 | BUY | 7 / 10 | 0.00 KM |
| Foxhill Road, Reading, RG1 | £ 325,000 | BUY | 6 / 10 | 0.00 KM |
| Foxhill Road, Reading, Berkshire, RG1 | £ 300,000 | BUY | Unknown | 0.00 KM |
| Foxhill Road, Reading, RG1 | £ 335,000 | BUY | 6 / 10 | 0.04 KM |
| Foxhill Road, Reading, RG1 | £ 325,000 | BUY | 7 / 10 | 0.04 KM |
Nearby Properties
| Address | Price | Distance |
|---|---|---|
| 44 Foxhill Road | £ 160,000 | 0.01 KM |
| 22 Foxhill Road | £ 290,000 | 0.01 KM |
| 48 Foxhill Road | £ 275,000 | 0.01 KM |
| 39 Foxhill Road | £ 155,000 | 0.01 KM |
| 40 Foxhill Road | £ 127,000 | 0.01 KM |