Ribblesdale, Penshaw, Houghton Le Spring, DH4
By Hegartys Estate Agents
£ 145,995
Reviews
3 out of 5 stars
Hegartys Estate Agents says ..
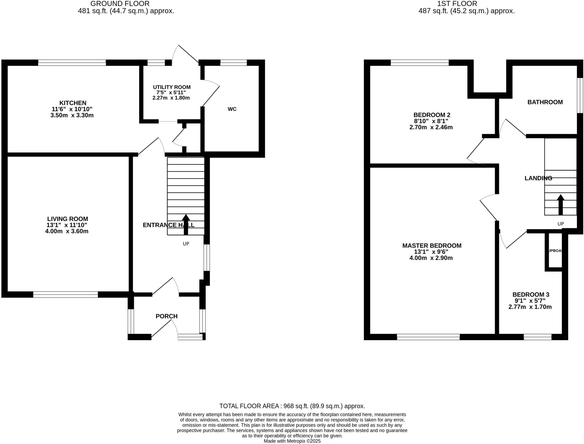
Calling all first time buyers... This charming semi-detached house is nestled in the heart of a picturesque village in Houghton Le Spring. Boasting three bedrooms, this property offers a perfect blend of accessibility and affordability. The house is flooded with natural light, creating...
Property Oracle says ..
The property is a 3-bedroom house located in Penshaw, Houghton Le Spring, an area with good schools and transport links. The property is in good condition with a well-maintained interior and exterior. It includes a garden of reasonable size. The list price seems to fall within the general range of prices for similar properties in the area, though a precise evaluation is not possible without square footage data for the property and comparable listings.
Therefore, we give this property 7 / 10. *Disclaimer: This is our option and does constitute a recommendation or financial advice. Do your own research. *
- Price
- 7
- Condition
- 8
- Location
- 0
- Land
- 7
- Bedrooms
- 3
- Bathrooms
- 0
The heatmap indicates the level of crime in the area. The color of the heatmap indicates the crime severity and recency.
Metrics Year-on-Year
- Average area value
- 163,932.00 £Decreased by 14.20 %
- Average area rental value
- 598.00 £/moDecreased by 27.07 %
- Est rental Yield
- 4.38 %Decreased by 14.95 %
- Crime Rate
- 11.00 %Unchanged by 0.00 %
Agent Activity
Hegartys Estate Agents created the listing.
Nearby Schools
| Name | Type | Ofsted | Distance |
|---|---|---|---|
| Barnwell Academy | Academy Converter | Good | 0.43 KM |
| New Penshaw Academy | Academy Sponsor Led | Good | 0.52 KM |
| Shiney Row Primary School | Community School | Good | 0.88 KM |
| Our Lady Queen Of Peace Catholic Primary School | Academy Converter | 0.91 KM | |
| Newbottle Primary Academy | Academy Converter | Good | 2.64 KM |
Images
Nearby Streets
| Name | Average Price | Average Sqft | Distance |
|---|---|---|---|
| Ribblesdale | £ 0 | 0 | 0.00 KM |
| Chislehurst Road | £ 0 | 0 | 0.00 KM |
| The Cedars & The Limes | £ 0 | 0 | 0.00 KM |
| Sutton Close | £ 0 | 0 | 0.00 KM |
| Station Road | £ 130,833 | 0 | 0.00 KM |
Nearby Transport
| Name | NLC | TLC | Distance |
|---|---|---|---|
| Chester-Le-Street | 7736 | CLS | 9.99 KM |
Nearby Listings
| Address | Price | Type | Score | Distance |
|---|---|---|---|---|
| Ribblesdale, Penshaw, Houghton Le Spring, DH4 | £ 145,995 | BUY | 7 / 10 | 0.00 KM |
| Garden Place, Penshaw, Houghton Le Spring, Tyne and Wear, DH4 7EQ | £ 124,950 | BUY | 7 / 10 | 0.11 KM |
| Castle View, Penshaw, Houghton Le Spring | £ 94,950 | BUY | 7 / 10 | 0.19 KM |
| Wallis Street, Penshaw, Houghton-Le-Spring, DH4 | £ 120,000 | BUY | Unknown | 0.23 KM |
| Buttsfield Terrace, Penshaw, Houghton Le Spring, Tyne and Wear, DH4 7HW | £ 89,950 | BUY | Unknown | 0.24 KM |
Nearby Properties
| Address | Price | Distance |
|---|---|---|
| 9 Ribblesdale | £ 110,000 | 0.03 KM |
| 17 Ribblesdale | £ 78,750 | 0.03 KM |
| 9 Clydesdale Avenue | £ 50,000 | 0.04 KM |
| 48 Tynedale Crescent | £ 95,500 | 0.07 KM |
| 40 Tynedale Crescent | £ 84,000 | 0.07 KM |