Apsley House, 2 Holford Way, London SW15 5EY
EW

Apsley House, 2 Holford Way, London SW15 5EY

By EweMove

£ 385,000

Reviews

3 out of 5 stars

EweMove says ..

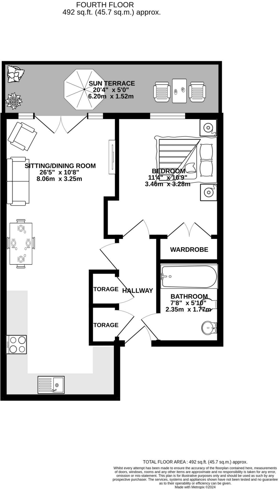
With far reaching views over Richmond Park from a private 22 feet wide terrace, this stylish one double bedroom, 4th floor flat is situated within the idyllic Queen Mary's Place, an ideal location for the many attractions of Putney, Barnes, Richmond and Wimbledon. The property has 232 y...

Property Oracle says ..

Therefore, we give this property 7 / 10. *Disclaimer: This is our option and does constitute a recommendation or financial advice. Do your own research. *

Price
9
Condition
7
Location
8
Land
6
Bedrooms
1
Bathrooms
1
Sqft (est)
554.91

The heatmap indicates the level of crime in the area. The color of the heatmap indicates the crime severity and recency.

Metrics Year-on-Year

Average area value
721,658.00 £
Decreased by 13.09 %
from 830,385.00 £
Est sale value
575,996.58 £
Increased by 82.43 %
from 315,743.79 £
Average area rental value
2,654.00 £/mo
Decreased by 13.47 %
from 3,067.00 £/mo
Est letting value
1,664.73 £/mo
Increased by 50.00 %
from 1,109.82 £/mo
Est rental Yield
4.41 %
Decreased by 0.45 %
from 4.43 %
Crime Rate
6.00 %
Unchanged by 0.00 %
from 6.00 %

Agent Activity

  • EweMove created the listing.

Nearby Schools

NameTypeOfstedDistance
Eastwood Centre For Children And FamiliesChildren's Centre0.11 KM
Mosaic Jewish Primary SchoolFree SchoolsOutstanding0.23 KM
Eastwood Nursery SchoolLocal Authority Nursery SchoolOutstanding0.26 KM
Roehampton UniversityHigher Education Institutions0.36 KM
Sacred Heart Catholic Primary School, RoehamptonVoluntary Aided SchoolGood0.59 KM

Images

83 Apsley House - Exterior view front 83 Apsley House - Terrace 4 83 Apsley House - Reception-kitchen 83 Apsley House - Kitchen 83 Apsley House - Reception-window 83 Apsley House - Terrace 83 Apsley House - Terrace 3 83 Apsley House - Terrace view 83 Apsley House - Bedroom 83 Apsley House - Bedroom-hallway 83 Apsley House - Bathroom QMP - Gym entranceJPG QMP - Gym entrance close-upJPG QMP - Gym CardioJPG QMP - Gym Core strengthJPG QMP - Rose Garden min QMP - Sunken Garden min

Nearby Streets

NameAverage PriceAverage SqftDistance
Beech Close £ 1,500,00000.00 KM
Parkmead £ 000.00 KM
Kingston Road £ 000.00 KM
Chohole Gate Path £ 000.00 KM
Scio Ride £ 000.00 KM

Nearby Transport

NameNLCTLCDistance
Barnes5551BNS1.62 KM
Barnes Bridge5580BNI2.40 KM
Putney5603PUT3.13 KM
Mortlake5600MTL3.14 KM
Chiswick5583CHK4.18 KM

Nearby Listings

AddressPriceTypeScoreDistance
71 Apsley House, 2 Holford Way, London £ 375,000BUY7 / 100.00 KM
Apsley House, 2 Holford Way, London SW15 5EY £ 385,000BUY7 / 100.00 KM
Apsley House, 2 Holford Way, London SW15 5EY £ 500,000BUY7 / 100.00 KM
Apsley House, Roehampton, London, SW15 £ 134,750BUY7 / 100.00 KM
Apsley House, Roehampton, London, SW15 £ 132,500BUY5 / 100.01 KM

Nearby Properties

AddressPriceDistance
16 Holford Way £ 775,0000.12 KM
12 Bader Way £ 399,9500.13 KM
13 Bader Way £ 485,0000.13 KM
14 Bader Way £ 399,0000.13 KM
15 Bader Way £ 485,0000.13 KM