Featherbank Grove, Horsforth, Leeds, West Yorkshire, LS18
By Hardisty & co
£ 265,000
Reviews
3 out of 5 stars
Hardisty & co says ..
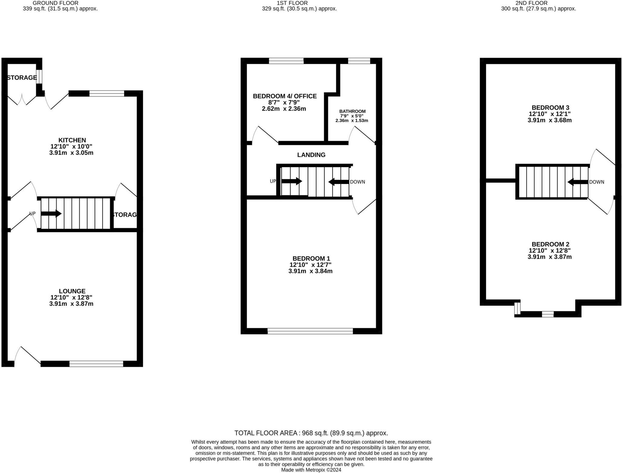
NO CHAIN SALE - EXCITING OPPORTUNITY! Such a great CENTRAL Horsforth position, walk to amenities, HIGHLY REGARDED SCHOOLS, Hall Park & with both Kirkstall Forge & Horsforth TRAIN STATIONS, on your doorstep too! Sited over THREE flrs, this FOUR bed., mid terrace has an ENCLOSED, flagged ar...
Property Oracle says ..
This four-bedroom terraced house in Featherbank Grove, Horsforth, presents a mixed bag. Located in a desirable area known for its excellent schools and convenient transport links, the property benefits from a great location. The nearby Horsforth and Kirkstall Forge train stations offer easy access to Leeds city center and beyond. The proximity to several highly-rated primary schools enhances its family appeal.
Internally, the property appears to have been recently decorated and is in reasonable condition. The kitchen and bathroom show some signs of modernization, however, it is relatively simple and not particularly luxurious. There’s scope for improvement and personalization. The property includes a small rear garden; however, this requires some attention to landscaping to fully realize its potential.
The listed price aligns with general market trends for similar properties in Horsforth, making it reasonably priced in this competitive market. Further investigation into comparable sales within Featherbank Grove and surrounding streets would provide a more precise evaluation of the property’s true market value.
Therefore, we give this property 6 / 10. *Disclaimer: This is our option and does constitute a recommendation or financial advice. Do your own research. *
- Price
- 7
- Condition
- 6
- Location
- 8
- Land
- 3
- Bedrooms
- 4
- Bathrooms
- 1
- Sqft (est)
- 968.00
The heatmap indicates the level of crime in the area. The color of the heatmap indicates the crime severity and recency.
Metrics Year-on-Year
- Average area value
- 389,660.00 £Decreased by 2.80 %
- Est sale value
- 393,008.00 £Increased by 42.96 %
- Average area rental value
- 1,475.00 £/moIncreased by 31.70 %
- Est letting value
- 968.00 £/mo
- Est rental Yield
- 4.54 %Increased by 35.52 %
- Crime Rate
- 28.00 %Unchanged by 0.00 %
Agent Activity
Hardisty & co created the listing.
Nearby Schools
| Name | Type | Ofsted | Distance |
|---|---|---|---|
| Horsforth Featherbank Primary School | Community School | Outstanding | 0.29 KM |
| The Froebelian School | Other Independent School | 0.69 KM | |
| Horsforth Newlaithes Primary School | Community School | Good | 0.82 KM |
| Horsforth School | Academy Converter | Good | 0.94 KM |
| St Margaret'S Church Of England Voluntary Controlled Primary School | Voluntary Controlled School | Outstanding | 1.02 KM |
Images
Nearby Streets
| Name | Average Price | Average Sqft | Distance |
|---|---|---|---|
| Stoney Lane | £ 500,000 | 0 | 0.00 KM |
| Rose Street | £ 0 | 0 | 0.00 KM |
| Cross Road | £ 775,000 | 0 | 0.00 KM |
| Stoney Rise | £ 0 | 0 | 0.00 KM |
| Charles Street | £ 294,973 | 0 | 0.00 KM |
Nearby Transport
| Name | NLC | TLC | Distance |
|---|---|---|---|
| Horsforth | 8499 | HRS | 2.09 KM |
| Kirkstall Forge | 6544 | KLF | 2.59 KM |
| Bramley (West Yorkshire) | 8496 | BLE | 3.28 KM |
| New Pudsey | 8506 | NPD | 5.29 KM |
| Headingley | 8498 | HDY | 5.73 KM |
Nearby Listings
| Address | Price | Type | Score | Distance |
|---|---|---|---|---|
| Broadway, Horsforth, Leeds, West Yorkshire | £ 279,995 | BUY | 6 / 10 | 0.07 KM |
| Summersgill Square, Horsforth, LS18 | £ 270,000 | BUY | 7 / 10 | 0.07 KM |
| Rose Avenue, Horsforth, Leeds, West Yorkshire, LS18 | £ 325,000 | BUY | Unknown | 0.09 KM |
| Broadway, Horsforth, Leeds | £ 285,000 | BUY | 6 / 10 | 0.09 KM |
| Back Lane, Horsforth, Leeds, West Yorkshire, LS18 | £ 300,000 | BUY | 7 / 10 | 0.09 KM |
Nearby Properties
| Address | Price | Distance |
|---|---|---|
| 5 Featherbank Grove | £ 249,950 | 0.01 KM |
| 6 Featherbank Grove | £ 200,000 | 0.01 KM |
| 10 Featherbank Grove | £ 45,000 | 0.01 KM |
| 4 Featherbank Grove | £ 144,000 | 0.01 KM |
| 8 Featherbank Grove | £ 151,500 | 0.01 KM |