Keating Estates says ..
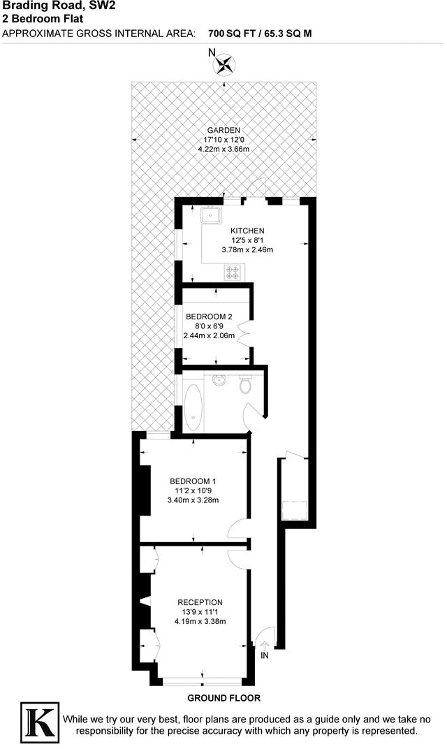
Keating Estates are proud to present to market this charming two bedroom Victorian maisonette with a private wrap-around garden, set on the sought-after Brading Road. Benefitting from its own front door, this characterful home offers an appealing blend of period charm and modern convenience.
Property Oracle says ..
The property is located on Brading Road in the Tulse Hill area of Lambeth, London. Based on the provided information and images, the property appears to be well-maintained and recently renovated, with a modern kitchen and bathroom. The property also benefits from a private rear garden, which is a desirable feature in London. The location score is high due to the proximity to several highly-rated schools, including Holmewood Nursery School (Outstanding) and Elm Court School (Outstanding). The area also has good transport links, with several train stations within a reasonable distance. The presence of local shops, cafes and a pub adds to the convenience of the location. The condition of the property is excellent based on the images provided. The renovation appears to be of high quality, resulting in a modern and updated interior. The land score is also high because the property includes a private garden, a rare and valuable asset in London. Considering the average price per square foot in the area (£729) and the property’s size (700 sqft), a reasonable list price would be around £510,300. The list price of £500,000 is slightly below this estimate, making it potentially good value. However, the lack of plot size information in the listing may affect the final price. The nearby listings show a range of prices, indicating some price variation in the area.
Therefore, we give this property 8 / 10. *Disclaimer: This is our option and does constitute a recommendation or financial advice. Do your own research. *
- Price
- 8
- Condition
- 9
- Location
- 9
- Land
- 8
- Bedrooms
- 2
- Bathrooms
- 1
- Sqft (est)
- 700.00
The heatmap indicates the level of crime in the area. The color of the heatmap indicates the crime severity and recency.
Metrics Year-on-Year
- Average area value
- 419,375.00 £Decreased by 32.04 %
- Est sale value
- 604,800.00 £Increased by 26.87 %
- Average area rental value
- 1,984.00 £/moDecreased by 10.47 %
- Est letting value
- 2,800.00 £/moIncreased by 100.00 %
- Est rental Yield
- 5.68 %Increased by 31.79 %
- Crime Rate
- 4.00 %Unchanged by 0.00 %
Agent Activity
Keating Estates created the listing.
Nearby Schools
| Name | Type | Ofsted | Distance |
|---|---|---|---|
| Tree House Children'S Centre At Holmewood Nursery School | Children's Centre | 0.21 KM | |
| Holmewood Nursery School | Local Authority Nursery School | Outstanding | 0.23 KM |
| Holy Trinity Church Of England Primary School | Voluntary Aided School | Good | 0.25 KM |
| Elm Court School | Community Special School | Outstanding | 0.37 KM |
| The Orchard School | Voluntary Aided School | Outstanding | 0.57 KM |
Images
Nearby Streets
| Name | Average Price | Average Sqft | Distance |
|---|---|---|---|
| China Mews | £ 0 | 0 | 0.00 KM |
| Fairview Place | £ 0 | 0 | 0.00 KM |
| Hartwell Close | £ 0 | 0 | 0.00 KM |
| Marnfield Crescent | £ 500,000 | 0 | 0.00 KM |
| Claremont Close | £ 400,000 | 0 | 0.00 KM |
Nearby Transport
| Name | NLC | TLC | Distance |
|---|---|---|---|
| Streatham Hill | 5435 | SRH | 1.52 KM |
| Brixton | 5081 | BRX | 1.64 KM |
| Tulse Hill | 5390 | TUH | 1.93 KM |
| Herne Hill | 5066 | HNH | 1.95 KM |
| Clapham High Street | 5301 | CLP | 2.29 KM |
Nearby Listings
| Address | Price | Type | Score | Distance |
|---|---|---|---|---|
| Brading Road, SW2 | £ 500,000 | BUY | 8 / 10 | 0.00 KM |
| Brading Road, London | £ 600,000 | BUY | 6 / 10 | 0.02 KM |
| Brading Road, SW2 | £ 399,950 | BUY | Unknown | 0.03 KM |
| Brading Road, SW2 | £ 545,000 | BUY | Unknown | 0.04 KM |
| Brading Road, London, SW2 | £ 475,000 | BUY | 5 / 10 | 0.05 KM |
Nearby Properties
| Address | Price | Distance |
|---|---|---|
| 65 Brading Road | £ 250,000 | 0.02 KM |
| 25 Brading Road | £ 169,000 | 0.02 KM |
| 29 Brading Road | £ 495,000 | 0.02 KM |
| 3 Brading Road | £ 750,000 | 0.02 KM |
| 13 Brading Road | £ 326,000 | 0.02 KM |