Plot 2 Land At Wakefield Road, Copley
By Property @ Kemp and Co
£ 150,000
Reviews
2 out of 5 stars
Property @ Kemp and Co says ..
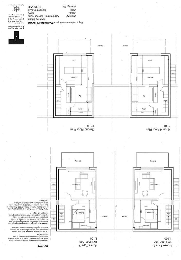
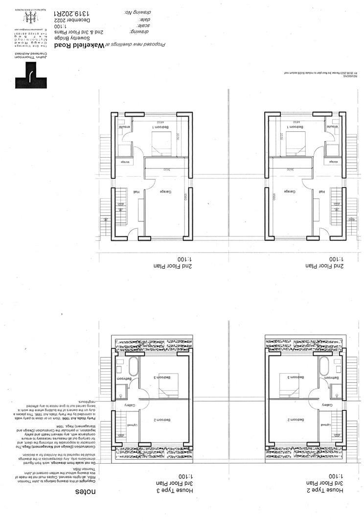
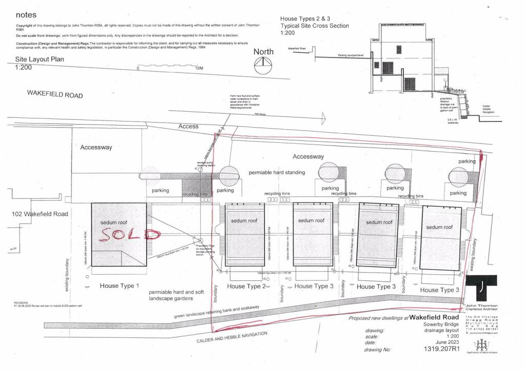
An excellent opportunity to purchase this single building land with full planning permission for an executive detached property in this highly desirable residential location overlooking the Norland Hillside. The present planning permission is for 5 executive detached four bedroomed family homes ...
Property Oracle says ..
This listing presents an opportunity to build a new executive detached property on a plot of land at Wakefield Road, Copley, Sowerby Bridge. The plot benefits from full planning permission. The listing highlights its location overlooking the Norland Hillside, which is a desirable attribute. The property is close to Sowerby Bridge’s train station and several well-regarded primary schools. The surrounding streets show a range of house prices, indicating a diverse market. However, the absence of information on the precise dimensions of the plot, detailed specifications of the planned building, and more precise location within the development, limit the ability to accurately assess its overall value and potential. Further information on the building plan, and its final size would be beneficial in providing a more comprehensive evaluation. The lack of specific plot dimensions prevents a precise calculation of value per square foot for the land itself. More information is needed before a final assessment can be made of the value of this opportunity.
Therefore, we give this property 4 / 10. *Disclaimer: This is our option and does constitute a recommendation or financial advice. Do your own research. *
- Price
- 6
- Condition
- 1
- Location
- 7
- Land
- 2
- Bedrooms
- 0
- Bathrooms
- 0
- Sqft (est)
- 823.44
The heatmap indicates the level of crime in the area. The color of the heatmap indicates the crime severity and recency.
Metrics Year-on-Year
- Average area value
- 225,000.00 £Increased by 3.20 %
- Est sale value
- 152,336.40 £Decreased by 26.29 %
- Average area rental value
- 809.00 £/moIncreased by 21.84 %
- Est letting value
- 0.00 £/mo
- Est rental Yield
- 4.31 %Increased by 18.08 %
- Crime Rate
- 3.00 %Unchanged by 0.00 %
Agent Activity
Property @ Kemp and Co created the listing.
Nearby Schools
| Name | Type | Ofsted | Distance |
|---|---|---|---|
| Bolton Brow Primary Academy | Academy Converter | Good | 0.35 KM |
| Compass Community School Willow Park | Other Independent Special School | 0.62 KM | |
| Christ Church Cofe Va Junior School, Sowerby Bridge | Voluntary Aided School | Good | 0.94 KM |
| Warley Road Primary Academy | Academy Converter | 0.95 KM | |
| Norland Ce School | Voluntary Controlled School | Good | 1.31 KM |
Images
Nearby Streets
| Name | Average Price | Average Sqft | Distance |
|---|---|---|---|
| Upper Bolton Brow | £ 170,000 | 0 | 0.00 KM |
| Park Street | £ 0 | 0 | 0.00 KM |
| Milner Royd Lane | £ 700,000 | 0 | 0.00 KM |
| Woodland Drive | £ 325,000 | 0 | 0.00 KM |
| Nelson Place | £ 0 | 0 | 0.00 KM |
Nearby Transport
| Name | NLC | TLC | Distance |
|---|---|---|---|
| Sowerby Bridge | 8527 | SOW | 1.26 KM |
| Halifax | 8411 | HFX | 4.83 KM |
| Mytholmroyd | 8526 | MYT | 9.68 KM |
| Slaithwaite | 8450 | SWT | 9.77 KM |
Nearby Listings
| Address | Price | Type | Score | Distance |
|---|---|---|---|---|
| Plot 2 Land At Wakefield Road, Copley | £ 150,000 | BUY | 4 / 10 | 0.00 KM |
| Plot 5 Land At Wakefield Road, Copley | £ 150,000 | BUY | 4 / 10 | 0.01 KM |
| Back Wakefield Road, Sowerby Bridge | £ 95,000 | BUY | 6 / 10 | 0.02 KM |
| 18 High Fields, Wakefield Road, Sowerby Bridge | £ 190,000 | BUY | 5 / 10 | 0.13 KM |
| Plot 4 Land At Wakefield Road, Copley | £ 150,000 | BUY | 4 / 10 | 0.14 KM |
Nearby Properties
| Address | Price | Distance |
|---|---|---|
| 78 Wakefield Road | £ 90,000 | 0.01 KM |
| 54 Wakefield Road | £ 102,500 | 0.01 KM |
| 88 Wakefield Road | £ 103,000 | 0.01 KM |
| 80 Wakefield Road | £ 67,000 | 0.01 KM |
| 46 Wakefield Road | £ 75,000 | 0.01 KM |