Peter Buswell says ..
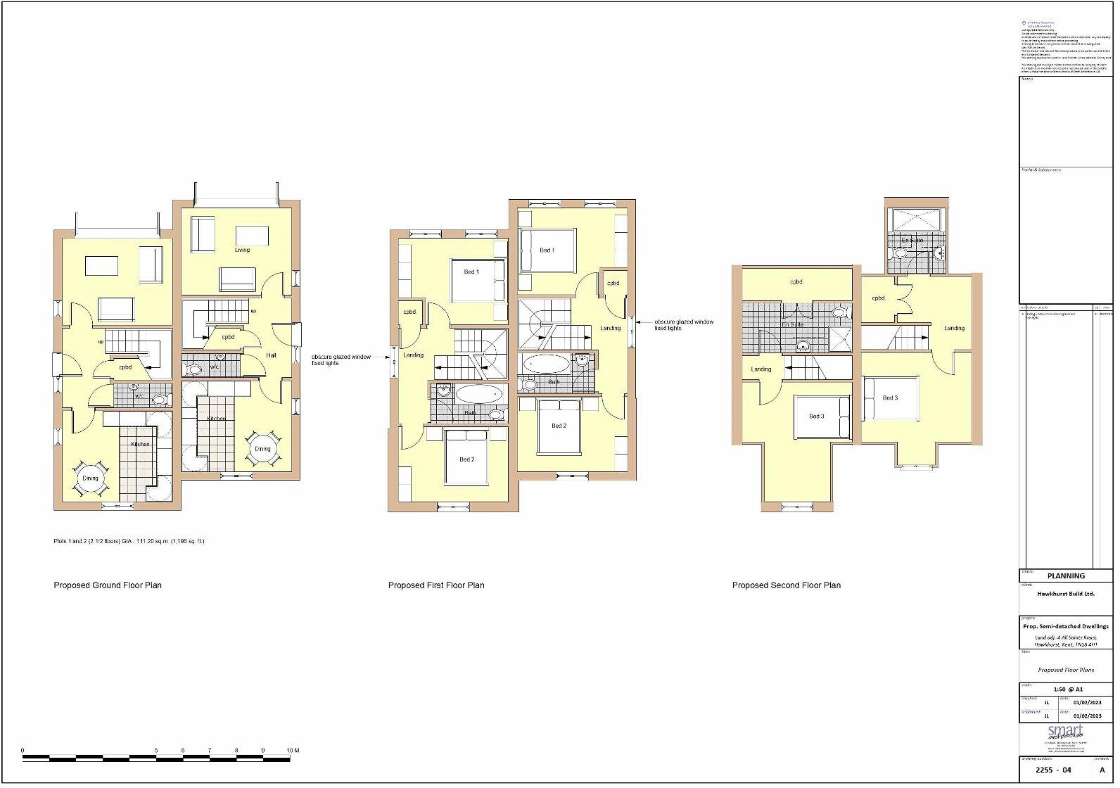
New build semi-detached house offering stylish accommodation with three bedrooms and two bathrooms over three floors. Situated in an ideal location within walking distance to the popular Hawkhurst Village Centre. An opportunity to purchase off plan and to be moved in by Spring/Summer 2024. Ext...
Property Oracle says ..
This property is a new-build, three-bedroom, two-bathroom semi-detached house located in Hawkhurst, Kent. The location is a key strength, offering convenient access to the village centre and a good primary school. The property’s condition appears excellent, being a new build, as evidenced by the provided images and architectural drawings. However, the limited land size is a noteworthy consideration. The price of £495,000 seems reasonable within the context of the Hawkhurst market, but additional information on the precise square footage and high-end features would enhance the value assessment. While the surrounding properties lack detailed information, the nearby streets’ average price indicates that the £495,000 asking price is on the higher end but within a reasonable range for the area, especially for a new build. Overall, it is a well-presented property in a desirable location but potential buyers should carefully consider the limited garden space before making an offer.
Therefore, we give this property 6 / 10. *Disclaimer: This is our option and does constitute a recommendation or financial advice. Do your own research. *
- Price
- 7
- Condition
- 9
- Location
- 7
- Land
- 3
- Bedrooms
- 3
- Bathrooms
- 2
- Sqft (est)
- 1,196.00
The heatmap indicates the level of crime in the area. The color of the heatmap indicates the crime severity and recency.
Metrics Year-on-Year
- Average area value
- 786,875.00 £Increased by 13.64 %
- Est sale value
- 682,916.00 £Decreased by 2.89 %
- Average area rental value
- 1,549.00 £/moDecreased by 7.30 %
- Est letting value
- 1,196.00 £/moUnchanged by 0.00 %
- Est rental Yield
- 2.36 %Decreased by 18.62 %
- Crime Rate
- 33.00 %Unchanged by 0.00 %
Agent Activity
Peter Buswell created the listing.
Nearby Schools
| Name | Type | Ofsted | Distance |
|---|---|---|---|
| Hawkhurst Church Of England Primary School | Voluntary Controlled School | Good | 0.42 KM |
| Marlborough House School | Other Independent School | 1.47 KM | |
| St Ronan'S School | Other Independent School | 2.47 KM | |
| Bodiam Church Of England Primary School | Voluntary Controlled School | Good | 5.32 KM |
| Hurst Green Church Of England Primary School And Nursery | Academy Converter | 5.70 KM |
Images
Nearby Streets
| Name | Average Price | Average Sqft | Distance |
|---|---|---|---|
| Westfield Drive | £ 0 | 0 | 0.00 KM |
| Lorenden Park | £ 295,000 | 0 | 0.00 KM |
| Basden Cottages | £ 360,000 | 0 | 0.00 KM |
Nearby Transport
| Name | NLC | TLC | Distance |
|---|---|---|---|
| Robertsbridge | 5226 | RBR | 8.34 KM |
| Etchingham | 5217 | ETC | 8.75 KM |
Nearby Listings
| Address | Price | Type | Score | Distance |
|---|---|---|---|---|
| New Build In Central Position In Hawkhurst | £ 450,000 | BUY | 7 / 10 | 0.00 KM |
| Level Walking Distance To Hawkhurst Colonnade | £ 350,000 | BUY | 7 / 10 | 0.00 KM |
| New Build in Hawkhurst | £ 495,000 | BUY | 6 / 10 | 0.00 KM |
| All Saints Road, Hawkhurst, Cranbrook, Kent | £ 314,000 | BUY | 7 / 10 | 0.12 KM |
| All Saints Road, Hawkhurst, Cranbrook, Kent | £ 475,000 | BUY | Unknown | 0.12 KM |
Nearby Properties
| Address | Price | Distance |
|---|---|---|
| Oakland | £ 295,000 | 0.02 KM |
| 40 All Saints Road | £ 275,000 | 0.02 KM |
| 5 All Saints Road | £ 180,000 | 0.08 KM |
| 19 All Saints Road | £ 245,000 | 0.08 KM |
| 69 All Saints Road | £ 150,000 | 0.12 KM |