Henry Isaac Mews, Brookend Lane, St. Ippolyts, Hitchin, SG4
By Ashtons
£ 900,000
Reviews
4 out of 5 stars
Ashtons says ..
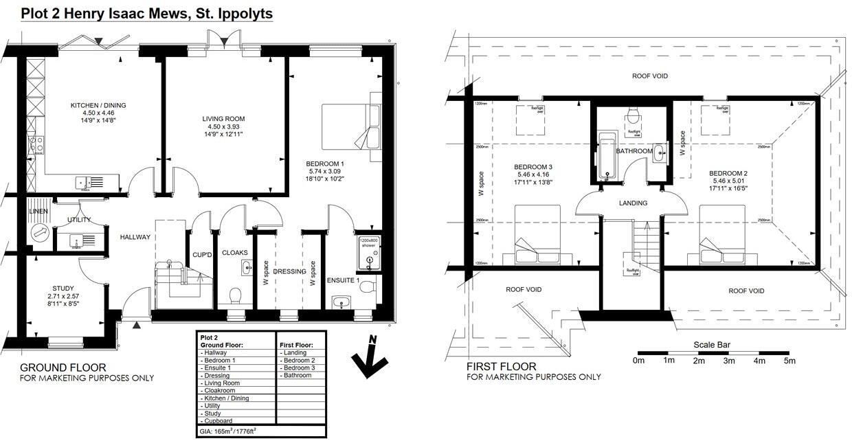
Plot 2 Henry Isaac Mews (Now Reserved! ) A collection of just seven barn style 3 & 4 bedroom luxury homes, located in this sought after village with wonderful views of fields and the pretty church, close to historic Hitchin.
Property Oracle says ..
The property is a new build semi-detached house located in St Ippolyts, a village near Hitchin, Hertfordshire. The location benefits from being close to good schools such as St Ippolyts Church of England Aided Primary School (rated good by Ofsted) and several others within a reasonable distance. Hitchin town centre is also relatively close, providing access to shops, amenities, and transport links. The property itself appears to be modern and well-built, with a good-sized garden. Based on the images, the property seems to be finished to a high standard. The list price is slightly below the average price for the area, but given the property is a new build semi-detached house and the average price and price per sqft are based on all property types, this seems reasonable. The plot size is also a significant factor in the overall value.
Therefore, we give this property 8 / 10. *Disclaimer: This is our option and does constitute a recommendation or financial advice. Do your own research. *
- Price
- 8
- Condition
- 9
- Location
- 9
- Land
- 8
- Bedrooms
- 3
- Bathrooms
- 2
- Sqft (est)
- 1,139.83
- Lot (est)
- 1,776.00
The heatmap indicates the level of crime in the area. The color of the heatmap indicates the crime severity and recency.
Metrics Year-on-Year
- Average area value
- 595,000.00 £Decreased by 17.33 %
- Est sale value
- 602,970.07 £Increased by 8.40 %
- Average area rental value
- 2,575.00 £/moIncreased by 93.17 %
- Est letting value
- 2,279.66 £/mo
- Est rental Yield
- 5.19 %Increased by 133.78 %
- Crime Rate
- 0.00 %
Agent Activity
Ashtons created the listing.
Nearby Schools
| Name | Type | Ofsted | Distance |
|---|---|---|---|
| St Ippolyts Church Of England Aided Primary School | Voluntary Aided School | Good | 0.36 KM |
| Kingshott School | Other Independent School | 1.06 KM | |
| Whitehill Junior School | Community School | Good | 1.40 KM |
| William Ransom Primary School | Community School | Outstanding | 2.08 KM |
| Highbury Infant School And Nursery | Community School | Good | 2.14 KM |
Images
Nearby Streets
| Name | Average Price | Average Sqft | Distance |
|---|---|---|---|
| Broadmead | £ 775,000 | 0 | 0.00 KM |
| Poplar Close | £ 0 | 0 | 0.00 KM |
| Manor Crescent | £ 499,995 | 0 | 0.00 KM |
| The Beeches | £ 0 | 0 | 0.00 KM |
| Riddy Lane | £ 620,000 | 0 | 0.00 KM |
Nearby Transport
| Name | NLC | TLC | Distance |
|---|---|---|---|
| Hitchin | 6086 | HIT | 2.64 KM |
| Letchworth Garden City | 6089 | LET | 6.68 KM |
| Stevenage | 6092 | SVG | 6.83 KM |
Nearby Listings
| Address | Price | Type | Score | Distance |
|---|---|---|---|---|
| Henry Isaac Mews, Brookend Lane, St. Ippolyts, Hitchin, SG4 | £ 1,350,000 | BUY | Unknown | 0.00 KM |
| Henry Isaac Mews, Brookend Lane, St. Ippolyts, Hitchin, SG4 | £ 1,100,000 | BUY | 6 / 10 | 0.00 KM |
| Henry Isaac Mews, Brookend Lane, St. Ippolyts, Hitchin, SG4 | £ 900,000 | BUY | 8 / 10 | 0.00 KM |
| Henry Isaac Mews, Brookend Lane, St. Ippolyts, Hitchin, SG4 | £ 1,100,000 | BUY | 6 / 10 | 0.01 KM |
| Henry Isaac Mews, Brookend Lane, St. Ippolyts, Hitchin, SG4 | £ 925,000 | BUY | 7 / 10 | 0.01 KM |
Nearby Properties
| Address | Price | Distance |
|---|---|---|
| 116 London Road | £ 620,000 | 0.40 KM |
| 104 London Road | £ 140,000 | 0.40 KM |
| 106 London Road | £ 575,500 | 0.40 KM |
| 14 Waterdell Lane | £ 335,000 | 0.44 KM |
| 16 Waterdell Lane | £ 486,000 | 0.44 KM |