Drayton Gardens, West Drayton, UB7
By Kearns Residential
£ 540,000
Reviews
3 out of 5 stars
Kearns Residential says ..
A fantastic three-bedroom property, found in close proximity to all local amenities.
Property Oracle says ..
This three-bedroom property in West Drayton, UB7 offers a convenient location with nearby schools, transportation links, and amenities. The property appears to be in good condition based on the provided photos, showing a well-maintained interior and exterior. The presence of a garden is a positive feature. While the list price of £540,000 is slightly above the average price for the area (£497,214), the property’s condition and the inclusion of a garden could justify this difference. Further, the average price per sqft in the area is £451, and this property is listed at approximately £662 per sqft, which is higher than average. However, it is important to consider that the average sqft for the area is significantly larger than this property. Considering the above factors, the property seems reasonably priced.
Therefore, we give this property 7 / 10. *Disclaimer: This is our option and does constitute a recommendation or financial advice. Do your own research. *
- Price
- 7
- Condition
- 8
- Location
- 8
- Land
- 7
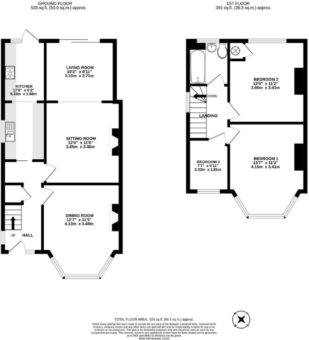
- Bedrooms
- 3
- Bathrooms
- 1
- Sqft (est)
- 816.98
- Lot (est)
- 538.20
The heatmap indicates the level of crime in the area. The color of the heatmap indicates the crime severity and recency.
Metrics Year-on-Year
- Average area value
- 446,667.00 £Increased by 5.47 %
- Est sale value
- 458,325.78 £Increased by 26.35 %
- Average area rental value
- 1,473.00 £/moDecreased by 14.21 %
- Est letting value
- 816.98 £/moUnchanged by 0.00 %
- Est rental Yield
- 3.96 %Decreased by 18.69 %
- Crime Rate
- 2.00 %Unchanged by 0.00 %
Agent Activity
Kearns Residential marked this listing as sold.
Kearns Residential created the listing.
Nearby Schools
| Name | Type | Ofsted | Distance |
|---|---|---|---|
| Laurel Lane Primary School | Academy Sponsor Led | Good | 0.67 KM |
| St Catherine Catholic Primary School | Voluntary Aided School | Good | 0.69 KM |
| West Drayton Academy | Academy Converter | Good | 0.70 KM |
| St Martin'S Church Of England Primary School | Academy Sponsor Led | Good | 0.85 KM |
| St Matthew'S Cofe Primary School | Academy Converter | Requires improvement | 0.85 KM |
Images
Nearby Streets
| Name | Average Price | Average Sqft | Distance |
|---|---|---|---|
| Avenue Close | £ 0 | 0 | 0.00 KM |
| Queens Road | £ 0 | 0 | 0.00 KM |
| St Martin's Close | £ 0 | 0 | 0.00 KM |
| Y8 | £ 0 | 0 | 0.00 KM |
| Bell Avenue | £ 0 | 0 | 0.00 KM |
Nearby Transport
| Name | NLC | TLC | Distance |
|---|---|---|---|
| West Drayton | 3174 | WDT | 0.54 KM |
| Iver | 3170 | IVR | 3.77 KM |
| Heathrow Terminals 2 And 3 (Rail Station Only) | 7090 | HXX | 4.28 KM |
| Heathrow Terminal 5 | 9846 | HWV | 4.38 KM |
| Hayes And Harlington | 3186 | HAY | 5.77 KM |
Nearby Listings
| Address | Price | Type | Score | Distance |
|---|---|---|---|---|
| Drayton Gardens, West Drayton, UB7 | £ 540,000 | BUY | 7 / 10 | 0.00 KM |
| Drayton Gardens, West Drayton | £ 825,000 | BUY | 6 / 10 | 0.10 KM |
| Drayton Gardens, West Drayton | £ 585,000 | BUY | Unknown | 0.12 KM |
| Drayton Gardens, West Drayton | £ 565,000 | BUY | 6 / 10 | 0.12 KM |
| Osprey Close, West Drayton | £ 300,000 | BUY | 6 / 10 | 0.14 KM |
Nearby Properties
| Address | Price | Distance |
|---|---|---|
| 5 Beaudesert Mews | £ 967,500 | 0.10 KM |
| 3 Beaudesert Mews | £ 218,000 | 0.10 KM |
| 98 Drayton Gardens | £ 347,500 | 0.10 KM |
| 103 Drayton Gardens | £ 174,500 | 0.10 KM |
| 127 Drayton Gardens | £ 265,000 | 0.10 KM |