Main Street, Newmilns, KA16
MC

Main Street, Newmilns, KA16

By McGowan Housing

£ 38,000

Reviews

2 out of 5 stars

McGowan Housing says ..

Perfect First Time Buyer Opportunity | 2 Bedroom flat | Spacious Rooms | Well Maintained Property | Easy Access to local amenities

Property Oracle says ..

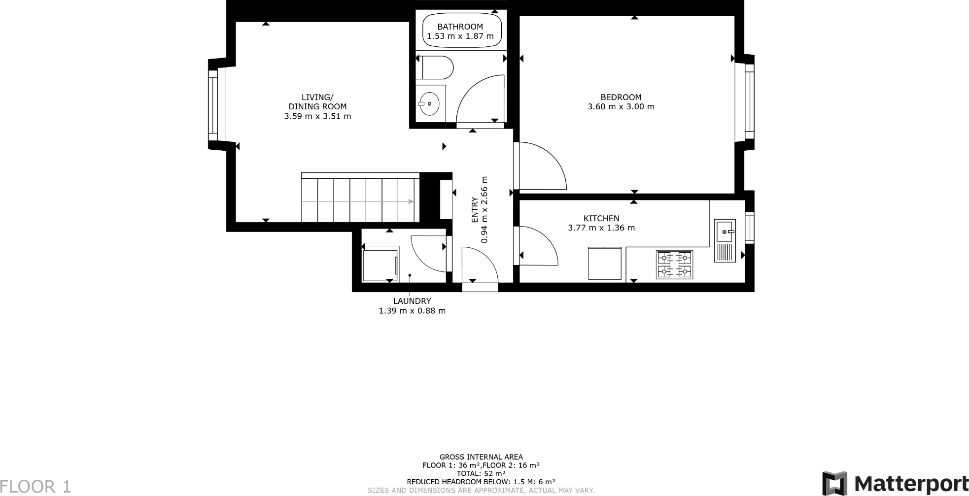
This 2-bedroom flat located on Main Street, Newmilns, East Ayrshire, is listed at £38,000. The property appears to have undergone recent renovations, showcasing a modern kitchen and bathroom with new fittings. The interior is presented in neutral colors and with new carpeting throughout. Images reveal a relatively small plot size with no garden. While the interior is well-presented, the exterior shows some signs of wear and tear common in older buildings. The lack of details regarding proximity to amenities, schools, and transport links limits a full assessment of its location. Further information, including a full home report and precise details on nearby amenities and services, would enhance the overall appraisal. In conclusion, this property could be an attractive prospect for first-time buyers or investors seeking a ready-to-move-in property, although a lack of outdoor space is a drawback. The location, while on Main Street, requires further investigation to determine its convenience and desirability.

Therefore, we give this property 4 / 10. *Disclaimer: This is our option and does constitute a recommendation or financial advice. Do your own research. *

Price
7
Condition
7
Location
4
Land
1
Bedrooms
2
Bathrooms
1
Sqft (est)
559.72

The heatmap indicates the level of crime in the area. The color of the heatmap indicates the crime severity and recency.

Metrics Year-on-Year

Average area value
317,330.00 £
Decreased by 9.75 %
from 351,619.00 £
Est sale value
239,000.44 £
Increased by 25.96 %
from 189,745.08 £
Average area rental value
1,425.00 £/mo
Increased by 27.12 %
from 1,121.00 £/mo
Est letting value
559.72 £/mo
Unchanged by 0.00 %
from 559.72 £/mo
Est rental Yield
5.39 %
Increased by 40.73 %
from 3.83 %
Crime Rate
0.00 %
from 0.00 %

Agent Activity

  • McGowan Housing created the listing.

Images

External Lounge Lounge Lounge Kitchen Kitchen Bathroom Bedroom Bedroom External Bedroom Bedroom Bedroom External External Kitchen Bedroom

Nearby Streets

NameAverage PriceAverage SqftDistance
Brown's Road £ 000.00 KM
East Strand £ 000.00 KM
Borebrae Crescent £ 79,99500.00 KM
Persian Sands £ 59,99500.00 KM
Regents Court £ 000.00 KM

Nearby Listings

AddressPriceTypeScoreDistance
Main Street, Newmilns, East Ayrshire, KA16 £ 80,000BUYUnknown0.12 KM
, 3,520 Sq.Ft Plot at High Street, Newmilns, KA169EG £ 8,000BUY4 / 100.13 KM
West Church Street, Newmilns, KA16 £ 69,995BUY6 / 100.14 KM
Main Street, Newmilns, KA16 £ 30,000BUY4 / 100.14 KM
Main Street, Newmilns, KA16 £ 37,000BUY5 / 100.14 KM