P Wilson & Company says ..
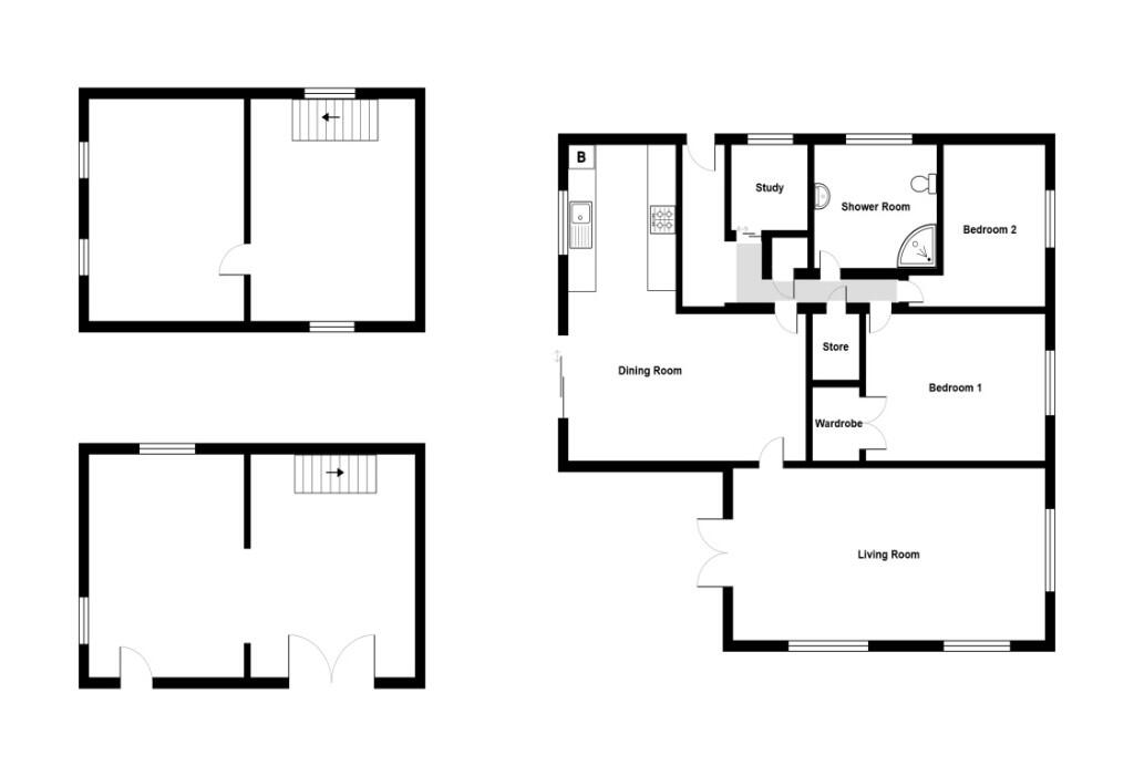
A two-bedroom detached true bungalow situated in a rural position yet close to the village of Tarleton with a range of local amenities, schools and close to wider transport links. The bungalow sits in 0.75 acres (0.31 hectares) or thereabouts of outside space, together with a detached barn.
Property Oracle says ..
This property is a detached bungalow located in Tarleton, West Lancashire. The location benefits from nearby schools (Hesketh-With-Becconsall All Saints Cofe School, Tarleton Community Primary School, and others) rated as good by Ofsted, and several train stations within a reasonable distance. While the property itself is in a relatively rural setting, the proximity to Tarleton and Hesketh Bank suggests access to local amenities. The images show a property that appears well-maintained, though it has a traditional style that may not appeal to all buyers. The property includes a garden and what looks like a greenhouse, offering outdoor space. The list price is slightly above the average for the area, but comparable properties show some variation in pricing. More information on the square footage would be needed to provide a definitive assessment of value for money.
Therefore, we give this property 7 / 10. *Disclaimer: This is our option and does constitute a recommendation or financial advice. Do your own research. *
- Price
- 7
- Condition
- 8
- Location
- 7
- Land
- 7
- Bedrooms
- 2
- Bathrooms
- 0
The heatmap indicates the level of crime in the area. The color of the heatmap indicates the crime severity and recency.
Metrics Year-on-Year
- Average area value
- 382,533.00 £Increased by 3.77 %
- Average area rental value
- 1,090.00 £/moDecreased by 17.67 %
- Est rental Yield
- 3.42 %Decreased by 20.65 %
- Crime Rate
- 0.00 %
Agent Activity
P Wilson & Company created the listing.
Nearby Schools
| Name | Type | Ofsted | Distance |
|---|---|---|---|
| Hesketh With Becconsall Children'S Centre | Children's Centre Linked Site | 2.91 KM | |
| Hesketh-With-Becconsall All Saints Cofe School | Voluntary Aided School | Good | 2.91 KM |
| Tarleton Community Primary School | Foundation School | Good | 2.98 KM |
| Tarleton Academy | Academy Converter | Good | 3.49 KM |
| Tarleton Holy Trinity Cofe Primary School | Voluntary Aided School | Good | 3.54 KM |
Images
Nearby Streets
| Name | Average Price | Average Sqft | Distance |
|---|---|---|---|
| Bolton's Meanygate | £ 0 | 0 | 0.00 KM |
| Johnson's Meanygate | £ 600,000 | 0 | 0.00 KM |
Nearby Transport
| Name | NLC | TLC | Distance |
|---|---|---|---|
| New Lane | 2358 | NLN | 8.19 KM |
| Rufford | 2315 | RUF | 8.27 KM |
| Bescar Lane | 2351 | BES | 8.92 KM |
| Burscough Bridge | 2279 | BCB | 9.20 KM |
| Croston | 2313 | CSO | 9.58 KM |
Nearby Listings
| Address | Price | Type | Score | Distance |
|---|---|---|---|---|
| Middle Meanygate, PR4 | £ 450,000 | BUY | 7 / 10 | 0.00 KM |
| Moss Lane, Hesketh Bank, PR4 | £ 795,000 | BUY | Unknown | 1.51 KM |
| Moss Lane, Hesketh Bank | £ 525,000 | BUY | 7 / 10 | 1.51 KM |
| Moss Lane, Hesketh Bank, PR4 | £ 225,000 | BUY | 7 / 10 | 1.52 KM |
| Gorse Lane, Tarleton, Preston, PR4 | £ 600,000 | BUY | Unknown | 1.89 KM |
Nearby Properties
| Address | Price | Distance |
|---|---|---|
| 420 Moss Lane | £ 265,000 | 1.27 KM |
| 452 Moss Lane | £ 540,000 | 1.27 KM |
| 408 Moss Lane | £ 360,000 | 1.27 KM |
| Sunnydene | £ 195,000 | 1.31 KM |
| Auldene | £ 139,950 | 1.33 KM |