Grange Road, Wigston, Leicester
By Knightsbridge Estate Agents & Valuers
£ 310,000
Reviews
3 out of 5 stars
Knightsbridge Estate Agents & Valuers says ..
Situated on sought-after Grange Road, this extended three-bedroom home offers spacious living, off-road parking, and a beautifully maintained garden. Contact our Wigston office to view.
Property Oracle says ..
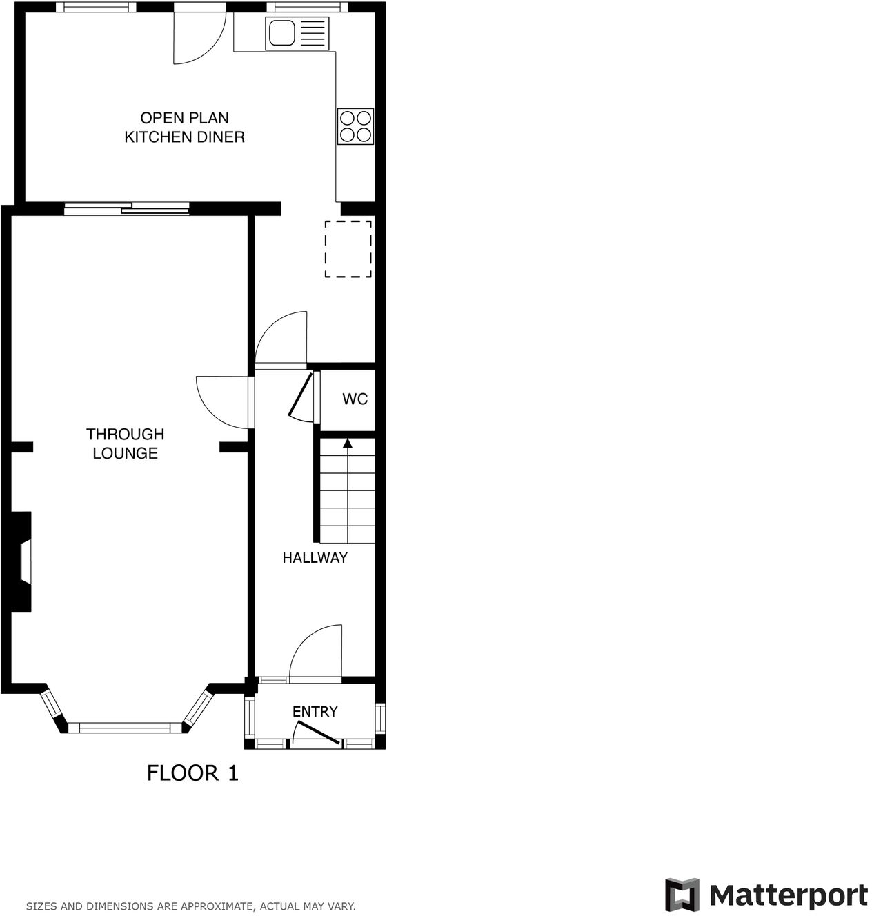
This property is located on Grange Road in Wigston, Leicester. Based on the provided images, the property appears to be in good condition, with a recently updated kitchen and bathrooms. The property benefits from a garden. While the exact size is not specified, the images show a reasonable-sized garden for the area. The list price of £310,000 seems slightly high compared to other nearby properties, particularly given the relatively small size of 400 sqft. However, the updated condition and inclusion of a garden may justify a higher price point than similar properties in the area that are in need of renovation. More information on the average price per sqft for comparable properties in the area would be needed to give a more definitive assessment of the price.
Therefore, we give this property 7 / 10. *Disclaimer: This is our option and does constitute a recommendation or financial advice. Do your own research. *
- Price
- 6
- Condition
- 8
- Location
- 7
- Land
- 7
- Bedrooms
- 3
- Bathrooms
- 1
- Sqft (est)
- 400.00
The heatmap indicates the level of crime in the area. The color of the heatmap indicates the crime severity and recency.
Metrics Year-on-Year
- Average area value
- 318,333.00 £Increased by 4.59 %
- Est sale value
- 131,200.00 £Increased by 15.09 %
- Average area rental value
- 1,200.00 £/moIncreased by 16.39 %
- Est letting value
- 400.00 £/mo
- Est rental Yield
- 4.52 %Increased by 11.33 %
- Crime Rate
- 4.00 %Unchanged by 0.00 %
Agent Activity
Knightsbridge Estate Agents & Valuers marked this listing as sold.
Knightsbridge Estate Agents & Valuers created the listing.
Nearby Schools
| Name | Type | Ofsted | Distance |
|---|---|---|---|
| Overdale Infant School | Academy Converter | 0.96 KM | |
| Overdale Junior School | Academy Converter | 1.07 KM | |
| All Saints Church Of England Primary School | Academy Converter | 1.10 KM | |
| Wigston Magna Sure Start Children'S Centre | Children's Centre | 1.13 KM | |
| Water Leys Primary School | Community School | Good | 1.21 KM |
Images
Nearby Streets
| Name | Average Price | Average Sqft | Distance |
|---|---|---|---|
| Fir Tree Crescent | £ 0 | 0 | 0.00 KM |
| The Crescent | £ 0 | 0 | 0.00 KM |
| Kings Drive | £ 0 | 0 | 0.00 KM |
| Maromme Square | £ 0 | 0 | 0.00 KM |
| Central Avenue | £ 220,000 | 0 | 0.00 KM |
Nearby Transport
| Name | NLC | TLC | Distance |
|---|---|---|---|
| South Wigston | 1949 | SWS | 3.21 KM |
| Leicester | 1947 | LEI | 4.49 KM |
Nearby Listings
| Address | Price | Type | Score | Distance |
|---|---|---|---|---|
| Grange Road, Wigston, Leicester | £ 285,000 | BUY | 7 / 10 | 0.09 KM |
| Grangeway Road, Wigston | £ 280,000 | BUY | 6 / 10 | 0.10 KM |
| Grangeway Road, Wigston, Leicester | £ 315,000 | BUY | 6 / 10 | 0.12 KM |
| Leicester Road, Wigston, LE18 | £ 270,000 | BUY | 7 / 10 | 0.17 KM |
| Brighton Avenue, Wigston, Leicestershire, LE18 | £ 210,000 | BUY | 6 / 10 | 0.23 KM |
Nearby Properties
| Address | Price | Distance |
|---|---|---|
| 16 Grange Road | £ 180,000 | 0.03 KM |
| 54 Grange Road | £ 164,950 | 0.03 KM |
| 4 Grange Road | £ 157,000 | 0.03 KM |
| 60 Grange Road | £ 143,000 | 0.03 KM |
| 42 Grange Road | £ 213,500 | 0.03 KM |