29 Mid Dykes Road, Saltcoats, KA21 6BZ
By Taylor & Henderson
£ 279,000
Reviews
3 out of 5 stars
Taylor & Henderson says ..
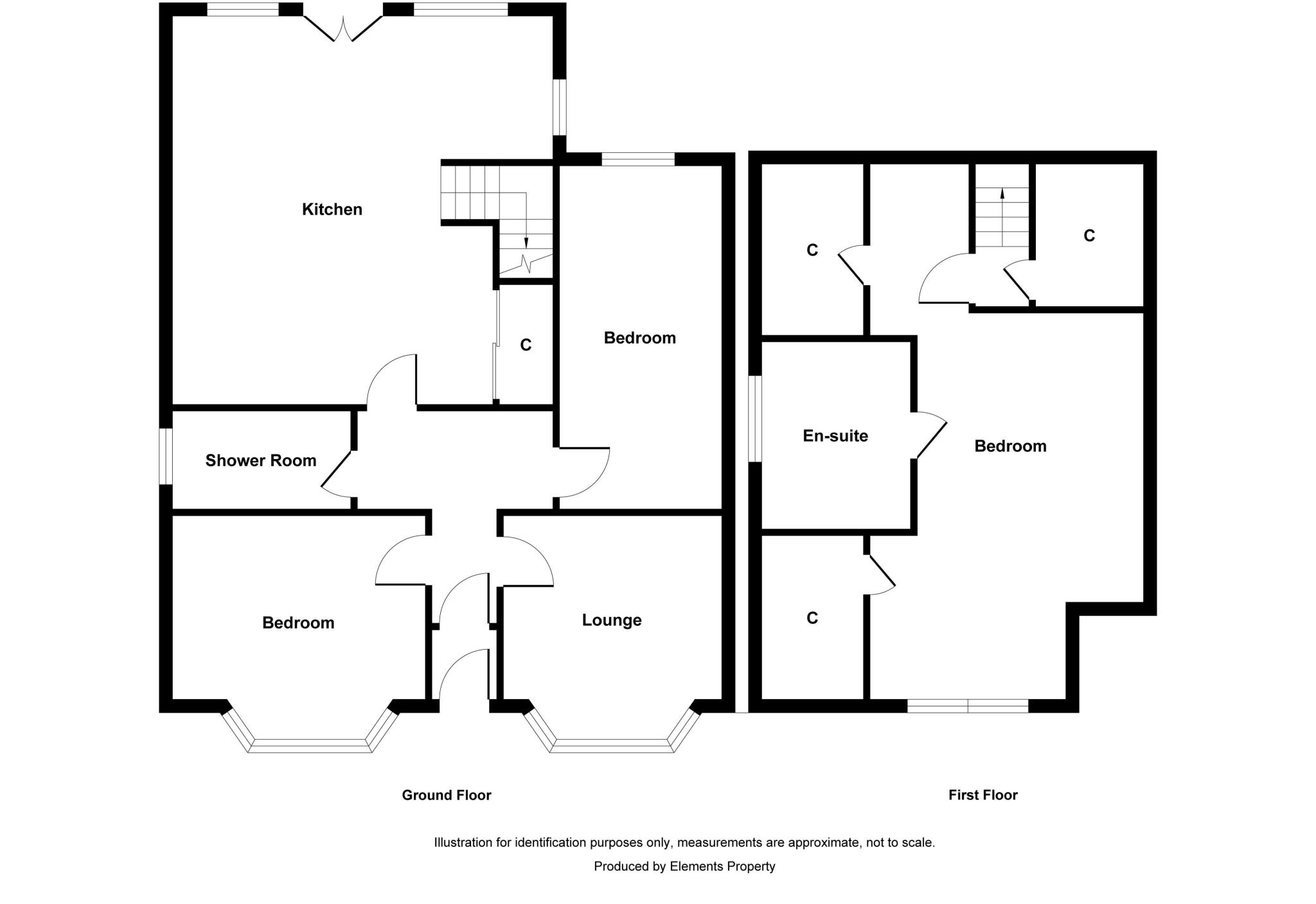
Taylor and Henderson are delighted to bring to the market this rarely available, well presented detached villa located within extremely sought after residential locale. The versatile family accommodation comprises entrance porch, reception hallway, lounge with bay window and feature fireplace,...
Property Oracle says ..
This is a detached property in Saltcoats, North Ayrshire, featuring three bedrooms and two bathrooms. The house is in good condition, with a modern kitchen and bathrooms. It also benefits from a well-maintained garden. The property is located close to local amenities and transportation links, including Ardrossan South Beach train station. The price is slightly above the average for the area, but reflects the property’s condition and location.
Therefore, we give this property 7 / 10. *Disclaimer: This is our option and does constitute a recommendation or financial advice. Do your own research. *
- Price
- 6
- Condition
- 8
- Location
- 7
- Land
- 7
- Bedrooms
- 3
- Bathrooms
- 2
- Sqft (est)
- 740.00
The heatmap indicates the level of crime in the area. The color of the heatmap indicates the crime severity and recency.
Metrics Year-on-Year
- Average area value
- 327,363.00 £Increased by 26.97 %
- Est sale value
- 284,160.00 £Increased by 70.67 %
- Average area rental value
- 1,112.00 £/moIncreased by 23.69 %
- Est letting value
- 740.00 £/mo
- Est rental Yield
- 4.08 %Decreased by 2.39 %
- Crime Rate
- 0.00 %
Agent Activity
Taylor & Henderson created the listing.
Images
Nearby Streets
| Name | Average Price | Average Sqft | Distance |
|---|---|---|---|
| Dykesfield Place | £ 235,000 | 0 | 0.00 KM |
| Caaf Water Place | £ 189,000 | 0 | 0.00 KM |
| Murray Avenue | £ 0 | 0 | 0.00 KM |
| Murdoch Court | £ 0 | 0 | 0.00 KM |
| Waverley Place | £ 0 | 0 | 0.00 KM |
Nearby Transport
| Name | NLC | TLC | Distance |
|---|---|---|---|
| Ardrossan South Beach | 9569 | ASB | 0.82 KM |
| Saltcoats | 9547 | SLT | 1.89 KM |
| Ardrossan Town | 9455 | ADN | 2.01 KM |
| Ardrossan Harbour | 9453 | ADS | 2.89 KM |
| Stevenston | 9553 | STV | 5.16 KM |
Nearby Listings
| Address | Price | Type | Score | Distance |
|---|---|---|---|---|
| 29 Mid Dykes Road, Saltcoats, KA21 6BZ | £ 279,000 | BUY | 7 / 10 | 0.00 KM |
| 3a High Road, Saltcoats, Ayrshire, KA21 5RX | £ 205,000 | BUY | 7 / 10 | 0.14 KM |
| High Road, Saltcoats, Ayrshire, KA21 | £ 230,000 | BUY | 5 / 10 | 0.15 KM |
| Dykesfield Place, Saltcoats, KA21 6 | £ 240,000 | BUY | 7 / 10 | 0.25 KM |
| 2 Caaf Water Place, Saltcoats, KA21 6HJ | £ 220,000 | BUY | 7 / 10 | 0.27 KM |