Dexters says ..
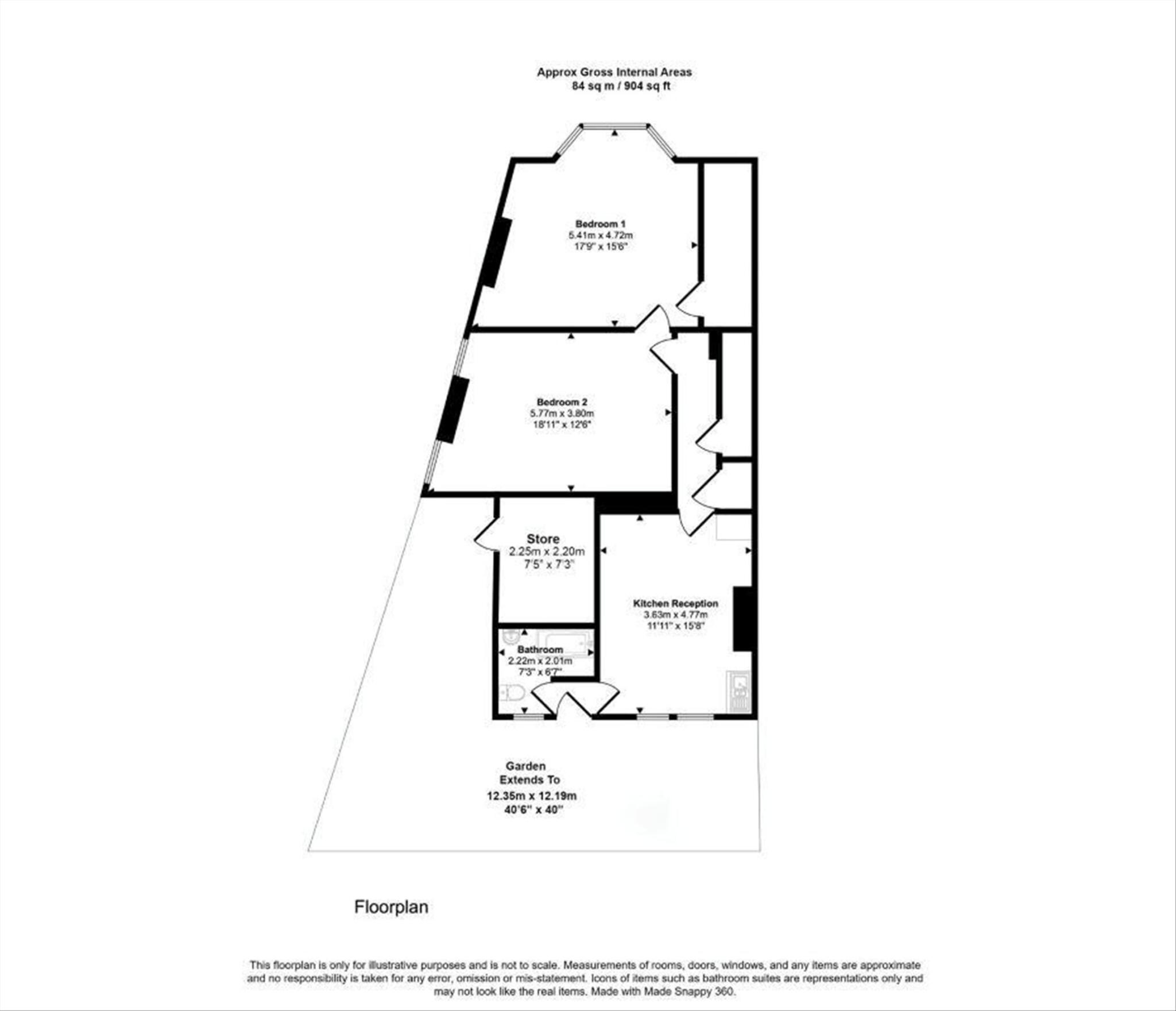
A larger than average two double bedroom ground floor garden flat with huge potential for extending and alterations (STPP) for any incoming purchaser. With a generous footprint, the property offers two double bedrooms, an open plan kitchen/reception room and a private garden positioned in the hea...
Property Oracle says ..
This is a two-bedroom flat in Tooting, London. The property is in need of renovation, but it offers a good amount of space at 904 sqft and is located in a desirable area with good transport links and local amenities. The property is listed at £475,000, which is in line with the average price for properties in the area, and represents good value for money given the size of the property.
Therefore, we give this property 5 / 10. *Disclaimer: This is our option and does constitute a recommendation or financial advice. Do your own research. *
- Price
- 7
- Condition
- 3
- Location
- 7
- Land
- 4
- Bedrooms
- 2
- Bathrooms
- 1
- Sqft (est)
- 904.17
- Lot (est)
- 1,618.25
The heatmap indicates the level of crime in the area. The color of the heatmap indicates the crime severity and recency.
Metrics Year-on-Year
- Average area value
- 475,625.00 £Decreased by 30.32 %
- Est sale value
- 641,960.70 £Increased by 0.28 %
- Average area rental value
- 2,932.00 £/moIncreased by 7.60 %
- Est letting value
- 3,616.68 £/moIncreased by 100.00 %
- Est rental Yield
- 7.40 %Increased by 54.49 %
- Crime Rate
- 7.00 %Unchanged by 0.00 %
Agent Activity
Dexters created the listing.
Nearby Schools
| Name | Type | Ofsted | Distance |
|---|---|---|---|
| Al Risalah Boys' School | Other Independent School | Good | 0.27 KM |
| Al Risalah Secondary School | Other Independent School | Requires improvement | 0.29 KM |
| St Boniface Rc Primary School | Voluntary Aided School | Outstanding | 0.34 KM |
| Tooting Primary School | Free Schools | Outstanding | 0.38 KM |
| Francis Barber Pupil Referral Unit | Pupil Referral Unit | Good | 0.39 KM |
Images
Nearby Streets
| Name | Average Price | Average Sqft | Distance |
|---|---|---|---|
| Upper Tooting Road | £ 410,000 | 0 | 0.00 KM |
| St. Cyprians Street | £ 650,000 | 0 | 0.00 KM |
| Topsham Road | £ 750,000 | 0 | 0.00 KM |
| Laurel Close | £ 0 | 0 | 0.00 KM |
| Fovant Hut | £ 0 | 0 | 0.00 KM |
Nearby Transport
| Name | NLC | TLC | Distance |
|---|---|---|---|
| Tooting | 5389 | TOO | 1.15 KM |
| Wandsworth Common | 5395 | WSW | 1.82 KM |
| Balham | 5399 | BAL | 1.95 KM |
| Mitcham Eastfields | 5069 | MTC | 2.66 KM |
| Haydons Road | 5289 | HYR | 2.81 KM |
Nearby Listings
| Address | Price | Type | Score | Distance |
|---|---|---|---|---|
| Kellino Street, Tooting | £ 475,000 | BUY | 5 / 10 | 0.00 KM |
| Ground Floor Flat, 43 Kellino Street, Tooting, London, SW17 8SY | £ 375,000 | BUY | 5 / 10 | 0.01 KM |
| Letchworth Street, Tooting | £ 450,000 | BUY | 6 / 10 | 0.05 KM |
| Eswyn Road, Tooting | £ 1,050,000 | BUY | 6 / 10 | 0.06 KM |
| Letchworth Street, Tooting | £ 700,000 | BUY | 5 / 10 | 0.09 KM |
Nearby Properties
| Address | Price | Distance |
|---|---|---|
| 45a Letchworth Street | £ 175,000 | 0.05 KM |
| 38a Letchworth Street | £ 200,000 | 0.05 KM |
| 36a Letchworth Street | £ 206,000 | 0.05 KM |
| 21a Letchworth Street | £ 83,000 | 0.05 KM |
| 14 Letchworth Street | £ 730,500 | 0.05 KM |