Elmcroft Avenue, Edmonton, N9
By Castles Estate Agents
£ 425,000
Reviews
3 out of 5 stars
Castles Estate Agents says ..
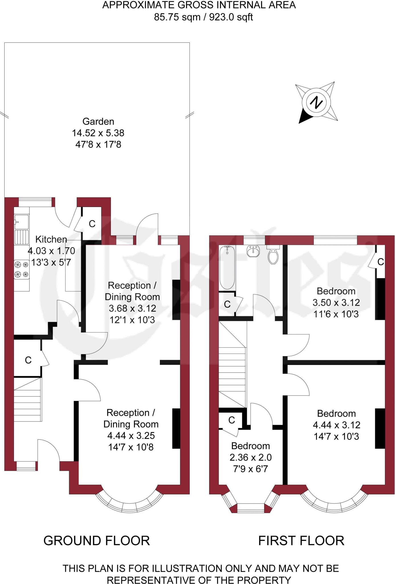
A three bedroom 1930's Terraced property situated on the popular Galliard Estate N9. The property comprises of two Receptions and kitchen to ground floor with a further three bedrooms and bathroom to first floor. It also has features to include,47ft rear garden, gas central heating, double gl...
Property Oracle says ..
This three-bedroom terraced house in Edmonton, Enfield is listed at £425,000. The property benefits from a good-sized garden and is conveniently located near several schools and transportation links. However, the interior appears to be in need of some modernisation and updating, which should be considered when assessing the value. The average price for similar properties in the area is £372,727, with an average price per square foot of £502. This property is slightly above average in price, but given its location and the size of the garden, it may still represent reasonable value for money, depending on the cost of the necessary renovations.
Therefore, we give this property 7 / 10. *Disclaimer: This is our option and does constitute a recommendation or financial advice. Do your own research. *
- Price
- 7
- Condition
- 6
- Location
- 8
- Land
- 7
- Bedrooms
- 3
- Bathrooms
- 1
- Sqft (est)
- 638.28
- Lot (est)
- 923.00
The heatmap indicates the level of crime in the area. The color of the heatmap indicates the crime severity and recency.
Metrics Year-on-Year
- Average area value
- 240,000.00 £Decreased by 38.64 %
- Est sale value
- 309,565.80 £Increased by 29.33 %
- Average area rental value
- 1,713.00 £/moDecreased by 9.46 %
- Est letting value
- 1,914.84 £/moIncreased by 200.00 %
- Est rental Yield
- 8.57 %Increased by 47.76 %
- Crime Rate
- 5.00 %Unchanged by 0.00 %
Agent Activity
Castles Estate Agents created the listing.
Nearby Schools
| Name | Type | Ofsted | Distance |
|---|---|---|---|
| St Alpheges Children'S Centre | Children's Centre Linked Site | 0.24 KM | |
| Heron Hall Academy | Free Schools | Good | 0.63 KM |
| One Degree Academy | Free Schools | Outstanding | 0.63 KM |
| Woodpecker Hall Primary Academy | Free Schools | Good | 0.73 KM |
| Houndsfield Primary School | Academy Sponsor Led | 0.82 KM |
Images
Nearby Streets
| Name | Average Price | Average Sqft | Distance |
|---|---|---|---|
| Scarborough Road | £ 0 | 0 | 0.00 KM |
| Lincoln Road | £ 0 | 0 | 0.00 KM |
| Clifford Road | £ 0 | 0 | 0.00 KM |
| St Michaels Avenue | £ 0 | 0 | 0.00 KM |
| Mansfield Close | £ 425,000 | 0 | 0.00 KM |
Nearby Transport
| Name | NLC | TLC | Distance |
|---|---|---|---|
| Southbury | 6947 | SBU | 0.96 KM |
| Ponders End | 6819 | PON | 1.76 KM |
| Bush Hill Park | 6913 | BHK | 2.03 KM |
| Edmonton Green | 6941 | EDR | 2.04 KM |
| Brimsdown | 6810 | BMD | 2.80 KM |
Nearby Listings
| Address | Price | Type | Score | Distance |
|---|---|---|---|---|
| Elmcroft Avenue, Edmonton, N9 | £ 425,000 | BUY | 7 / 10 | 0.00 KM |
| Elmcroft Avenue, London, N9 | £ 485,000 | BUY | Unknown | 0.02 KM |
| Elmcroft Avenue, London, N9 | £ 500,000 | BUY | 6 / 10 | 0.06 KM |
| Elmcroft Avenue, London, N9 | £ 450,000 | BUY | 6 / 10 | 0.07 KM |
| Elmcroft Avenue, Edmonton, N9 | £ 450,000 | BUY | Unknown | 0.08 KM |
Nearby Properties
| Address | Price | Distance |
|---|---|---|
| 24 Elmcroft Avenue | £ 380,000 | 0.00 KM |
| 60 Elmcroft Avenue | £ 250,000 | 0.00 KM |
| 48 Elmcroft Avenue | £ 265,000 | 0.00 KM |
| 40 Elmcroft Avenue | £ 269,000 | 0.00 KM |
| 34 Elmcroft Avenue | £ 320,000 | 0.00 KM |