MA
Upfield, Horley, Surrey, RH6
By Mayhew Estates
£ 400,000
Reviews
3 out of 5 stars
Mayhew Estates says ..
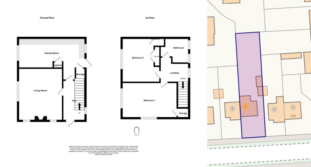
LARGE GARDEN! A recently modernised two double bedroom semi-detached house situated a short walk from Horley town centre and train station.
Property Oracle says ..
Therefore, we give this property 7 / 10. *Disclaimer: This is our option and does constitute a recommendation or financial advice. Do your own research. *
- Price
- 6
- Condition
- 8
- Location
- 8
- Land
- 7
- Bedrooms
- 2
- Bathrooms
- 1
- Sqft (est)
- 832.00
The heatmap indicates the level of crime in the area. The color of the heatmap indicates the crime severity and recency.
Metrics Year-on-Year
- Average area value
- 401,643.00 £Decreased by 13.23 %
- Est sale value
- 396,032.00 £Increased by 40.83 %
- Average area rental value
- 1,377.00 £/moDecreased by 6.96 %
- Est letting value
- 832.00 £/moUnchanged by 0.00 %
- Est rental Yield
- 4.11 %Increased by 7.03 %
- Crime Rate
- 1.00 %Unchanged by 0.00 %
from 462,859.00 £
from 281,216.00 £
from 1,480.00 £/mo
from 832.00 £/mo
from 3.84 %
from 1.00 %
Agent Activity
Mayhew Estates created the listing.
Nearby Schools
| Name | Type | Ofsted | Distance |
|---|---|---|---|
| Horley Infant School | Community School | Good | 1.00 KM |
| Yattendon School | Foundation School | Good | 1.29 KM |
| Manorfield Primary And Nursery School | Community School | Good | 1.32 KM |
| Oakwood School | Community School | Good | 1.39 KM |
| Langshott Primary School | Community School | Good | 1.51 KM |
Images
Nearby Streets
| Name | Average Price | Average Sqft | Distance |
|---|---|---|---|
| Delta Bungalows | £ 0 | 0 | 0.00 KM |
| The Drive | £ 475,000 | 0 | 0.00 KM |
| Fishers Farm | £ 795,000 | 0 | 0.00 KM |
| Church View Close | £ 691,833 | 0 | 0.00 KM |
| Larksfield | £ 550,000 | 0 | 0.00 KM |
Nearby Transport
| Name | NLC | TLC | Distance |
|---|---|---|---|
| Horley | 5365 | HOR | 0.60 KM |
| Gatwick Airport | 5416 | GTW | 1.14 KM |
| Salfords (Surrey) | 5380 | SAF | 4.03 KM |
| Three Bridges | 5491 | TBD | 5.45 KM |
| Crawley | 5484 | CRW | 6.39 KM |
Nearby Listings
| Address | Price | Type | Score | Distance |
|---|---|---|---|---|
| Upfield, Horley, Surrey, RH6 | £ 400,000 | BUY | 7 / 10 | 0.00 KM |
| Upfield, Horley | £ 625,000 | BUY | 7 / 10 | 0.01 KM |
| Upfield, Horley, Surrey, RH6 | £ 550,000 | BUY | 7 / 10 | 0.08 KM |
| The Ridgeway, Horley, Surrey, RH6 | £ 375,000 | BUY | 6 / 10 | 0.16 KM |
| Upfield, Horley, Surrey, RH6 | £ 625,000 | BUY | Unknown | 0.18 KM |
Nearby Properties
| Address | Price | Distance |
|---|---|---|
| 62 Upfield | £ 266,000 | 0.01 KM |
| 46 Upfield | £ 335,000 | 0.01 KM |
| 44 Upfield | £ 320,000 | 0.01 KM |
| 52 Upfield | £ 365,000 | 0.01 KM |
| 54 Upfield | £ 142,500 | 0.01 KM |