118 Whitburn Street, Carntyne, Glasgow, G32
PA

118 Whitburn Street, Carntyne, Glasgow, G32

By Pacitti Jones

£ 89,995

Reviews

3 out of 5 stars

Pacitti Jones says ..

Rarely available larger-style upper cottage flat with 3-bedrooms and a private south-facing garden, situated in a well-established and popular location. EPC - D

Property Oracle says ..

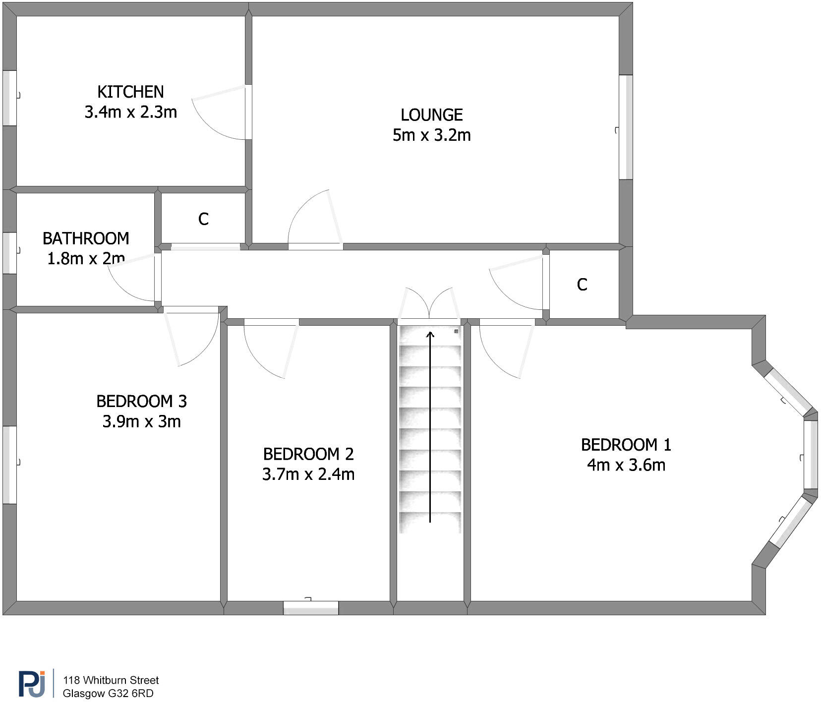
This property is a 3-bedroom flat located on Whitburn Street in Carntyne, Glasgow. The location benefits from being near the Carntyne train station, offering convenient transportation links. The internal photos suggest that the property requires renovation. The kitchen and bathroom appear dated, and the general decor throughout the flat would benefit from modernisation. The property includes a garden, which is a desirable feature. The asking price is £89,995. The average price per square foot in the area is £246. With a square footage of 671.67, the average property price would be around £165,230. This suggests that the property is well-priced, reflecting its condition.

Therefore, we give this property 6 / 10. *Disclaimer: This is our option and does constitute a recommendation or financial advice. Do your own research. *

Price
8
Condition
4
Location
6
Land
7
Bedrooms
3
Bathrooms
1
Sqft (est)
671.67

The heatmap indicates the level of crime in the area. The color of the heatmap indicates the crime severity and recency.

Metrics Year-on-Year

Average area value
152,142.00 £
Increased by 6.30 %
from 143,128.00 £
Est sale value
165,230.82 £
Increased by 43.02 %
from 115,527.24 £
Average area rental value
1,060.00 £/mo
Increased by 14.47 %
from 926.00 £/mo
Est letting value
671.67 £/mo
Unchanged by 0.00 %
from 671.67 £/mo
Est rental Yield
8.36 %
Increased by 7.73 %
from 7.76 %
Crime Rate
0.00 %
from 0.00 %

Agent Activity

  • Pacitti Jones created the listing.

Images

2025080913562815.jpg 202508091356283.jpg 202508091356284.jpg 202508091356286.jpg 202508091356287.jpg 202508091356288.jpg 202508091356289.jpg 2025080913562810.jpg 2025080913562811.jpg 2025080913562813.jpg 2025080913515010.jpg 202508091351508.jpg 202508091351509.jpg 202508091356280.jpg 202508091356281.jpg 202508091351501.jpg 202508091351503.jpg

Nearby Streets

NameAverage PriceAverage SqftDistance
Greyfriars Street £ 122,99500.00 KM
Corran Street £ 000.00 KM
Sumburgh Street £ 000.00 KM
Inveresk Quadrant £ 97,50000.00 KM
Malin Place £ 000.00 KM

Nearby Transport

NameNLCTLCDistance
Carntyne9897CAY0.79 KM
Shettleston9903SLS1.68 KM
Robroyston7780RRN3.08 KM
Carmyle9769CML3.34 KM
Alexandra Parade9905AXP4.10 KM

Nearby Listings

AddressPriceTypeScoreDistance
118 Whitburn Street, Carntyne, Glasgow, G32 £ 89,995BUY6 / 100.00 KM
Haymarket Street, Carntyne, Glasgow £ 140,000BUY7 / 100.12 KM
Greyfriars Street, Carntyne, Glasgow £ 122,995BUY6 / 100.18 KM
77 Whitburn Street, Carntyne , Glasgow, G32 £ 109,995BUY7 / 100.22 KM
Carntyne Road, Carntyne, Glasgow £ 125,000BUY7 / 100.24 KM