MU
Willow Park, Pontefract
By Murphy Property Agents Ltd
£ 100,000
Reviews
3 out of 5 stars
Murphy Property Agents Ltd says ..
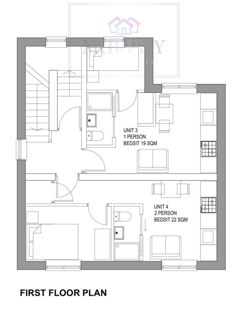
Building Land For Sale Willow Park, Pontefract Planning permission for erection of 1 block of self contained apartments with parking and communal grounds. Unit 1 - 1 Bedroom 2 Person Unit 2 - 1 Bedroom 2 Person Unit 3 - Bedsit for 1 Person Unit 4 -1 Bedroom 2 Person Unit 5 - 2 Bedroom 3 Pe...
Property Oracle says ..
Therefore, we give this property 7 / 10. *Disclaimer: This is our option and does constitute a recommendation or financial advice. Do your own research. *
- Price
- 9
- Condition
- 7
- Location
- 7
- Land
- 8
- Bedrooms
- 6
- Bathrooms
- 5
- Sqft (est)
- 495.14
The heatmap indicates the level of crime in the area. The color of the heatmap indicates the crime severity and recency.
Metrics Year-on-Year
- Average area value
- 420,000.00 £Decreased by 24.04 %
- Est sale value
- 433,742.64 £Increased by 140.00 %
- Average area rental value
- 1,475.00 £/moDecreased by 37.68 %
- Est letting value
- 1,485.42 £/moIncreased by 200.00 %
- Est rental Yield
- 4.21 %Decreased by 18.09 %
- Crime Rate
- 6.00 %Unchanged by 0.00 %
from 552,933.00 £
from 180,726.10 £
from 2,367.00 £/mo
from 495.14 £/mo
from 5.14 %
from 6.00 %
Agent Activity
Murphy Property Agents Ltd created the listing.
Nearby Schools
| Name | Type | Ofsted | Distance |
|---|---|---|---|
| Harewood Centre Nursery School | Local Authority Nursery School | Good | 0.15 KM |
| De Lacy Primary School | Academy Sponsor Led | Requires improvement | 0.51 KM |
| Cherry Tree Academy | Academy Sponsor Led | Requires improvement | 0.71 KM |
| Pomfret Children'S Centre | Children's Centre | 0.76 KM | |
| Holy Family And St Michael'S Catholic Primary School, A Voluntary Academy | Academy Converter | Good | 0.81 KM |
Images
Nearby Streets
| Name | Average Price | Average Sqft | Distance |
|---|---|---|---|
| King's Crescent | £ 0 | 0 | 0.00 KM |
| The Circle | £ 0 | 0 | 0.00 KM |
| Pontefract Road | £ 424,333 | 0 | 0.00 KM |
| The Close | £ 150,000 | 0 | 0.00 KM |
| Weavers Road | £ 145,000 | 0 | 0.00 KM |
Nearby Transport
| Name | NLC | TLC | Distance |
|---|---|---|---|
| Pontefract Baghill | 8540 | PFR | 0.76 KM |
| Pontefract Monkhill | 8548 | PFM | 1.13 KM |
| Pontefract Tanshelf | 8541 | POT | 2.50 KM |
| Knottingley | 8546 | KNO | 4.43 KM |
| Glasshoughton | 8360 | GLH | 5.39 KM |
Nearby Listings
| Address | Price | Type | Score | Distance |
|---|---|---|---|---|
| Willow Park, Pontefract | £ 100,000 | BUY | 7 / 10 | 0.00 KM |
| Baghill Lane, PONTEFRACT | £ 225,000 | BUY | 7 / 10 | 0.11 KM |
| Baghill Lane, Pontefract | £ 230,000 | BUY | 7 / 10 | 0.12 KM |
| Former Caretakers House, 66 Harewood Avenue, Pontefract, West Yorkshire, WF8 2ES | £ 75,000 | BUY | 6 / 10 | 0.15 KM |
| Fieldhead Close, Pontefract | £ 190,000 | BUY | Unknown | 0.18 KM |
Nearby Properties
| Address | Price | Distance |
|---|---|---|
| 68 Baghill Lane | £ 95,000 | 0.11 KM |
| 161 Willow Park | £ 83,500 | 0.11 KM |
| 174 Willow Park | £ 105,000 | 0.12 KM |
| 13 Willow Park | £ 126,000 | 0.12 KM |
| 159 Willow Park | £ 89,500 | 0.12 KM |