Meadow Way, Hellesdon, Norwich, Norfolk, NR6
By Winkworth
£ 210,000
Reviews
3 out of 5 stars
Winkworth says ..
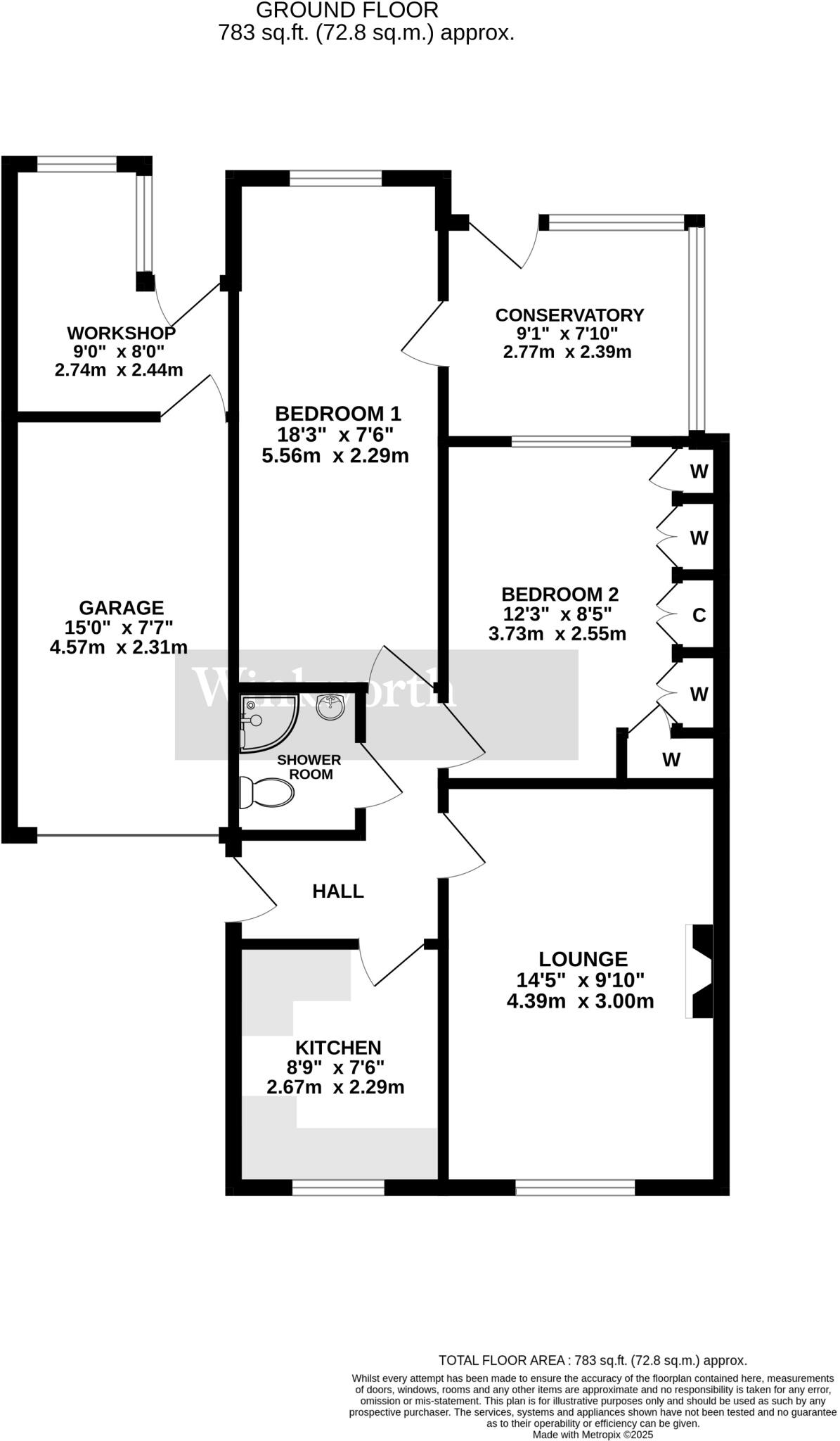
Situated in the heart of Hellesdon and offered with No Onward Chain is this two-bedroom semi-detached bungalow with convenient access to a host of local amenities, schools for all ages and fantastic transport links into Norwich city. In need of some modernisation but with a realistic asking price...
Property Oracle says ..
This is a two-bedroom bungalow in Hellesdon, Norwich. The property benefits from a garden, garage and driveway. The property is located close to local schools and amenities. The property is in need of some modernisation, but offers good potential for improvement.
Therefore, we give this property 6 / 10. *Disclaimer: This is our option and does constitute a recommendation or financial advice. Do your own research. *
- Price
- 7
- Condition
- 5
- Location
- 7
- Land
- 7
- Bedrooms
- 2
- Bathrooms
- 1
The heatmap indicates the level of crime in the area. The color of the heatmap indicates the crime severity and recency.
Metrics Year-on-Year
- Average area value
- 357,500.00 £Increased by 17.20 %
- Average area rental value
- 1,250.00 £/moIncreased by 11.11 %
- Est rental Yield
- 4.20 %Decreased by 5.19 %
- Crime Rate
- 4.00 %Unchanged by 0.00 %
Agent Activity
Winkworth created the listing.
Nearby Schools
| Name | Type | Ofsted | Distance |
|---|---|---|---|
| Firside Junior School | Academy Converter | Good | 0.19 KM |
| Heather Avenue Infant School | Academy Converter | 0.73 KM | |
| Kinsale Infant School | Community School | Good | 1.40 KM |
| Kinsale Junior School | Academy Converter | 1.40 KM | |
| Arden Grove Infant And Nursery School | Academy Converter | Outstanding | 1.62 KM |
Images
Nearby Streets
| Name | Average Price | Average Sqft | Distance |
|---|---|---|---|
| Holt Road | £ 0 | 0 | 0.00 KM |
| Heath Close | £ 325,000 | 0 | 0.00 KM |
| Shrub Lane | £ 290,000 | 0 | 0.00 KM |
| Elder Close | £ 0 | 0 | 0.00 KM |
| Oak Tree Lane | £ 0 | 0 | 0.00 KM |
Nearby Transport
| Name | NLC | TLC | Distance |
|---|---|---|---|
| Norwich | 7309 | NRW | 5.89 KM |
Nearby Listings
| Address | Price | Type | Score | Distance |
|---|---|---|---|---|
| Meadow Way, Hellesdon, Norwich, Norfolk, NR6 | £ 210,000 | BUY | 6 / 10 | 0.00 KM |
| Meadow Way, Hellesdon | £ 200,000 | BUY | 5 / 10 | 0.01 KM |
| Hellesdon, NR6 | £ 75,000 | BUY | 6 / 10 | 0.04 KM |
| Meadow Way, Hellesdon, Norwich, Norfolk, NR6 | £ 250,000 | BUY | Unknown | 0.04 KM |
| 138 Meadow Way, Norwich, Norfolk NR6 6XU | £ 50,000 | BUY | 5 / 10 | 0.08 KM |
Nearby Properties
| Address | Price | Distance |
|---|---|---|
| 134 Meadow Way | £ 62,000 | 0.07 KM |
| 138 Meadow Way | £ 53,000 | 0.07 KM |
| 144 Meadow Way | £ 67,500 | 0.07 KM |
| 141 Meadow Way | £ 210,000 | 0.07 KM |
| 119 Meadow Way | £ 144,624 | 0.12 KM |