Rampton Baseley says ..
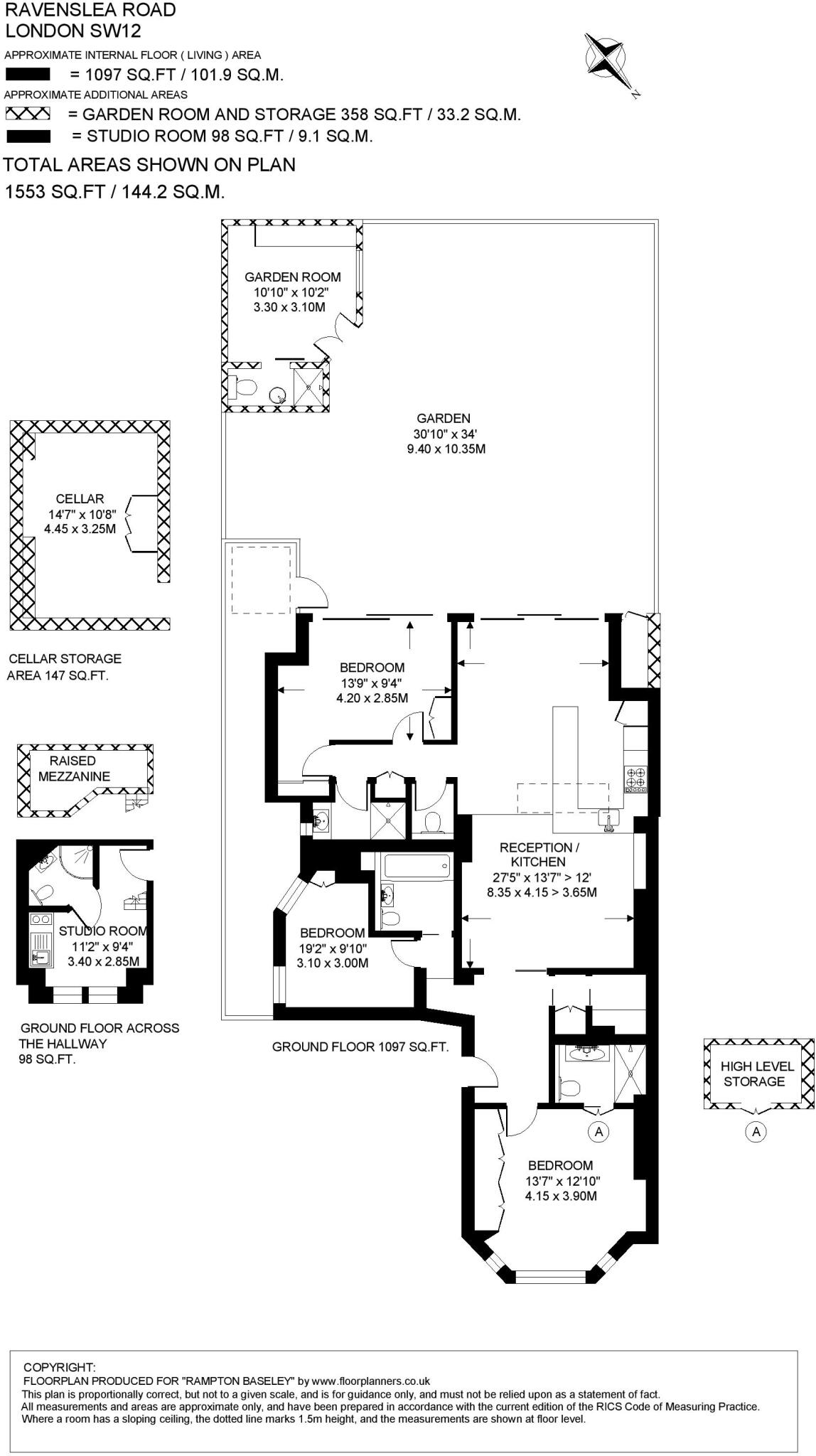
This striking, three-bedroom garden flat is arranged over the ground floor of a handsome, double-fronted Victorian property on this sought-after road just off Wandsworth Common. Light-filled and with excellent proportions throughout, this unique property offers 1,097 sq ft of living space and inc...
Property Oracle says ..
This is a well-presented three-bedroom apartment on Ravenslea Road in Nightingale, Wandsworth. The property benefits from a modern interior, a garden, and proximity to Wandsworth Common station. While the asking price is relatively high, it appears reasonable when considering the size and location of the property.
Therefore, we give this property 7 / 10. *Disclaimer: This is our option and does constitute a recommendation or financial advice. Do your own research. *
- Price
- 6
- Condition
- 8
- Location
- 8
- Land
- 7
- Bedrooms
- 3
- Bathrooms
- 3
- Sqft (est)
- 1,553.00
The heatmap indicates the level of crime in the area. The color of the heatmap indicates the crime severity and recency.
Metrics Year-on-Year
- Average area value
- 1,130,667.00 £Increased by 13.32 %
- Est sale value
- 2,054,619.00 £Increased by 91.74 %
- Average area rental value
- 2,767.00 £/moIncreased by 5.85 %
- Est letting value
- 4,659.00 £/moIncreased by 200.00 %
- Est rental Yield
- 2.94 %Decreased by 6.37 %
- Crime Rate
- 3.00 %Unchanged by 0.00 %
Agent Activity
Rampton Baseley created the listing.
Nearby Schools
| Name | Type | Ofsted | Distance |
|---|---|---|---|
| Oak Lodge School | Community Special School | Good | 0.49 KM |
| Broomwood Hall School | Other Independent School | 0.54 KM | |
| Northcote Lodge School | Other Independent School | 0.57 KM | |
| Holy Ghost Catholic Primary School | Voluntary Aided School | Outstanding | 0.61 KM |
| Hornsby House School | Other Independent School | 0.75 KM |
Images
Nearby Streets
| Name | Average Price | Average Sqft | Distance |
|---|---|---|---|
| Jaggard Way | £ 575,000 | 0 | 0.00 KM |
| Balham Park Road | £ 0 | 0 | 0.00 KM |
| Nottingham Road | £ 1,380,000 | 0 | 0.00 KM |
| Stonell's Road | £ 0 | 0 | 0.00 KM |
| Norgrove Street | £ 0 | 0 | 0.00 KM |
Nearby Transport
| Name | NLC | TLC | Distance |
|---|---|---|---|
| Wandsworth Common | 5395 | WSW | 0.16 KM |
| Balham | 5399 | BAL | 1.24 KM |
| Clapham Junction | 5595 | CLJ | 2.04 KM |
| Earlsfield | 5584 | EAD | 2.82 KM |
| Tooting | 5389 | TOO | 3.08 KM |
Nearby Listings
| Address | Price | Type | Score | Distance |
|---|---|---|---|---|
| Ravenslea Road, SW12 | £ 1,250,000 | BUY | 7 / 10 | 0.00 KM |
| Ravenslea Road, SW12 | £ 875,000 | BUY | Unknown | 0.05 KM |
| Wexford Road, Balham, London, SW12 | £ 800,000 | BUY | 5 / 10 | 0.05 KM |
| Flat C, 151 Nightingale Lane, London, SW12 8NQ | £ 342,000 | BUY | 4 / 10 | 0.10 KM |
| Mayford Close, London, SW12 | £ 595,000 | BUY | Unknown | 0.10 KM |
Nearby Properties
| Address | Price | Distance |
|---|---|---|
| 13 Ravenslea Road | £ 3,500,000 | 0.02 KM |
| 15 Ravenslea Road | £ 3,400,000 | 0.02 KM |
| 11 Ravenslea Road | £ 2,550,000 | 0.02 KM |
| Durlston | £ 980,000 | 0.04 KM |
| 4 Ravenslea Road | £ 2,149,000 | 0.04 KM |