ED
Claremont Road, Eccleshall, ST21
By Edge Goodrich
£ 315,000
Reviews
3 out of 5 stars
Edge Goodrich says ..
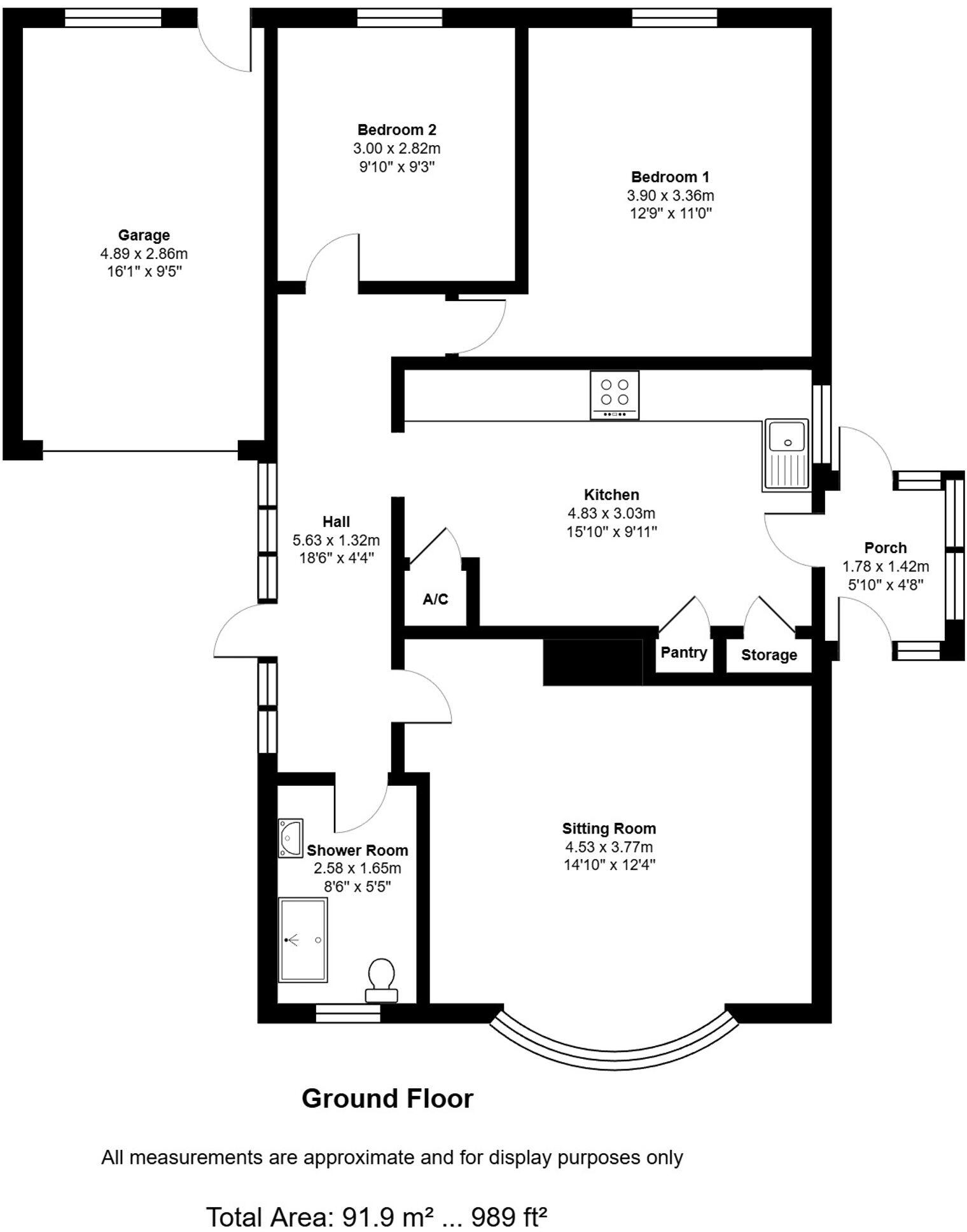
A well presented two bedroom detached bungalow in a popular residential location.
Property Oracle says ..
This is a two-bedroom detached bungalow on Claremont Road, Eccleshall. The property includes a garage, front and rear gardens. While the property is in reasonable condition, it would benefit from modernisation. The property is located in a desirable area, close to local amenities and schools.
Therefore, we give this property 6 / 10. *Disclaimer: This is our option and does constitute a recommendation or financial advice. Do your own research. *
- Price
- 7
- Condition
- 5
- Location
- 7
- Land
- 7
- Bedrooms
- 2
- Bathrooms
- 1
- Sqft (est)
- 989.20
The heatmap indicates the level of crime in the area. The color of the heatmap indicates the crime severity and recency.
Metrics Year-on-Year
- Average area value
- 513,125.00 £Decreased by 4.11 %
- Est sale value
- 248,289.20 £Decreased by 28.29 %
- Average area rental value
- 1,995.00 £/moIncreased by 118.99 %
- Est letting value
- 0.00 £/mo
- Est rental Yield
- 4.67 %Increased by 128.92 %
- Crime Rate
- 31.00 %Unchanged by 0.00 %
from 535,134.00 £
from 346,220.00 £
from 911.00 £/mo
from 0.00 £/mo
from 2.04 %
from 31.00 %
Agent Activity
Edge Goodrich created the listing.
Nearby Schools
| Name | Type | Ofsted | Distance |
|---|---|---|---|
| Bishop Lonsdale Church Of England Primary Academy | Academy Converter | Good | 1.07 KM |
| Walton Hall Academy | Academy Special Sponsor Led | Good | 2.76 KM |
| All Saints Cofe (Vc) Primary School | Voluntary Controlled School | Requires improvement | 5.41 KM |
| Woodseaves Ce Primary Academy | Academy Converter | Requires improvement | 6.20 KM |
| All Saints Cofe (C) First School | Voluntary Controlled School | Good | 6.61 KM |
Images
Nearby Streets
| Name | Average Price | Average Sqft | Distance |
|---|---|---|---|
| Byanna Grange | £ 0 | 0 | 0.00 KM |
| Blurtons Lane | £ 0 | 0 | 0.00 KM |
Nearby Listings
| Address | Price | Type | Score | Distance |
|---|---|---|---|---|
| Claremont Road, Eccleshall, ST21 | £ 315,000 | BUY | 6 / 10 | 0.00 KM |
| Linacre Road, Eccleshall, ST21 | £ 260,000 | BUY | Unknown | 0.05 KM |
| Linacre Road, Eccleshall | £ 320,000 | BUY | 7 / 10 | 0.15 KM |
| The Orchards, Eccleshall, ST21 | £ 385,000 | BUY | Unknown | 0.17 KM |
| Claremont Gardens, Eccleshall, ST21 | £ 635,000 | BUY | Unknown | 0.18 KM |
Nearby Properties
| Address | Price | Distance |
|---|---|---|
| 38 Claremont Road | £ 65,000 | 0.01 KM |
| 15 Claremont Road | £ 249,950 | 0.01 KM |
| 5 Claremont Road | £ 163,000 | 0.04 KM |
| 23 Claremont Road | £ 119,000 | 0.04 KM |
| 4 Claremont Road | £ 210,000 | 0.04 KM |