Nash Green, Staplegrove, Taunton, TA2
By Greenslade Taylor Hunt
£ 400,000
Reviews
3 out of 5 stars
Greenslade Taylor Hunt says ..
A spacious and well-presented four bedroom detached family home situated in a sought after location on the outskirts of Taunton Town. No onward chain.
Property Oracle says ..
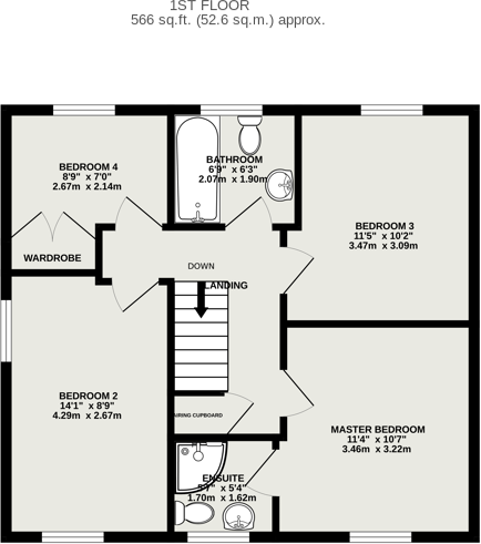
This is a detached property in Staplegrove, Taunton, featuring 4 bedrooms and 2 bathrooms. The house appears to be in good condition, with a modern kitchen and bathrooms. It benefits from off-street parking and a garden with a patio area. The property is situated in a residential area with convenient access to local schools and transportation links, making it suitable for families and commuters alike. The inclusion of a gym is a bonus. The price is slightly above the average for the area, but reflects the property’s features and condition.
Therefore, we give this property 7 / 10. *Disclaimer: This is our option and does constitute a recommendation or financial advice. Do your own research. *
- Price
- 7
- Condition
- 8
- Location
- 7
- Land
- 6
- Bedrooms
- 4
- Bathrooms
- 2
The heatmap indicates the level of crime in the area. The color of the heatmap indicates the crime severity and recency.
Metrics Year-on-Year
- Average area value
- 327,500.00 £Increased by 8.22 %
- Average area rental value
- 1,050.00 £/moDecreased by 18.98 %
- Est rental Yield
- 3.85 %Decreased by 25.10 %
- Crime Rate
- 7.00 %Unchanged by 0.00 %
Agent Activity
Greenslade Taylor Hunt created the listing.
Nearby Schools
| Name | Type | Ofsted | Distance |
|---|---|---|---|
| Staplegrove Church School | Academy Converter | Good | 0.45 KM |
| Taunton West | Children's Centre | 1.29 KM | |
| Bishops Hull Primary School | Community School | Good | 1.67 KM |
| Taunton Preparatory School | Other Independent School | 1.70 KM | |
| Taunton School | Other Independent School | 1.70 KM |
Images
Nearby Streets
| Name | Average Price | Average Sqft | Distance |
|---|---|---|---|
| Drake Close | £ 170,000 | 0 | 0.00 KM |
| Rectory Close | £ 0 | 0 | 0.00 KM |
| Mill Lane | £ 600,000 | 0 | 0.00 KM |
| Great Western Way Roundabout | £ 550,000 | 0 | 0.00 KM |
| Roughmoor Lane | £ 0 | 0 | 0.00 KM |
Nearby Transport
| Name | NLC | TLC | Distance |
|---|---|---|---|
| Taunton | 3471 | TAU | 3.12 KM |
Nearby Listings
| Address | Price | Type | Score | Distance |
|---|---|---|---|---|
| Nash Green, Staplegrove, Taunton, TA2 | £ 400,000 | BUY | 7 / 10 | 0.00 KM |
| Staplegrove | £ 425,000 | BUY | 7 / 10 | 0.03 KM |
| Staplegrove, Taunton | £ 475,000 | BUY | 7 / 10 | 0.03 KM |
| Nash Green | £ 325,000 | BUY | 7 / 10 | 0.12 KM |
| Showell Park, Staplegrove, Taunton, Somerset | £ 175,000 | BUY | Unknown | 0.12 KM |
Nearby Properties
| Address | Price | Distance |
|---|---|---|
| 5 Nash Green | £ 292,500 | 0.04 KM |
| 7 Nash Green | £ 241,000 | 0.04 KM |
| 20 Nash Green | £ 450,000 | 0.04 KM |
| 10 Nash Green | £ 297,000 | 0.04 KM |
| 26 Nash Green | £ 235,000 | 0.04 KM |