MILES BYRON says ..
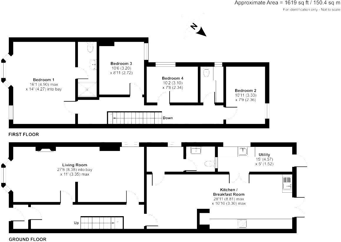
IN EXCESS OF C. 1600 SQ FT / 150 SQ METERS OF LIVING SPACE *** SHOW HOME CONDITION & PRESENTATION *** A MUST VIEW & EXTENDED FAMILY HOME BOASTING: OFF STREET PARKING TO THE REAR, A SOUTH FACING REAR GARDEN *** 4 BEDROOMS WITH AN EN-SUITE SHOWER ROOM TO THE MAIN BEDROOM ***
Property Oracle says ..
This is a four-bedroom semi-detached house located on Kent Road, Eastcott, Swindon. The property benefits from three bathrooms, a modern kitchen, and a garden with a gazebo and hot tub. The property is located in a desirable residential area, close to schools and transportation links. The property appears to be in good condition and has been recently updated. The asking price of £395,000 seems reasonable given the property’s size, location, and condition. The property is conveniently located near local amenities and transport links, making it an attractive option for families and commuters. The modern interior and well-maintained garden further enhance its appeal.
Therefore, we give this property 7 / 10. *Disclaimer: This is our option and does constitute a recommendation or financial advice. Do your own research. *
- Price
- 7
- Condition
- 8
- Location
- 7
- Land
- 6
- Bedrooms
- 4
- Bathrooms
- 3
- Sqft (est)
- 1,166.00
The heatmap indicates the level of crime in the area. The color of the heatmap indicates the crime severity and recency.
Metrics Year-on-Year
- Average area value
- 238,636.00 £Increased by 2.11 %
- Est sale value
- 362,626.00 £Increased by 16.04 %
- Average area rental value
- 982.00 £/moDecreased by 1.70 %
- Est letting value
- 1,166.00 £/moUnchanged by 0.00 %
- Est rental Yield
- 4.94 %Decreased by 3.70 %
- Crime Rate
- 0.00 %
Agent Activity
MILES BYRON created the listing.
Nearby Schools
| Name | Type | Ofsted | Distance |
|---|---|---|---|
| The Commonweal School | Academy Converter | Good | 0.72 KM |
| King William Street Church Of England Primary School | Academy Converter | Good | 0.89 KM |
| Utc Swindon | University Technical College | Requires improvement | 0.95 KM |
| Robert Le Kyng Primary School | Community School | Good | 1.03 KM |
| Holy Rood Catholic Primary School | Academy Converter | Requires improvement | 1.05 KM |
Images
Nearby Streets
| Name | Average Price | Average Sqft | Distance |
|---|---|---|---|
| Blackberry Alley | £ 240,000 | 0 | 0.00 KM |
| Okus Road | £ 385,000 | 0 | 0.00 KM |
| Market Street | £ 0 | 0 | 0.00 KM |
| Chester Street | £ 240,000 | 0 | 0.00 KM |
| Havelock Square | £ 0 | 0 | 0.00 KM |
Nearby Transport
| Name | NLC | TLC | Distance |
|---|---|---|---|
| Swindon (Wilts) | 3333 | SWI | 1.13 KM |
Nearby Listings
| Address | Price | Type | Score | Distance |
|---|---|---|---|---|
| Kent Road, Old Town, Swindon | £ 395,000 | BUY | 7 / 10 | 0.00 KM |
| Kent Road, Old Town, Swindon | £ 310,000 | BUY | 7 / 10 | 0.05 KM |
| Stafford Street, Old Town, Swindon, SN1 | £ 450,000 | BUY | 6 / 10 | 0.06 KM |
| Stafford Street, Old Town, Swindon, SN1 | £ 250,000 | BUY | 6 / 10 | 0.06 KM |
| Ashford Road, Old Town, Swindon, SN1 | £ 425,000 | BUY | 5 / 10 | 0.06 KM |
Nearby Properties
| Address | Price | Distance |
|---|---|---|
| 55 Stafford Street | £ 168,000 | 0.07 KM |
| 57 Stafford Street | £ 128,000 | 0.07 KM |
| 53 Stafford Street | £ 181,000 | 0.07 KM |
| 56 Stafford Street | £ 153,000 | 0.07 KM |
| 41 Stafford Street | £ 180,000 | 0.07 KM |