Pearsons says ..
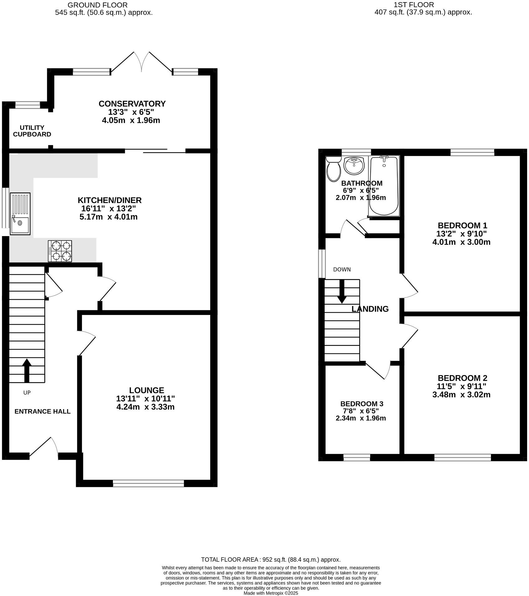
An attractive and well-presented 1930's semi-detached house situated in a popular non-estate setting. The living accommodation includes; entrance hall, fitted kitchen/diner, conservatory with utility cupboard, three bedrooms and family bathroom. In addition, the property has gas fire central heat...
Property Oracle says ..
This property is a 3-bedroom semi-detached house located in Fareham, Hampshire. The location benefits from being within a reasonable distance of local schools, including Orchard Lea Infant and Junior Schools (both rated ‘Good’ by Ofsted) and St Jude’s Catholic Primary School (also rated ‘Good’). Fareham train station is approximately 1.34km away, providing convenient access to other areas. The property itself is in good condition, appearing well-maintained and clean from the photos. It includes a garden with a patio area and a conservatory, offering additional living space. The plot size is 952 sqft. While the average price per sqft in the area is £394, this property is listed at a price that seems reasonable considering its condition and location. However, it is smaller than the average house size in the area (772 sqft vs 2168 sqft).
Therefore, we give this property 7 / 10. *Disclaimer: This is our option and does constitute a recommendation or financial advice. Do your own research. *
- Price
- 7
- Condition
- 8
- Location
- 8
- Land
- 7
- Bedrooms
- 3
- Bathrooms
- 1
- Sqft (est)
- 772.00
- Lot (est)
- 952.00
The heatmap indicates the level of crime in the area. The color of the heatmap indicates the crime severity and recency.
Metrics Year-on-Year
- Average area value
- 323,750.00 £Increased by 2.59 %
- Est sale value
- 260,936.00 £Increased by 9.03 %
- Average area rental value
- 1,309.00 £/moIncreased by 25.26 %
- Est letting value
- 772.00 £/moUnchanged by 0.00 %
- Est rental Yield
- 4.85 %Increased by 22.17 %
- Crime Rate
- 5.00 %Unchanged by 0.00 %
Agent Activity
Pearsons created the listing.
Nearby Schools
| Name | Type | Ofsted | Distance |
|---|---|---|---|
| Orchard Lea Infant School | Community School | Good | 0.60 KM |
| Orchard Lea Junior School | Community School | Good | 0.69 KM |
| St Jude'S Catholic Primary School | Voluntary Aided School | Good | 0.85 KM |
| Fareham College | Further Education | Outstanding | 0.95 KM |
| Wallisdean Infant School | Community School | Outstanding | 1.14 KM |
Images
Nearby Streets
| Name | Average Price | Average Sqft | Distance |
|---|---|---|---|
| Craven Court | £ 315,000 | 0 | 0.00 KM |
| Braemar Close | £ 0 | 0 | 0.00 KM |
| Coppice Way | £ 440,000 | 0 | 0.00 KM |
| Hillary Close | £ 355,000 | 0 | 0.00 KM |
| Gold Close | £ 0 | 0 | 0.00 KM |
Nearby Transport
| Name | NLC | TLC | Distance |
|---|---|---|---|
| Fareham | 5900 | FRM | 1.34 KM |
| Swanwick | 5920 | SNW | 7.24 KM |
| Portchester | 5928 | PTC | 8.74 KM |
| Botley | 5894 | BOE | 8.95 KM |
Nearby Listings
| Address | Price | Type | Score | Distance |
|---|---|---|---|---|
| GUDGE HEATH LANE, FAREHAM | £ 360,000 | BUY | 7 / 10 | 0.00 KM |
| GUDGE HEATH LANE, FAREHAM | £ 365,000 | BUY | 7 / 10 | 0.04 KM |
| GIFFORD CLOSE, FAREHAM | £ 550,000 | BUY | 7 / 10 | 0.17 KM |
| Angus Close, Fareham, Hampshire, PO15 | £ 300,000 | BUY | 7 / 10 | 0.19 KM |
| DUNDEE CLOSE, FAREHAM | £ 375,000 | BUY | 7 / 10 | 0.19 KM |
Nearby Properties
| Address | Price | Distance |
|---|---|---|
| 167 Gudge Heath Lane | £ 267,932 | 0.00 KM |
| 169 Gudge Heath Lane | £ 243,000 | 0.00 KM |
| 171 Gudge Heath Lane | £ 275,000 | 0.00 KM |
| 161 Gudge Heath Lane | £ 230,000 | 0.00 KM |
| 157 Gudge Heath Lane | £ 370,000 | 0.00 KM |