Woodland Avenue, Eastbourne
By Emslie & Tarrant
£ 615,000
Reviews
3 out of 5 stars
Emslie & Tarrant says ..
Occupying a much favoured position on the borders of West Hampden Park and Willingdon - An individual 3 bedroom detached chalet style residence set within lovely mature southerly level gardens with the benefit of an integral garage and further off-road parking.
Property Oracle says ..
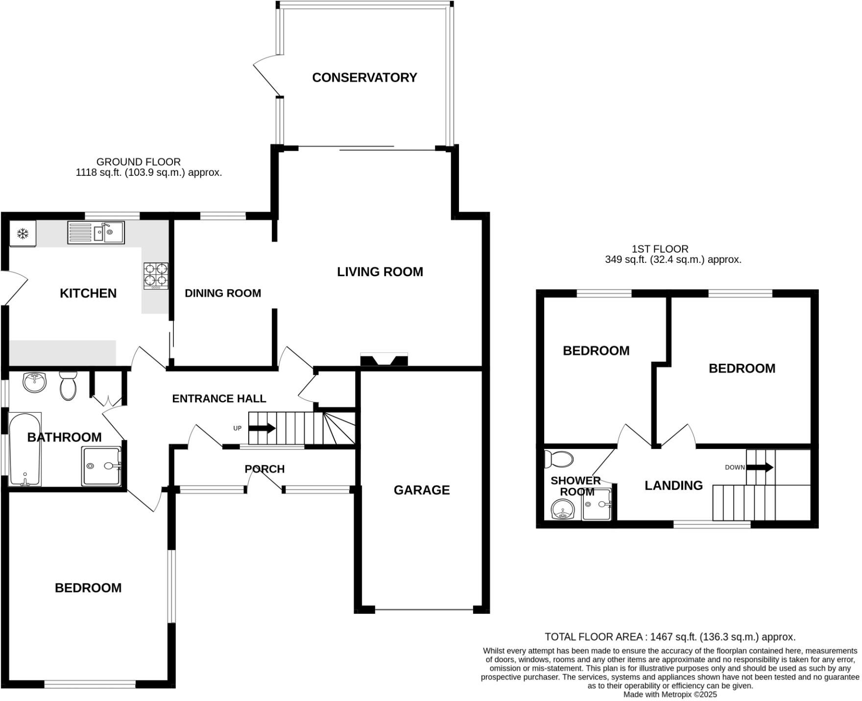
The property is a 3-bedroom, 2-bathroom house with a list price of £615,000. The property is situated in the Ratton area of Eastbourne, East Sussex. The images show the property to be a detached house with a garden and off-street parking. The house appears to be in good condition, although some of the interior decor may be considered dated. The kitchen and bathrooms appear to be functional but could benefit from some modernization. The proximity to Ratton School (rated Good by Ofsted) is a positive aspect for families. Additional nearby schools include The Lindfield School (rated Outstanding) and Parkland Junior School (rated Good). The relatively close proximity to several train stations, including Hampden Park, Polegate, and Eastbourne, offers convenient access to public transportation. The list price of £615,000 seems to fall within the higher end of the range for the area, considering that similar properties on Woodland Avenue have sold for considerably less. However, the superior condition and the presence of a garden might justify a higher price point. More precise comparative data on similar properties in the immediate vicinity would be needed for a more definitive assessment of the price.
Therefore, we give this property 7 / 10. *Disclaimer: This is our option and does constitute a recommendation or financial advice. Do your own research. *
- Price
- 6
- Condition
- 7
- Location
- 8
- Land
- 8
- Bedrooms
- 3
- Bathrooms
- 2
- Sqft (est)
- 1,467.00
- Lot (est)
- 1,467.00
The heatmap indicates the level of crime in the area. The color of the heatmap indicates the crime severity and recency.
Metrics Year-on-Year
- Average area value
- 590,421.00 £Increased by 34.04 %
- Est sale value
- 751,104.00 £Increased by 31.96 %
- Average area rental value
- 1,427.00 £/moDecreased by 43.31 %
- Est letting value
- 1,467.00 £/moDecreased by 50.00 %
- Est rental Yield
- 2.90 %Decreased by 57.73 %
- Crime Rate
- 0.00 %
Agent Activity
Emslie & Tarrant created the listing.
Nearby Schools
| Name | Type | Ofsted | Distance |
|---|---|---|---|
| Ratton School | Academy Converter | Good | 0.46 KM |
| Ocklynge Junior School | Academy Sponsor Led | 1.08 KM | |
| The Lindfield School | Academy Special Converter | Outstanding | 1.17 KM |
| Parkland Junior School | Academy Converter | Good | 1.27 KM |
| Parkland Infant School | Academy Converter | 1.27 KM |
Images
Nearby Streets
| Name | Average Price | Average Sqft | Distance |
|---|---|---|---|
| Shortlands Close | £ 650,000 | 0 | 0.00 KM |
| Exeter Close | £ 0 | 0 | 0.00 KM |
| The Broadway | £ 0 | 0 | 0.00 KM |
| The Croft | £ 0 | 0 | 0.00 KM |
| Gloucester Close | £ 0 | 0 | 0.00 KM |
Nearby Transport
| Name | NLC | TLC | Distance |
|---|---|---|---|
| Hampden Park (Sussex) | 5450 | HMD | 2.24 KM |
| Polegate | 5455 | PLG | 3.29 KM |
| Eastbourne | 5448 | EBN | 3.77 KM |
| Pevensey And Westham | 5461 | PEV | 7.62 KM |
| Pevensey Bay | 5462 | PEB | 9.59 KM |
Nearby Listings
| Address | Price | Type | Score | Distance |
|---|---|---|---|---|
| Woodland Avenue, Eastbourne | £ 615,000 | BUY | 7 / 10 | 0.00 KM |
| Kings Drive, Eastbourne, East Sussex, BN21 | £ 925,000 | BUY | 7 / 10 | 0.14 KM |
| 14 Woodland Avenue, Eastbourne. | £ 675,000 | BUY | 8 / 10 | 0.14 KM |
| Kings Drive, Eastbourne | £ 1,000,000 | BUY | 8 / 10 | 0.14 KM |
| Land, Kings Drive, Eastbourne | £ 1,175,000 | BUY | 7 / 10 | 0.14 KM |
Nearby Properties
| Address | Price | Distance |
|---|---|---|
| 6 Woodland Avenue | £ 391,500 | 0.00 KM |
| 3 Woodland Avenue | £ 310,000 | 0.00 KM |
| 8 Woodland Avenue | £ 269,000 | 0.00 KM |
| 2 Woodland Avenue | £ 625,000 | 0.00 KM |
| 14 Woodland Avenue | £ 312,000 | 0.12 KM |