Anstey Road, Reading, Berkshire, RG1
By Prospect Estate Agency
£ 325,000
Reviews
2 out of 5 stars
Prospect Estate Agency says ..
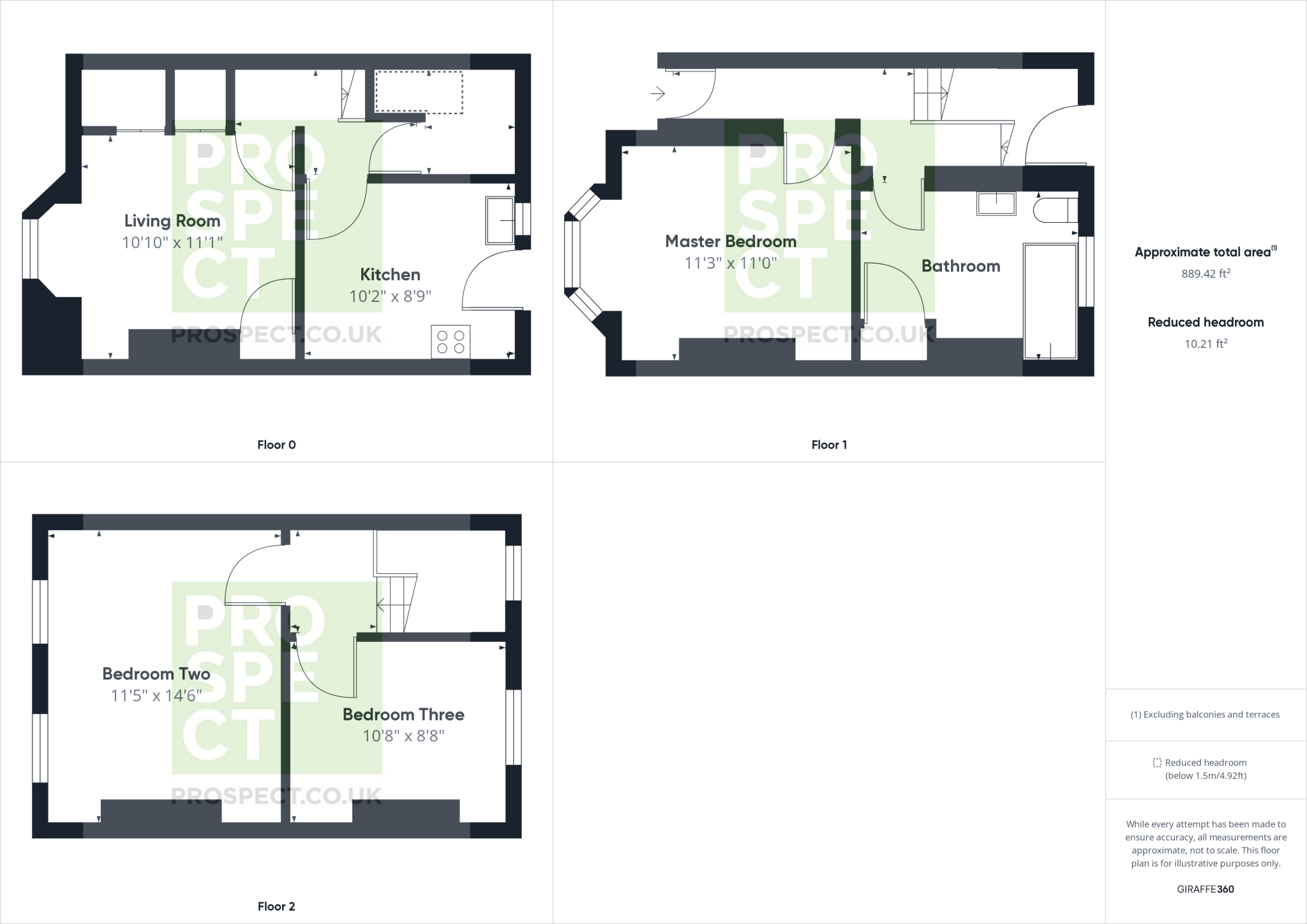
NO ONWARD CHAIN COMPLICATIONS Within easy reach of Reading town centre and the mainline railway station, this three storey Victorian terrace is in need of modernisation and could be perfect for someone looking to put their own stamp on a property. Ideal for investment buyers...
Property Oracle says ..
This three-bedroom terraced house in Reading’s Abbey area presents a mixed bag of opportunities and challenges. Its location is a definite plus point, with easy access to Reading town centre, the railway station, and well-regarded schools. This makes it appealing to families and commuters. However, the property is in need of considerable modernisation and renovation. The interior photographs reveal dated décor, worn carpets, and fixtures that suggest a need for significant investment. The lack of any garden or outdoor space is a notable drawback for many potential buyers.
The asking price of £325,000 needs to be considered alongside the necessary renovation costs. While the price might be seen as competitive compared to similar properties on Anstey Road, potential buyers must factor in a substantial budget to renovate and update the house. A professional survey is essential to assess any structural issues before purchasing. Ultimately, this property could become a desirable family home, but prospective buyers should be realistic about the required investment and the time commitment involved in its refurbishment.
Therefore, we give this property 4 / 10. *Disclaimer: This is our option and does constitute a recommendation or financial advice. Do your own research. *
- Price
- 7
- Condition
- 4
- Location
- 7
- Land
- 1
- Bedrooms
- 3
- Bathrooms
- 1
- Sqft (est)
- 889.42
The heatmap indicates the level of crime in the area. The color of the heatmap indicates the crime severity and recency.
Metrics Year-on-Year
- Average area value
- 350,323.00 £Decreased by 1.18 %
- Est sale value
- 383,340.02 £Increased by 20.73 %
- Average area rental value
- 1,334.00 £/moDecreased by 2.49 %
- Est letting value
- 889.42 £/moUnchanged by 0.00 %
- Est rental Yield
- 4.57 %Decreased by 1.30 %
- Crime Rate
- 6.00 %Unchanged by 0.00 %
Agent Activity
Prospect Estate Agency marked this listing as sold.
Prospect Estate Agency created the listing.
Nearby Schools
| Name | Type | Ofsted | Distance |
|---|---|---|---|
| Coley Primary School | Community School | Good | 0.35 KM |
| Civitas Academy | Academy Sponsor Led | Good | 0.57 KM |
| Katesgrove Primary School | Community School | Good | 0.84 KM |
| Oxford Road Community School | Community School | Good | 0.92 KM |
| All Saints Church Of England Aided Infant School | Voluntary Aided School | Good | 1.03 KM |
Images
Nearby Streets
| Name | Average Price | Average Sqft | Distance |
|---|---|---|---|
| Marshall Close | £ 0 | 0 | 0.00 KM |
| Jesse Terrace | £ 0 | 0 | 0.00 KM |
| Castle Street | £ 195,000 | 0 | 0.00 KM |
| Cheriton Court | £ 215,000 | 0 | 0.00 KM |
| Phoenix Place | £ 165,000 | 0 | 0.00 KM |
Nearby Transport
| Name | NLC | TLC | Distance |
|---|---|---|---|
| Reading | 3149 | RDG | 1.06 KM |
| Reading West | 3160 | RDW | 1.25 KM |
| Tilehurst | 3154 | TLH | 5.98 KM |
| Earley | 5694 | EAR | 6.89 KM |
| Winnersh Triangle | 5698 | WTI | 9.88 KM |
Nearby Listings
| Address | Price | Type | Score | Distance |
|---|---|---|---|---|
| Anstey Road, Reading, Berkshire, RG1 | £ 325,000 | BUY | 4 / 10 | 0.00 KM |
| Anstey Road, Reading, RG1 | £ 375,000 | BUY | 5 / 10 | 0.00 KM |
| Anstey Road, Reading, RG1 | £ 395,000 | BUY | 6 / 10 | 0.03 KM |
| Carey Street, Reading | £ 275,000 | BUY | 7 / 10 | 0.04 KM |
| Carey Street, Reading, Berkshire, RG1 | £ 190,000 | BUY | 7 / 10 | 0.05 KM |
Nearby Properties
| Address | Price | Distance |
|---|---|---|
| 40 Anstey Road | £ 235,000 | 0.02 KM |
| 30 Anstey Road | £ 230,000 | 0.02 KM |
| 22 Anstey Road | £ 59,500 | 0.02 KM |
| 2 Anstey Road | £ 397,500 | 0.02 KM |
| 1 Anstey Road | £ 325,000 | 0.02 KM |