Kirklees Rise, Farsley, Pudsey, West Yorkshire, LS28
HA

Kirklees Rise, Farsley, Pudsey, West Yorkshire, LS28

By Hardisty & co

£ 365,000

Reviews

3 out of 5 stars

Hardisty & co says ..

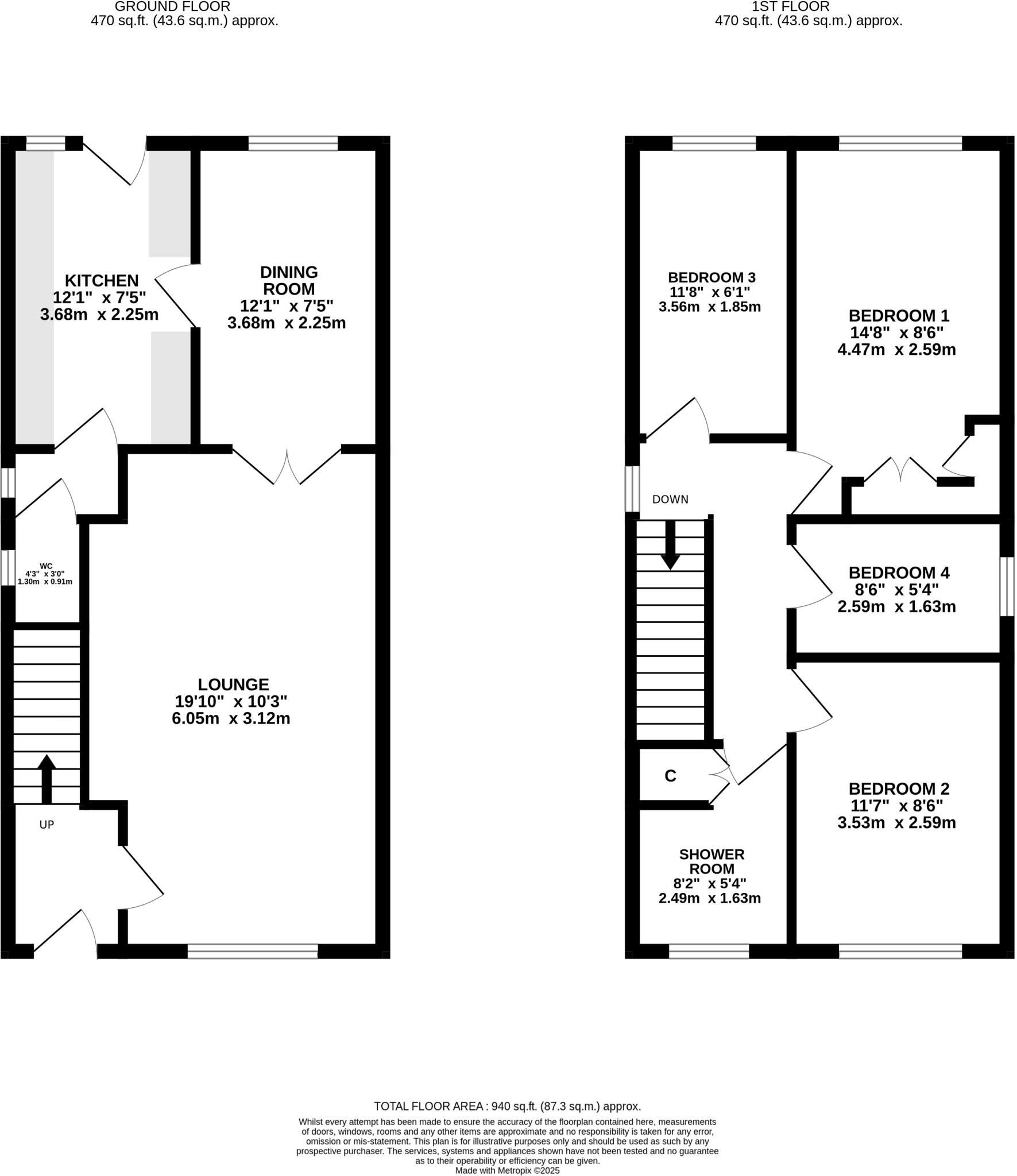
Set in a quiet cul-de-sac backing onto open countryside, this light-filled four-bedroom home blends comfort, space, and potential. With two generous reception rooms, a stylish modern shower room, and a versatile galley kitchen, it’s perfectly suited for family living and entertaining. Outsi...

Property Oracle says ..

This detached property in Farsley, Leeds, offers four bedrooms and two bathrooms, making it suitable for family living. While the property benefits from a good location with nearby schools and transport links, the interior is in need of modernization. The garden and garage are desirable features, adding to the property’s appeal. The price reflects the need for renovation, presenting an opportunity for buyers to add value.

Therefore, we give this property 6 / 10. *Disclaimer: This is our option and does constitute a recommendation or financial advice. Do your own research. *

Price
7
Condition
5
Location
7
Land
7
Bedrooms
4
Bathrooms
2
Sqft (est)
940.00

The heatmap indicates the level of crime in the area. The color of the heatmap indicates the crime severity and recency.

Metrics Year-on-Year

Average area value
245,948.00 £
Decreased by 19.85 %
from 306,845.00 £
Est sale value
331,820.00 £
Increased by 41.20 %
from 235,000.00 £
Average area rental value
915.00 £/mo
Decreased by 6.92 %
from 983.00 £/mo
Est letting value
940.00 £/mo
from 0.00 £/mo
Est rental Yield
4.46 %
Increased by 16.15 %
from 3.84 %
Crime Rate
2.00 %
Unchanged by 0.00 %
from 2.00 %

Agent Activity

  • Hardisty & co created the listing.

Nearby Schools

NameTypeOfstedDistance
Farsley Springbank Primary SchoolCommunity SchoolGood0.53 KM
Westroyd Primary School And NurseryCommunity SchoolGood0.95 KM
Valley View Community Primary SchoolCommunity SchoolGood1.32 KM
Farsley & Calverley Children'S CentreChildren's Centre1.47 KM
Farsley Farfield Primary SchoolCommunity SchoolGood1.58 KM

Images

Picture No. 35 Picture No. 46 Picture No. 36 Picture No. 34 Picture No. 33 Picture No. 32 Picture No. 29 Picture No. 28 Picture No. 24 Picture No. 22 Picture No. 20 Picture No. 02 Picture No. 19 Picture No. 17 Picture No. 13 Picture No. 15 Picture No. 11 Picture No. 10 Picture No. 09 Picture No. 07 Picture No. 08 Picture No. 06 Picture No. 04 Picture No. 12 Picture No. 38 Picture No. 39 Picture No. 42 Picture No. 43

Nearby Streets

NameAverage PriceAverage SqftDistance
Cherry Tree Crescent £ 300,00000.00 KM
Charles Street £ 000.00 KM
Wheatfield Close £ 475,00000.00 KM
Ebenezer Street £ 000.00 KM
Well Street £ 000.00 KM

Nearby Transport

NameNLCTLCDistance
New Pudsey8506NPD1.87 KM
Bramley (West Yorkshire)8496BLE3.89 KM
Apperley Bridge8562APY4.78 KM
Kirkstall Forge6544KLF5.31 KM
Horsforth8499HRS5.54 KM

Nearby Listings

AddressPriceTypeScoreDistance
Kirklees Rise, Farsley, Pudsey, West Yorkshire, LS28 £ 365,000BUY6 / 100.00 KM
Kirklees Garth, Farsley, Pudsey, West Yorkshire, LS28 £ 395,000BUYUnknown0.19 KM
Priesthorpe Road, Farsley, Pudsey, West Yorkshire, LS28 £ 265,000BUYUnknown0.20 KM
Priesthorpe Road, Farsley, , LS28 5JX £ 240,000BUY7 / 100.21 KM
Bryan Street, Farsley, LS28 £ 234,950BUY6 / 100.23 KM

Nearby Properties

AddressPriceDistance
3 Kirklees Rise £ 249,9950.06 KM
16 Calverley Lane £ 190,0000.14 KM
Green Farm £ 445,0000.14 KM
10 Calverley Lane £ 202,5000.14 KM
68 Kirklees Drive £ 239,9990.14 KM