Homesite says ..
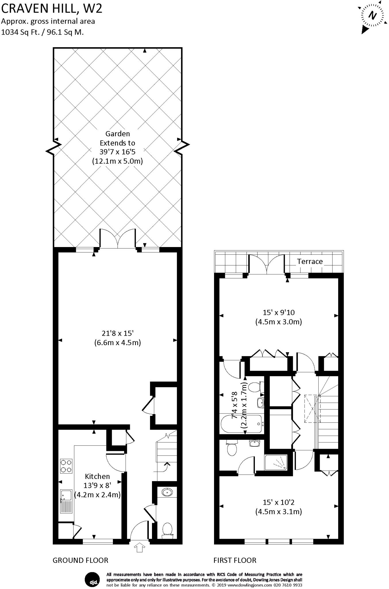
Charming two bedroom, two bathroom house (plus a guest w.c.) with off street parking, fantastic south facing garden and balcony! Located on this popular road in Bayswater the house also has spacious reception room with glass patio doors opening on to the garden, kitchen / breakfast room, gue...
Property Oracle says ..
This property is a 2 bedroom, 2 bathroom semi-detached house located in Craven Hill, Bayswater, W2. The property benefits from a private garden, which is a desirable feature in this area of London. The interior appears well-maintained and presented, although some aspects of the kitchen and bathroom could benefit from modernisation. The location is excellent, with good access to transport links and local amenities. The asking price is slightly higher than the average price per square foot for the area, but this is likely due to the desirable location and the inclusion of a private garden. The property is likely to appeal to a range of buyers, including families and professionals.
Therefore, we give this property 8 / 10. *Disclaimer: This is our option and does constitute a recommendation or financial advice. Do your own research. *
- Price
- 7
- Condition
- 8
- Location
- 9
- Land
- 8
- Bedrooms
- 2
- Bathrooms
- 2
- Sqft (est)
- 1,034.00
The heatmap indicates the level of crime in the area. The color of the heatmap indicates the crime severity and recency.
Metrics Year-on-Year
- Average area value
- 2,275,412.00 £Decreased by 6.74 %
- Est sale value
- 2,573,626.00 £Increased by 9.26 %
- Average area rental value
- 2,983.00 £/moIncreased by 5.00 %
- Est letting value
- 3,102.00 £/moIncreased by 50.00 %
- Est rental Yield
- 1.57 %Increased by 12.14 %
- Crime Rate
- 6.00 %Unchanged by 0.00 %
Agent Activity
Homesite created the listing.
Nearby Schools
| Name | Type | Ofsted | Distance |
|---|---|---|---|
| St James & St John Church Of England Primary School | Voluntary Aided School | Good | 0.17 KM |
| Hallfield Primary School | Community School | Good | 0.61 KM |
| Marylebone Boys' School | Free Schools | Good | 0.83 KM |
| Hospital Home And Education Units Co St Mary'S Hospitial Tuition Unit | Miscellaneous | 0.90 KM | |
| Kensington Park School | Other Independent School | 0.97 KM |
Images
Nearby Streets
| Name | Average Price | Average Sqft | Distance |
|---|---|---|---|
| Chilworth Street | £ 0 | 0 | 0.00 KM |
| Westbourne Terrace Mews | £ 0 | 0 | 0.00 KM |
| Cerney Mews | £ 2,441,667 | 0 | 0.00 KM |
| Westbourne Bridge | £ 0 | 0 | 0.00 KM |
| Bishop's Bridge | £ 0 | 0 | 0.00 KM |
Nearby Transport
| Name | NLC | TLC | Distance |
|---|---|---|---|
| Paddington | 3087 | PAD | 0.65 KM |
| Marylebone | 1475 | MYB | 2.29 KM |
| Kilburn High Road | 1415 | KBN | 3.00 KM |
| South Hampstead | 1451 | SOH | 3.20 KM |
| West Brompton | 8875 | WBP | 3.28 KM |
Nearby Listings
| Address | Price | Type | Score | Distance |
|---|---|---|---|---|
| Craven Hill, Notting Hill | £ 1,895,000 | BUY | 7 / 10 | 0.00 KM |
| Craven Hill, Hyde Park | £ 850,000 | BUY | 7 / 10 | 0.01 KM |
| Craven Hill Gardens, Bayswater, London, W2 | £ 825,000 | BUY | 6 / 10 | 0.02 KM |
| Lancaster Gate, London, W2 | £ 1,850,000 | BUY | 6 / 10 | 0.05 KM |
| Craven Hill Gardens, London, W2 | £ 750,000 | BUY | 7 / 10 | 0.05 KM |
Nearby Properties
| Address | Price | Distance |
|---|---|---|
| 9a Craven Hill | £ 1,375,000 | 0.01 KM |
| 23a Craven Hill | £ 13,000,000 | 0.03 KM |
| 42 Lancaster Gate | £ 1,050,000 | 0.08 KM |
| 28 Craven Hill Mews | £ 1,110,000 | 0.08 KM |
| 4 Craven Hill Mews | £ 2,975,000 | 0.08 KM |