MI
Vulcan Close,, Whitstable, Kent, CT5
By Miles & Barr
£ 425,000
Reviews
4 out of 5 stars
Miles & Barr says ..
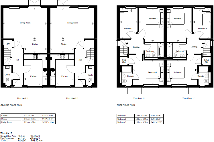
*** PLOT OF THE MONTH *** Plot 10 Harbour Reach *T&C's Apply *Plot 10 The Beckett at Phase II of Harbour Reach can be viewed and reserved now at an attractive price until 31st July 2025. Buyers must be in a position to proceed with a conditional four week exchange p...
Property Oracle says ..
Therefore, we give this property 8 / 10. *Disclaimer: This is our option and does constitute a recommendation or financial advice. Do your own research. *
- Price
- 9
- Condition
- 9
- Location
- 7
- Land
- 7
- Bedrooms
- 3
- Bathrooms
- 1
- Sqft (est)
- 994.80
The heatmap indicates the level of crime in the area. The color of the heatmap indicates the crime severity and recency.
Metrics Year-on-Year
- Average area value
- 970,000.00 £Increased by 100.79 %
- Est sale value
- 904,273.20 £Increased by 168.14 %
- Average area rental value
- 1,600.00 £/moDecreased by 26.03 %
- Est letting value
- 994.80 £/moUnchanged by 0.00 %
- Est rental Yield
- 1.98 %Decreased by 63.13 %
- Crime Rate
- 9.00 %Unchanged by 0.00 %
from 483,087.00 £
from 337,237.20 £
from 2,163.00 £/mo
from 994.80 £/mo
from 5.37 %
from 9.00 %
Agent Activity
Miles & Barr created the listing.
Nearby Schools
| Name | Type | Ofsted | Distance |
|---|---|---|---|
| Joy Lane Children'S Centre | Children's Centre | 0.35 KM | |
| Joy Lane Primary Foundation School | Foundation School | Good | 0.41 KM |
| Whitstable Junior School | Foundation School | Good | 0.94 KM |
| St Alphege Church Of England Infant School | Voluntary Controlled School | Good | 0.95 KM |
| Whitstable And Seasalter Endowed Church Of England Junior School | Voluntary Aided School | Outstanding | 1.21 KM |
Images
Nearby Streets
| Name | Average Price | Average Sqft | Distance |
|---|---|---|---|
| Tollgate Close | £ 0 | 0 | 0.00 KM |
| Alexandra Road (CW54A) | £ 837,500 | 0 | 0.00 KM |
| Millers Court | £ 0 | 0 | 0.00 KM |
| Orchard Grove | £ 550,000 | 0 | 0.00 KM |
| Portway | £ 600,000 | 0 | 0.00 KM |
Nearby Transport
| Name | NLC | TLC | Distance |
|---|---|---|---|
| Whitstable | 5196 | WHI | 1.76 KM |
| Chestfield And Swalecliffe | 5200 | CSW | 5.36 KM |
| Canterbury West | 5007 | CBW | 9.47 KM |
Nearby Listings
| Address | Price | Type | Score | Distance |
|---|---|---|---|---|
| Vulcan Close,, Whitstable, Kent, CT5 | £ 425,000 | BUY | Unknown | 0.00 KM |
| Vulcan Close,, Whitstable, Kent, CT5 | £ 600,000 | BUY | 8 / 10 | 0.00 KM |
| Vulcan Close,, Whitstable, Kent, CT5 | £ 425,000 | BUY | 8 / 10 | 0.00 KM |
| Vulcan Close,, Whitstable, Kent, CT5 | £ 450,000 | BUY | 7 / 10 | 0.00 KM |
| Vulcan Close,, Whitstable, Kent, CT5 | £ 650,000 | BUY | 8 / 10 | 0.00 KM |
Nearby Properties
| Address | Price | Distance |
|---|---|---|
| 4 Cages Close | £ 359,950 | 0.09 KM |
| 3 Dove Close | £ 319,995 | 0.09 KM |
| 11 Dove Close | £ 185,000 | 0.11 KM |
| 5 Dove Close | £ 250,000 | 0.11 KM |
| 9 Dove Close | £ 176,500 | 0.11 KM |