Uttoxeter Road, Foston, Derby
By Scargill Mann & Co
£ 564,995
Reviews
3 out of 5 stars
Scargill Mann & Co says ..
SCARGILL MANN ARE THRILLED TO LAUNCH THIS FABULOUS BESPOKE THREE/FOUR BEDROOM DETACHED RESIDENCE OFFERING MODERN-DAY COMFORTS IN THIS SEMI-RURAL LOCATION, WITH AN OPPORTUNITY TO PURCHASE OFF-PLAN
Property Oracle says ..
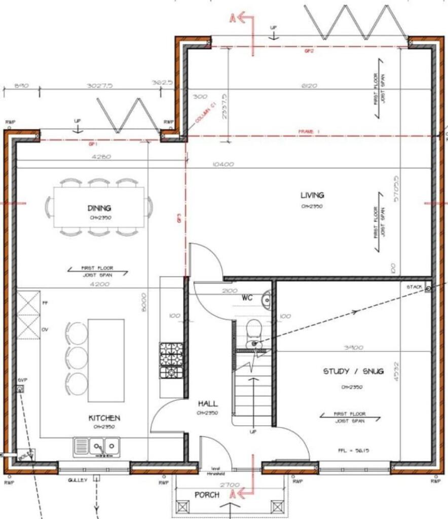
This property in Foston, South Derbyshire, is presented as a new build or recently completed renovation. The architectural drawings showcase a modern, well-designed four-bedroom house with two bathrooms. The renderings show a brick exterior with a contemporary feel. The location offers a balance between rural tranquility and access to local amenities and transportation options, with several well-regarded primary schools within reach. The plot size is not large, as suggested by the site plan, but sufficient for a family. The property’s condition is likely excellent, given it appears to be a new build. The £564,995 list price appears to align with property values in the area, reflecting the quality of the build and location, though a comparison with exact square footages of nearby properties would be necessary for a fully conclusive evaluation. The lack of information regarding the specific plot size and square footage of other properties makes a comprehensive price per square foot comparison difficult. Overall, this represents a modern, well-located family home in a desirable part of Derbyshire. Buyers should prioritize a physical inspection to verify the quality and finish to ensure it meets their expectations. The information provided appears incomplete and could benefit from more specifics regarding plot dimensions and a more complete comparison of nearby sales data.
Therefore, we give this property 6 / 10. *Disclaimer: This is our option and does constitute a recommendation or financial advice. Do your own research. *
- Price
- 7
- Condition
- 9
- Location
- 7
- Land
- 4
- Bedrooms
- 4
- Bathrooms
- 2
- Sqft (est)
- 1,332.25
The heatmap indicates the level of crime in the area. The color of the heatmap indicates the crime severity and recency.
Metrics Year-on-Year
- Average area value
- 340,500.00 £Increased by 12.45 %
- Est sale value
- 514,248.50 £Increased by 28.67 %
- Average area rental value
- 1,093.00 £/moIncreased by 22.26 %
- Est letting value
- 1,332.25 £/mo
- Est rental Yield
- 3.85 %Increased by 8.76 %
- Crime Rate
- 6.00 %Unchanged by 0.00 %
Agent Activity
Scargill Mann & Co created the listing.
Nearby Schools
| Name | Type | Ofsted | Distance |
|---|---|---|---|
| Heath Fields Primary School | Community School | Good | 1.50 KM |
| Church Broughton Cofe Primary School | Voluntary Controlled School | Good | 2.58 KM |
| Richard Wakefield Cofe Primary Academy | Academy Converter | 2.68 KM | |
| The Mosley Academy | Academy Converter | Outstanding | 5.89 KM |
| John Of Rolleston Primary School | Academy Converter | 6.34 KM |
Images
Nearby Streets
| Name | Average Price | Average Sqft | Distance |
|---|---|---|---|
| Holly Bank | £ 485,000 | 0 | 0.00 KM |
| Bramley Court | £ 0 | 0 | 0.00 KM |
| Oakwood Close | £ 325,000 | 0 | 0.00 KM |
| Malthouse Lane | £ 0 | 0 | 0.00 KM |
| Watery Lane | £ 0 | 0 | 0.00 KM |
Nearby Transport
| Name | NLC | TLC | Distance |
|---|---|---|---|
| Tutbury And Hatton | 1783 | TUT | 2.06 KM |
| Burton-On-Trent | 1658 | BUT | 9.86 KM |
Nearby Listings
| Address | Price | Type | Score | Distance |
|---|---|---|---|---|
| Uttoxeter Road, Foston, Derby | £ 599,999 | BUY | 6 / 10 | 0.00 KM |
| Uttoxeter Road, Foston, Derby | £ 135,000 | BUY | Unknown | 0.18 KM |
| Uttoxeter Road, Foston, DE65 | £ 500,000 | BUY | 7 / 10 | 0.40 KM |
| Uttoxeter Road, Foston, Derby, Derbyshire, DE65 5PX | £ 180,000 | BUY | 6 / 10 | 0.83 KM |
| Firs Farm, Scropton, Derbyshire | £ 750,000 | BUY | Unknown | 0.97 KM |
Nearby Properties
| Address | Price | Distance |
|---|---|---|
| 4 Uttoxeter Road | £ 322,000 | 0.38 KM |
| 16 Uttoxeter Road | £ 92,500 | 0.38 KM |
| Birchlea | £ 452,000 | 0.38 KM |
| 37 Uttoxeter Road | £ 295,000 | 0.38 KM |
| 28a Uttoxeter Road | £ 247,000 | 0.38 KM |