Saxon Avenue, Minster On Sea ME12 2RP
By Regan-Kennard Property Partners, Powered by eXp UK
£ 475,000
Reviews
3 out of 5 stars
Regan-Kennard Property Partners, Powered by eXp UK says ..
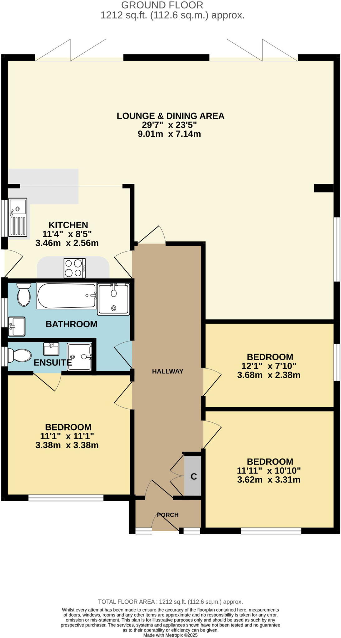
This beautifully extended bungalow in Saxon Avenue, Minster, offers stunning open-plan living with a spacious kitchen, lounge, and dining area. Bi-fold doors span the entire rear, flooding the living space with natural light and seamlessly connecting to a large south-facing garden - perfect fo...
Property Oracle says ..
This property is a 3 bedroom, 2 bathroom detached bungalow located in Minster on Sea, Kent. The property is well presented and appears to be in excellent condition, having undergone recent modernisation. It benefits from a good sized garden and is conveniently located near local schools and transport links. The asking price is slightly higher than the average price per square foot for the area, but given the property’s condition, size, and features, it could represent good value for money. More information on the plot size would help to confirm this.
Therefore, we give this property 7 / 10. *Disclaimer: This is our option and does constitute a recommendation or financial advice. Do your own research. *
- Price
- 7
- Condition
- 9
- Location
- 8
- Land
- 7
- Bedrooms
- 3
- Bathrooms
- 2
- Sqft (est)
- 1,166.83
- Lot (est)
- 1,212.00
The heatmap indicates the level of crime in the area. The color of the heatmap indicates the crime severity and recency.
Metrics Year-on-Year
- Average area value
- 395,917.00 £Increased by 2.34 %
- Est sale value
- 483,067.62 £Increased by 27.78 %
- Average area rental value
- 1,488.00 £/moIncreased by 14.46 %
- Est letting value
- 1,166.83 £/moUnchanged by 0.00 %
- Est rental Yield
- 4.51 %Increased by 11.91 %
- Crime Rate
- 3.00 %Unchanged by 0.00 %
Agent Activity
Regan-Kennard Property Partners, Powered by eXp UK created the listing.
Nearby Schools
| Name | Type | Ofsted | Distance |
|---|---|---|---|
| Elliott Park School | Other Independent School | Good | 0.66 KM |
| Thistle Hill Academy | Academy Sponsor Led | Requires improvement | 0.67 KM |
| Minster In Sheppey Primary School | Academy Converter | Good | 0.85 KM |
| Lilypad Children'S Centre | Children's Centre | 0.90 KM | |
| Oasis Academy Isle Of Sheppey | Academy Sponsor Led | Requires improvement | 1.92 KM |
Images
Nearby Streets
| Name | Average Price | Average Sqft | Distance |
|---|---|---|---|
| Orchard Grove | £ 0 | 0 | 0.00 KM |
| Worcester Close | £ 0 | 0 | 0.00 KM |
| Sorrel Close | £ 249,250 | 0 | 0.00 KM |
| Johnson Way | £ 0 | 0 | 0.00 KM |
| Lilac Road | £ 270,000 | 0 | 0.00 KM |
Nearby Transport
| Name | NLC | TLC | Distance |
|---|---|---|---|
| Sheerness-On-Sea | 5184 | SSS | 5.22 KM |
| Queenborough | 5176 | QBR | 5.71 KM |
| Swale | 5249 | SWL | 6.92 KM |
| Kemsley | 5205 | KML | 9.74 KM |
| Teynham | 5193 | TEY | 9.75 KM |
Nearby Listings
| Address | Price | Type | Score | Distance |
|---|---|---|---|---|
| Saxon Avenue, Minster On Sea ME12 2RP | £ 475,000 | BUY | 7 / 10 | 0.00 KM |
| Saxon Avenue, Minster On Sea, Sheerness | £ 450,000 | BUY | 7 / 10 | 0.04 KM |
| Minster Road, Minster On Sea, Sheerness | £ 425,000 | BUY | Unknown | 0.07 KM |
| Minster Road, Minster On Sea, Sheerness, ME12 3NR | £ 350,000 | BUY | 7 / 10 | 0.11 KM |
| Minster Road, Minster On Sea, Sheerness, Kent, ME12 | £ 700,000 | BUY | 8 / 10 | 0.12 KM |
Nearby Properties
| Address | Price | Distance |
|---|---|---|
| 14 Saxon Avenue | £ 400,000 | 0.01 KM |
| 5 Saxon Avenue | £ 386,000 | 0.01 KM |
| Kishanda | £ 220,000 | 0.01 KM |
| Cheyne Lodge | £ 375,000 | 0.01 KM |
| 8 Saxon Avenue | £ 406,000 | 0.01 KM |