Fortescue Farm and Barns
RE

Fortescue Farm and Barns

By Redferns

£ 650,000

Reviews

2 out of 5 stars

Redferns says ..

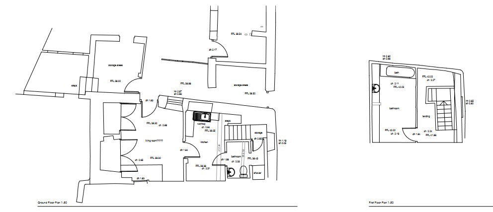
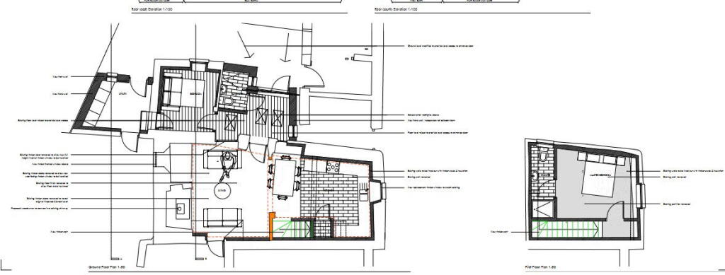
A superb development opportunity to renovate and develop substantial barns (STP) and planning has been granted to extend and renovate the existing grade II listed farmhouse with nearly half an acre of gardens and grounds situated on the edge of this desirable coastal town with beautiful views.

Property Oracle says ..

This barn conversion property in Sidmouth, East Devon, is listed at £650,000. The property is situated in a rural location, with the nearest school, Sidmouth College, approximately 1.07km away. The property itself appears to be in need of significant renovation, as evidenced by the provided photographs. The land surrounding the property is extensive, as shown in the aerial view. However, the exact plot size is not specified. Considering the condition of the property, the extensive land, and the average price per square foot in the area (£496), the list price seems reasonable, especially when compared to nearby properties that are in better condition and have smaller plots. However, the lack of bedrooms and bathrooms should be noted. The property presents a significant renovation project, but the potential is considerable given the land and location.

Therefore, we give this property 5 / 10. *Disclaimer: This is our option and does constitute a recommendation or financial advice. Do your own research. *

Price
6
Condition
3
Location
6
Land
8
Bedrooms
0
Bathrooms
0
Sqft (est)
1,865.45

The heatmap indicates the level of crime in the area. The color of the heatmap indicates the crime severity and recency.

Metrics Year-on-Year

Average area value
803,783.00 £
Increased by 17.25 %
from 685,550.00 £
Est sale value
917,801.40 £
Increased by 17.70 %
from 779,758.10 £
Average area rental value
930.00 £/mo
Decreased by 22.50 %
from 1,200.00 £/mo
Est letting value
0.00 £/mo
from 0.00 £/mo
Est rental Yield
1.39 %
Decreased by 33.81 %
from 2.10 %
Crime Rate
1.00 %
Unchanged by 0.00 %
from 1.00 %

Agent Activity

  • Redferns created the listing.

Nearby Schools

NameTypeOfstedDistance
Sidmouth CollegeCommunity SchoolGood1.07 KM
Sidmouth Church Of England (Va) Primary SchoolAcademy ConverterGood2.22 KM
Sidmouth Children'S CentreChildren's Centre2.43 KM
Sidbury Church Of England Primary SchoolAcademy ConverterGood2.44 KM
St John'S SchoolOther Independent School3.31 KM

Images

Nearby Streets

NameAverage PriceAverage SqftDistance
Brook Lane £ 000.00 KM
Stanhope Drive £ 000.00 KM
Redwood Road £ 850,00000.00 KM
Hillside £ 300,00000.00 KM
Winslade Road £ 260,00000.00 KM

Nearby Listings

AddressPriceTypeScoreDistance
Fortescue Farm and Barns £ 550,000BUY5 / 100.00 KM
All Saints Road, Sidmouth, Devon, EX10 £ 200,000BUYUnknown0.00 KM
Fortescue Farm and Barns £ 650,000BUY5 / 100.00 KM
Fortescue Road, Sidmouth £ 535,000BUY6 / 100.19 KM
Fortescue Road, Sidmouth, Devon, EX10 £ 465,000BUYUnknown0.32 KM

Nearby Properties

AddressPriceDistance
Mead £ 800,0000.01 KM
Moonreach £ 952,0000.01 KM
Greendale £ 1,150,0000.01 KM
Mead Bank £ 495,0000.01 KM
Tamarix £ 795,0000.29 KM