BR
Bicton Street, Exmouth, Devon
By Bradleys
£ 375,000
Bradleys says ..
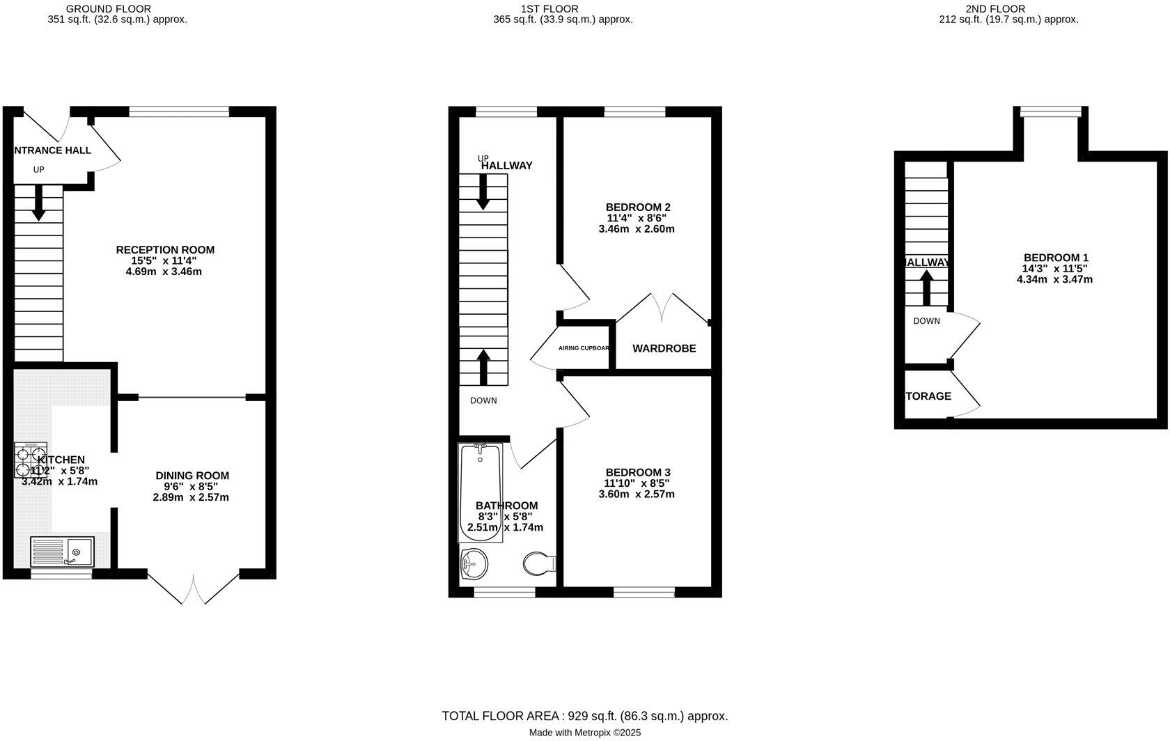
Stunning 3-Bedroom End of Terrace Home in the Heart of Exmouth This three-bedroom end of terrace home in central Exmouth features a decorative tiled entrance, a spacious lounge, a dining room, and a modern kitchen. The first floor offers two double bedrooms, and a contemporary bathroom,...
- Bedrooms
- 3
- Bathrooms
- 1
The heatmap indicates the level of crime in the area. The color of the heatmap indicates the crime severity and recency.
Metrics Year-on-Year
- Average area value
- 385,000.00 £Decreased by 11.33 %
- Average area rental value
- 1,650.00 £/moIncreased by 37.04 %
- Est rental Yield
- 5.14 %Increased by 54.35 %
- Crime Rate
- 22.00 %Unchanged by 0.00 %
from 434,218.00 £
from 1,204.00 £/mo
from 3.33 %
from 22.00 %
Agent Activity
Bradleys created the listing.
Nearby Schools
| Name | Type | Ofsted | Distance |
|---|---|---|---|
| The Beacon Church Of England (Va) Primary School | Voluntary Aided School | Good | 0.22 KM |
| Exeter Road Community Primary School | Foundation School | Good | 0.48 KM |
| Exeter Royal Academy For Deaf Education | Non-maintained Special School | Requires improvement | 0.61 KM |
| St Joseph'S Catholic Primary School, Exmouth | Academy Converter | Good | 0.81 KM |
| Exmouth Community College | Academy Converter | Requires improvement | 1.14 KM |
Images
Nearby Streets
| Name | Average Price | Average Sqft | Distance |
|---|---|---|---|
| South Street | £ 0 | 0 | 0.00 KM |
| Beacon Hill | £ 0 | 0 | 0.00 KM |
| Albion Terrace | £ 200,000 | 0 | 0.00 KM |
| Admirals Court | £ 119,488 | 0 | 0.00 KM |
| Bicton Villas | £ 0 | 0 | 0.00 KM |
Nearby Transport
| Name | NLC | TLC | Distance |
|---|---|---|---|
| Exmouth | 5756 | EXM | 0.59 KM |
| Lympstone Village | 5761 | LYM | 4.02 KM |
| Dawlish Warren | 3409 | DWW | 4.20 KM |
| Starcross | 3413 | SCS | 4.20 KM |
| Lympstone Commando | 5762 | LYC | 5.91 KM |
Nearby Listings
| Address | Price | Type | Score | Distance |
|---|---|---|---|---|
| Bicton Street, Exmouth, Devon | £ 375,000 | BUY | Unknown | 0.00 KM |
| Rolle Road, Exmouth, Devon, EX8 | £ 225,000 | BUY | 6 / 10 | 0.05 KM |
| Rolle Road, Exmouth EX8 2AA | £ 250,000 | BUY | 6 / 10 | 0.05 KM |
| Rolle Road, Exmouth, Devon, EX8 | £ 180,000 | BUY | 6 / 10 | 0.05 KM |
| Rolle Road, Exmouth, Devon, EX8 | £ 170,000 | BUY | 6 / 10 | 0.05 KM |
Nearby Properties
| Address | Price | Distance |
|---|---|---|
| 6a Bicton Street | £ 305,000 | 0.01 KM |
| 6 Bicton Street | £ 205,000 | 0.01 KM |
| 3 Bicton Street | £ 64,500 | 0.01 KM |
| 19 South Street | £ 133,000 | 0.06 KM |
| 17 South Street | £ 185,000 | 0.06 KM |