Pollards Way, Lower Stondon, SG16
By Wellington Evans
£ 525,000
Reviews
3 out of 5 stars
Wellington Evans says ..
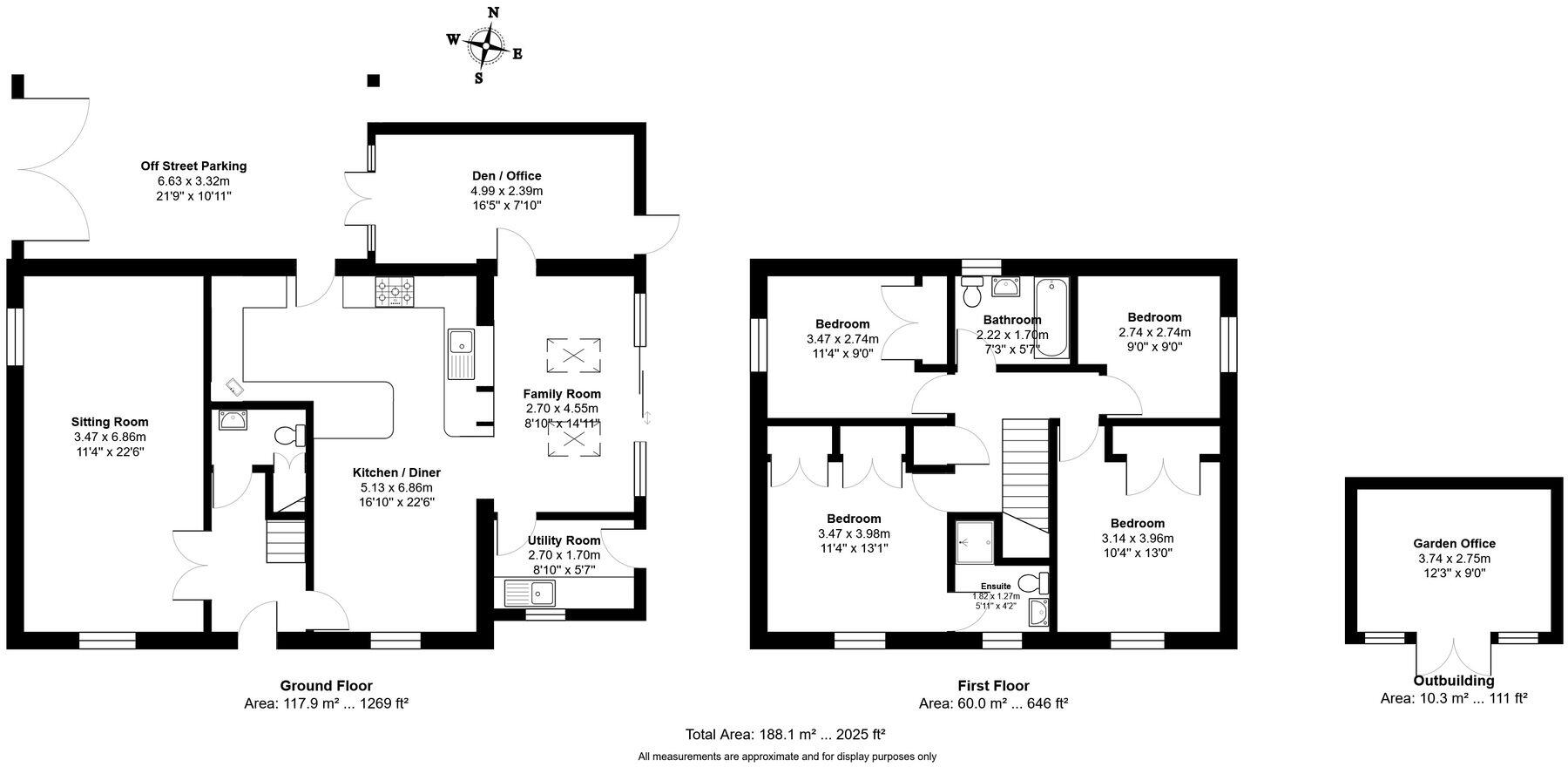
Detached family home in a popular village location. This fantastic four-bedroom property benefits from a large and versatile garden office. Walking distance to good schools and local amenities.
Property Oracle says ..
This detached property in Lower Stondon offers a comfortable family living space with four bedrooms and two bathrooms. The house is well-maintained, featuring a modern kitchen and a conservatory that enhances the living area. The front and back gardens provide ample outdoor space, and the property benefits from its proximity to local schools and transportation links. While not in a bustling urban center, the location offers a balance between rural tranquility and suburban convenience. The price appears to be in line with the market, considering the property’s size and condition.
Therefore, we give this property 7 / 10. *Disclaimer: This is our option and does constitute a recommendation or financial advice. Do your own research. *
- Price
- 7
- Condition
- 8
- Location
- 7
- Land
- 7
- Bedrooms
- 4
- Bathrooms
- 2
- Sqft (est)
- 2,165.25
The heatmap indicates the level of crime in the area. The color of the heatmap indicates the crime severity and recency.
Metrics Year-on-Year
- Average area value
- 428,654.00 £Increased by 2.39 %
- Est sale value
- 1,058,807.25 £Increased by 29.02 %
- Average area rental value
- 1,464.00 £/moIncreased by 8.77 %
- Est letting value
- 2,165.25 £/moUnchanged by 0.00 %
- Est rental Yield
- 4.10 %Increased by 6.22 %
- Crime Rate
- 22.00 %Unchanged by 0.00 %
Agent Activity
Wellington Evans created the listing.
Nearby Schools
| Name | Type | Ofsted | Distance |
|---|---|---|---|
| Derwent Lower School | Foundation School | Good | 1.40 KM |
| Stondon Lower School | Community School | Good | 1.65 KM |
| Clifton All Saints Academy | Academy Converter | 3.90 KM | |
| Raynsford Church Of England Academy | Academy Converter | Good | 4.07 KM |
| Samuel Whitbread Academy | Academy Converter | Good | 4.13 KM |
Images
Nearby Streets
| Name | Average Price | Average Sqft | Distance |
|---|---|---|---|
| Three Star Caravan Park | £ 159,993 | 0 | 0.00 KM |
| Pear Tree Close | £ 525,000 | 0 | 0.00 KM |
| Alton Road | £ 300,000 | 0 | 0.00 KM |
| Morello Way | £ 0 | 0 | 0.00 KM |
| Damson Place | £ 0 | 0 | 0.00 KM |
Nearby Transport
| Name | NLC | TLC | Distance |
|---|---|---|---|
| Arlesey | 6171 | ARL | 5.12 KM |
| Hitchin | 6086 | HIT | 7.16 KM |
| Letchworth Garden City | 6089 | LET | 8.81 KM |
Nearby Listings
| Address | Price | Type | Score | Distance |
|---|---|---|---|---|
| Pollards Way, Lower Stondon, SG16 | £ 525,000 | BUY | 7 / 10 | 0.00 KM |
| Rosemary Lane, Lower Stondon, Henlow | £ 650,000 | BUY | Unknown | 0.07 KM |
| Pollards Way, Lower Stondon, Henlow, SG16 | £ 675,000 | BUY | 7 / 10 | 0.08 KM |
| Orchard Way, Henlow | £ 425,000 | BUY | 7 / 10 | 0.11 KM |
| Conference Close, Lower Stondon, SG16 6GJ | £ 132,000 | BUY | 6 / 10 | 0.14 KM |
Nearby Properties
| Address | Price | Distance |
|---|---|---|
| 5 Bluebell Drive | £ 422,500 | 0.02 KM |
| 23 Bluebell Drive | £ 360,000 | 0.02 KM |
| 37 Bluebell Drive | £ 90,000 | 0.02 KM |
| 4 Bluebell Drive | £ 565,000 | 0.02 KM |
| 25 Bluebell Drive | £ 222,995 | 0.02 KM |