Keith Ashton says ..
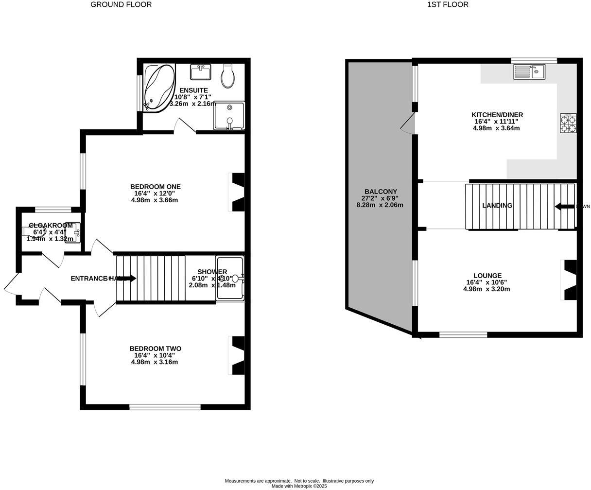
**Guide Price £450,000 - £475,000** We are delighted to present this distinctive semi-detached home, occupying a corner plot just moments from Brentwood High Street. Set across two floors, the ground level features two generous double bedrooms, while the first floor boasts a bright loung...
Property Oracle says ..
Therefore, we give this property 7 / 10. *Disclaimer: This is our option and does constitute a recommendation or financial advice. Do your own research. *
- Price
- 8
- Condition
- 7
- Location
- 8
- Land
- 6
- Bedrooms
- 2
- Bathrooms
- 2
- Sqft (est)
- 1,052.28
The heatmap indicates the level of crime in the area. The color of the heatmap indicates the crime severity and recency.
Metrics Year-on-Year
- Average area value
- 474,444.00 £Increased by 28.91 %
- Est sale value
- 659,779.56 £Increased by 35.71 %
- Average area rental value
- 1,524.00 £/moDecreased by 7.80 %
- Est letting value
- 2,104.56 £/moUnchanged by 0.00 %
- Est rental Yield
- 3.85 %Decreased by 28.57 %
- Crime Rate
- 12.00 %Unchanged by 0.00 %
from 368,043.00 £
from 486,153.36 £
from 1,653.00 £/mo
from 2,104.56 £/mo
from 5.39 %
from 12.00 %
Agent Activity
Keith Ashton created the listing.
Nearby Schools
| Name | Type | Ofsted | Distance |
|---|---|---|---|
| Brentwood Ursuline Convent High School | Academy Converter | Good | 0.94 KM |
| Grove House School | Free Schools Special | Good | 0.97 KM |
| Becket Keys Church Of England Free School | Free Schools | Outstanding | 1.03 KM |
| St Thomas Of Canterbury Church Of England Aided Infant School | Voluntary Aided School | Outstanding | 1.21 KM |
| St Thomas Of Canterbury Church Of England Aided Junior School, Brentwood | Voluntary Aided School | Good | 1.21 KM |
Images
Nearby Streets
| Name | Average Price | Average Sqft | Distance |
|---|---|---|---|
| Kings Road | £ 0 | 0 | 0.00 KM |
| Kings Road | £ 0 | 0 | 0.00 KM |
| St. Charles Road | £ 0 | 0 | 0.00 KM |
| Browne Close | £ 250,000 | 0 | 0.00 KM |
| Saint James Road | £ 321,618 | 0 | 0.00 KM |
Nearby Transport
| Name | NLC | TLC | Distance |
|---|---|---|---|
| Brentwood | 6872 | BRE | 0.81 KM |
| Shenfield | 6888 | SNF | 3.92 KM |
| Harold Wood | 6879 | HRO | 7.60 KM |
| West Horndon | 7466 | WHR | 7.61 KM |
| Upminster | 7464 | UPM | 8.43 KM |
Nearby Listings
| Address | Price | Type | Score | Distance |
|---|---|---|---|---|
| Weald Road, Brentwood | £ 450,000 | BUY | 7 / 10 | 0.00 KM |
| Tower Hill, Brentwood | £ 450,000 | BUY | 7 / 10 | 0.05 KM |
| Tower Hill, Brentwood | £ 450,000 | BUY | Unknown | 0.05 KM |
| Tower Hill, Brentwood, CM14 | £ 450,000 | BUY | 6 / 10 | 0.05 KM |
| Tower Hill, Brentwood | £ 325,000 | BUY | 6 / 10 | 0.05 KM |
Nearby Properties
| Address | Price | Distance |
|---|---|---|
| 12 Weald Road | £ 305,000 | 0.04 KM |
| 20 Weald Road | £ 389,000 | 0.04 KM |
| 6 | £ 210,000 | 0.04 KM |
| 13 Weald Road | £ 295,000 | 0.04 KM |
| 38 Weald Road | £ 120,000 | 0.04 KM |