YO
High Street, Whitton, Twickenham, TW2
By Your Move
£ 1,250
Your Move says ..
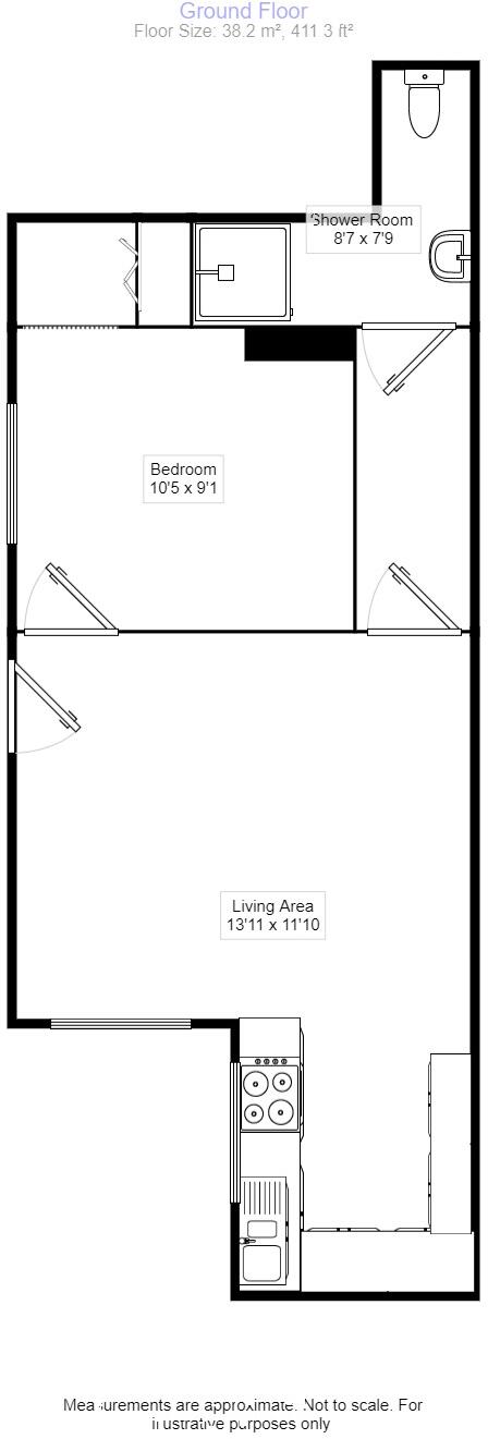
AVAILBLE NOW. This lovely ground floor flat is situated in the heart of Whitton. In brief offers spacious living room with a modern open plan kitchen, 1 double bedroom & modern shower room w/c. Council Tax Band C. EPC Grade C.
- Bedrooms
- 1
- Bathrooms
- 1
The heatmap indicates the level of crime in the area. The color of the heatmap indicates the crime severity and recency.
Metrics Year-on-Year
- Average area value
- 506,939.00 £Increased by 10.04 %
- Average area rental value
- 1,830.00 £/moDecreased by 16.32 %
- Est rental Yield
- 4.33 %Decreased by 24.04 %
- Crime Rate
- 21.00 %Unchanged by 0.00 %
from 460,699.00 £
from 2,187.00 £/mo
from 5.70 %
from 21.00 %
Agent Activity
Your Move created the listing.
Nearby Schools
| Name | Type | Ofsted | Distance |
|---|---|---|---|
| St Edmund'S Catholic Primary School | Voluntary Aided School | Good | 0.35 KM |
| Nelson Primary School | Academy Sponsor Led | Requires improvement | 0.47 KM |
| Bishop Perrin Church Of England Primary School | Voluntary Aided School | Outstanding | 0.99 KM |
| Twickenham School | Academy Sponsor Led | Good | 0.99 KM |
| Trafalgar Infant School | Community School | Outstanding | 1.01 KM |
Images
Nearby Streets
| Name | Average Price | Average Sqft | Distance |
|---|---|---|---|
| Mayfair Avenue | £ 0 | 0 | 0.00 KM |
| Percy Way | £ 1,100,000 | 0 | 0.00 KM |
| Keswick Road | £ 0 | 0 | 0.00 KM |
| St. Edmund's Lane | £ 595,000 | 0 | 0.00 KM |
| Park Crescent | £ 0 | 0 | 0.00 KM |
Nearby Transport
| Name | NLC | TLC | Distance |
|---|---|---|---|
| Whitton | 5611 | WTN | 0.17 KM |
| Hounslow | 5563 | HOU | 1.31 KM |
| Fulwell | 5587 | FLW | 2.11 KM |
| Strawberry Hill | 5607 | STW | 2.42 KM |
| Twickenham | 5574 | TWI | 3.00 KM |
Nearby Listings
| Address | Price | Type | Score | Distance |
|---|---|---|---|---|
| High Street, Whitton, Twickenham, TW2 | £ 1,250 | RENT | Unknown | 0.00 KM |
| High Street (LC488), Whitton, TW2 | £ 1,250 | RENT | Unknown | 0.06 KM |
| High Street, Whitton, Twickenham | £ 2,000 | RENT | Unknown | 0.07 KM |
| Whitton High Street | £ 1,600 | RENT | Unknown | 0.07 KM |
| High Street, Whitton, TW2 | £ 1,475 | RENT | Unknown | 0.09 KM |
Nearby Properties
| Address | Price | Distance |
|---|---|---|
| 83a High Street | £ 248,000 | 0.06 KM |
| 73a High Street | £ 139,000 | 0.06 KM |
| 81a High Street | £ 178,000 | 0.06 KM |
| 75a High Street | £ 115,000 | 0.06 KM |
| 105 High Street | £ 400,000 | 0.06 KM |