Royal Fox says ..
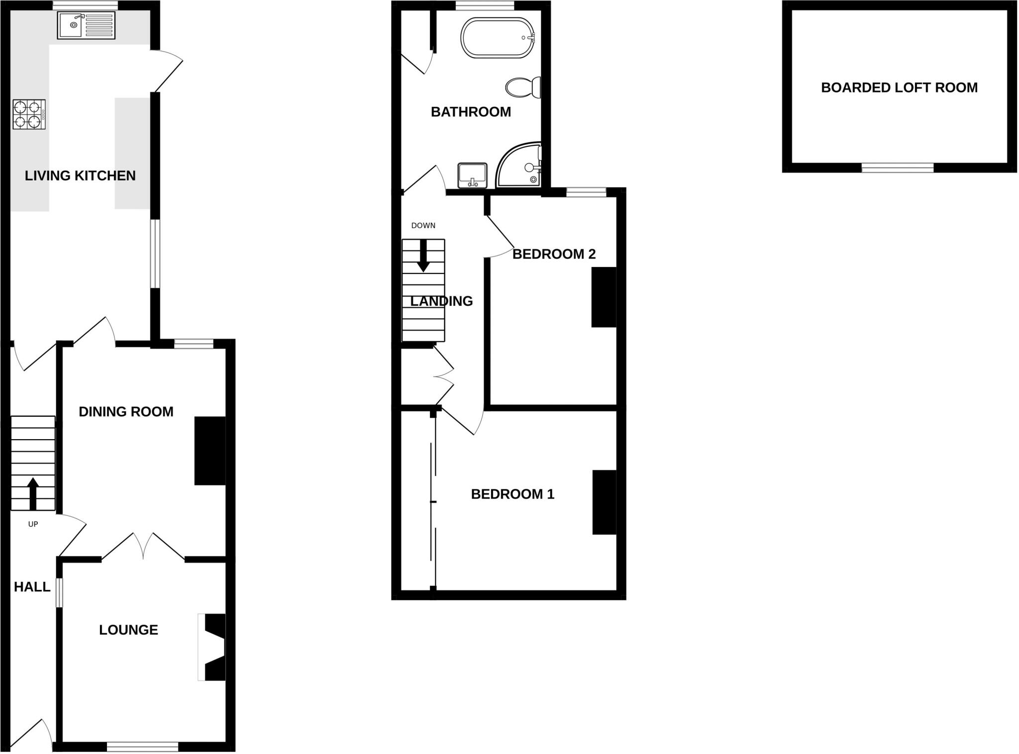
IMPRESSIVE VICTORIAN SEMI - METICULOUSLY IMPROVED TO A HIGH STANDARD - OUTSTANDING LIVING KITCHEN & BATHROOM - TWO DOUBLE BEDROOMS & BOARDED LOFT ROOM ... Royal Fox Estates are delighted to offer this extremely well presented & spacious semi detached period property offering prospective b...
Property Oracle says ..
Therefore, we give this property 7 / 10. *Disclaimer: This is our option and does constitute a recommendation or financial advice. Do your own research. *
- Price
- 8
- Condition
- 8
- Location
- 7
- Land
- 7
- Bedrooms
- 2
- Bathrooms
- 1
- Sqft (est)
- 455.00
The heatmap indicates the level of crime in the area. The color of the heatmap indicates the crime severity and recency.
Metrics Year-on-Year
- Average area value
- 258,571.00 £Decreased by 18.16 %
- Est sale value
- 149,240.00 £Increased by 11.95 %
- Average area rental value
- 1,230.00 £/moIncreased by 21.30 %
- Est letting value
- 455.00 £/mo
- Est rental Yield
- 5.71 %Increased by 48.31 %
- Crime Rate
- 53.00 %Unchanged by 0.00 %
from 315,930.00 £
from 133,315.00 £
from 1,014.00 £/mo
from 0.00 £/mo
from 3.85 %
from 53.00 %
Agent Activity
Royal Fox created the listing.
Nearby Schools
| Name | Type | Ofsted | Distance |
|---|---|---|---|
| Rosebank School | Community Special School | Good | 0.68 KM |
| Barnton And Weaverham Children'S Centre | Children's Centre | 0.70 KM | |
| Barnton Community Nursery And Primary School | Academy Converter | Good | 0.94 KM |
| Winnington Park Community Primary And Nursery School | Community School | Good | 2.47 KM |
| The Grange School | Other Independent School | 2.62 KM |
Images
Nearby Streets
| Name | Average Price | Average Sqft | Distance |
|---|---|---|---|
| The Mews | £ 150,000 | 0 | 0.00 KM |
| Goodwood Close | £ 0 | 0 | 0.00 KM |
| Hazelwood Road | £ 0 | 0 | 0.00 KM |
| Ashwood Close | £ 0 | 0 | 0.00 KM |
| Cherry Tree Avenue | £ 220,000 | 0 | 0.00 KM |
Nearby Transport
| Name | NLC | TLC | Distance |
|---|---|---|---|
| Greenbank | 2325 | GBK | 2.63 KM |
| Hartford (Cheshire) | 2230 | HTF | 3.46 KM |
| Northwich | 2326 | NWI | 5.56 KM |
| Acton Bridge (Cheshire) | 2287 | ACB | 6.34 KM |
| Cuddington | 2305 | CUD | 6.88 KM |
Nearby Listings
| Address | Price | Type | Score | Distance |
|---|---|---|---|---|
| Lydyett Lane, Barnton | £ 195,000 | BUY | 7 / 10 | 0.00 KM |
| Lydyett Lane, Barnton, Northwich | £ 230,000 | BUY | 7 / 10 | 0.07 KM |
| Spencer Street, Barnton, Northwich | £ 140,000 | BUY | 5 / 10 | 0.09 KM |
| Spencer Street, Barnton, Northwich, Cheshire, CW8 | £ 140,000 | BUY | 7 / 10 | 0.09 KM |
| Townfield Close, Barnton, CW8 | £ 230,000 | BUY | Unknown | 0.10 KM |
Nearby Properties
| Address | Price | Distance |
|---|---|---|
| 39 Lydyett Lane | £ 95,000 | 0.04 KM |
| 20 Lydyett Lane | £ 72,500 | 0.04 KM |
| 42 Lydyett Lane | £ 135,000 | 0.04 KM |
| 47 Lydyett Lane | £ 88,000 | 0.04 KM |
| 21 Lydyett Lane | £ 81,000 | 0.04 KM |