Turpie & Co says ..
Positioned in the well-connected town of Broxburn, this beautifully presented two-bedroom upper apartment, complete with a private rear garden, offers an ideal opportunity for first-time buyers, couples, or investors. EPC Rating - Band C
Property Oracle says ..
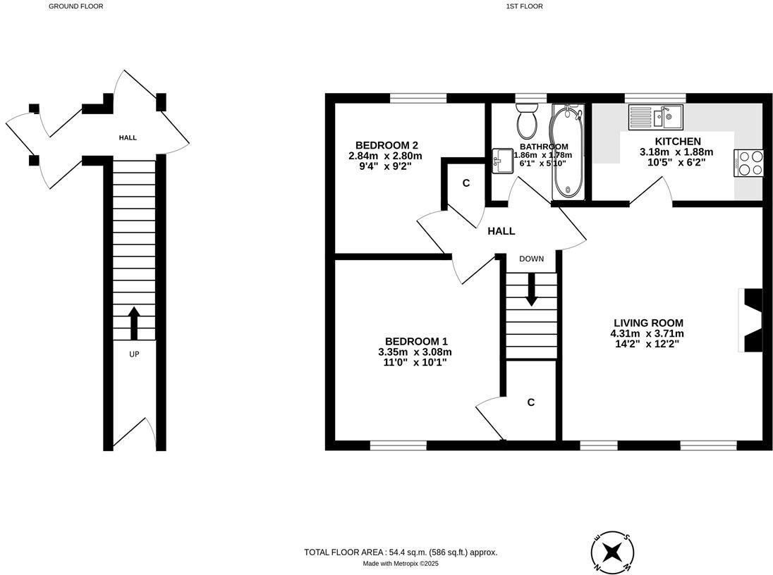
This is a 2-bedroom apartment in Broxburn, West Lothian. The property is in good condition and has a garden. The location is reasonably convenient, with access to local amenities and transport links. The asking price of £125,000 appears to be fair for the property type, size and location. The property benefits from a modern interior and a private garden with a shed.
Therefore, we give this property 7 / 10. *Disclaimer: This is our option and does constitute a recommendation or financial advice. Do your own research. *
- Price
- 8
- Condition
- 8
- Location
- 7
- Land
- 6
- Bedrooms
- 2
- Bathrooms
- 1
- Sqft (est)
- 156.61
The heatmap indicates the level of crime in the area. The color of the heatmap indicates the crime severity and recency.
Metrics Year-on-Year
- Average area value
- 294,275.00 £Increased by 4.32 %
- Est sale value
- 83,473.13 £Increased by 75.33 %
- Average area rental value
- 1,350.00 £/moIncreased by 9.49 %
- Est letting value
- 313.22 £/moIncreased by 100.00 %
- Est rental Yield
- 5.51 %Increased by 5.15 %
- Crime Rate
- 0.00 %
Agent Activity
Turpie & Co created the listing.
Images
Nearby Streets
| Name | Average Price | Average Sqft | Distance |
|---|---|---|---|
| Mcintosh Court | £ 0 | 0 | 0.00 KM |
| Kirkhill Court | £ 0 | 0 | 0.00 KM |
| Mauldeth Road | £ 0 | 0 | 0.00 KM |
| Galmeilen | £ 0 | 0 | 0.00 KM |
| Buchan Lane | £ 0 | 0 | 0.00 KM |
Nearby Transport
| Name | NLC | TLC | Distance |
|---|---|---|---|
| Uphall | 9373 | UHA | 3.10 KM |
| Kirknewton | 9230 | KKN | 7.48 KM |
| Livingston South | 9372 | LVG | 7.58 KM |
| Livingston North | 9371 | LSN | 8.09 KM |
Nearby Listings
| Address | Price | Type | Score | Distance |
|---|---|---|---|---|
| Nicol Place, Broxburn | £ 125,000 | BUY | 7 / 10 | 0.00 KM |
| Nicol Place, Broxburn, West Lothian, EH52 | £ 188,000 | BUY | 7 / 10 | 0.01 KM |
| Nicol Place, Broxburn, West Lothian, EH52 6GY | £ 125,000 | BUY | 6 / 10 | 0.01 KM |
| Glebe Terrace, Uphall, Broxburn, West Lothian, EH52 | £ 157,000 | BUY | 6 / 10 | 0.10 KM |
| Union Road, Broxburn, EH52 | £ 225,000 | BUY | 6 / 10 | 0.16 KM |