Winkworth says ..
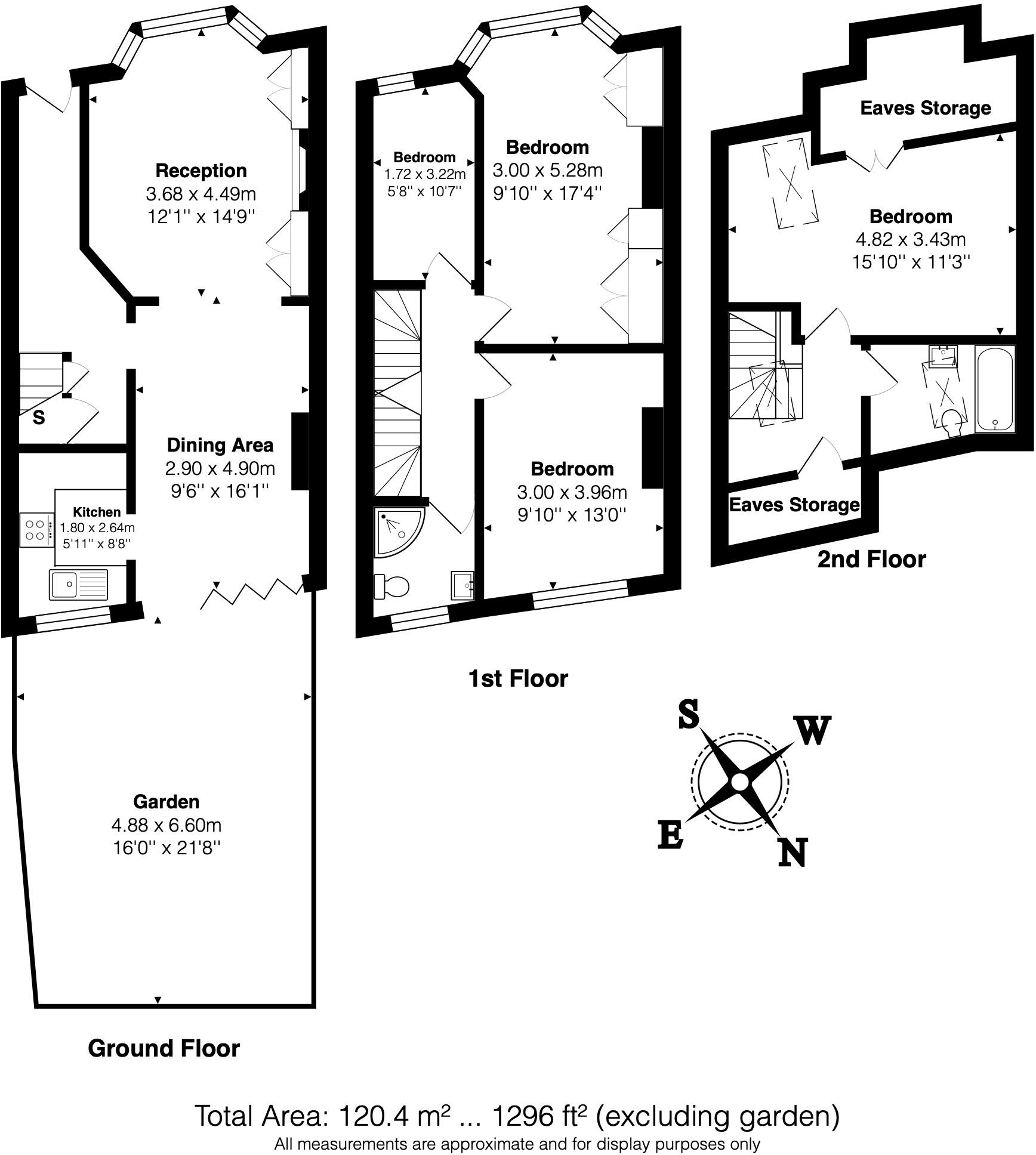
This wonderful family home has accommodation arranged over three floors including a loft conversion which houses a guest double bedroom, serviced by its own separate bathroom. On the first floor buyers will find two further double bedrooms, a smaller single room (making four bedrooms in total) a...
Property Oracle says ..
This four-bedroom terraced house in Trenmar Gardens, NW10, offers a well-presented and stylish family home. The property boasts a modern kitchen, updated bathrooms, and a charming garden, making it appealing to families. The interior design and decor appear to have been carefully chosen to create a comfortable and inviting atmosphere. The inclusion of a loft conversion adds extra living space, increasing the property’s overall value. The location is conveniently situated close to Kensal Green station, providing excellent access to central London and surrounding areas. The presence of highly rated schools nearby is an attractive feature for families with children. While the garden size is modest, it still offers valuable outdoor space. The listing price appears reasonable given the local market for similar properties, though a more precise assessment requires additional information regarding the exact plot size and recent comparable sales with detailed square footage. The overall impression is of a well-maintained, renovated family home in a convenient location. Potential buyers should conduct their own due diligence, including a property survey, before making an offer.
Therefore, we give this property 6 / 10. *Disclaimer: This is our option and does constitute a recommendation or financial advice. Do your own research. *
- Price
- 7
- Condition
- 8
- Location
- 7
- Land
- 4
- Bedrooms
- 4
- Bathrooms
- 2
- Sqft (est)
- 1,295.97
The heatmap indicates the level of crime in the area. The color of the heatmap indicates the crime severity and recency.
Metrics Year-on-Year
- Average area value
- 541,667.00 £Decreased by 44.13 %
- Est sale value
- 1,201,364.19 £Decreased by 8.76 %
- Average area rental value
- 2,752.00 £/moIncreased by 10.17 %
- Est letting value
- 5,183.88 £/moIncreased by 100.00 %
- Est rental Yield
- 6.10 %Increased by 97.41 %
- Crime Rate
- 15.00 %Unchanged by 0.00 %
Agent Activity
Winkworth created the listing.
Nearby Schools
| Name | Type | Ofsted | Distance |
|---|---|---|---|
| Kenmont Primary School | Community School | Good | 0.32 KM |
| Furness Primary School | Academy Converter | Good | 0.74 KM |
| College Green School And Services | Local Authority Nursery School | Outstanding | 0.80 KM |
| Princess Frederica Cofe Primary School | Voluntary Aided School | Good | 0.81 KM |
| Treetops Children'S Centre | Children's Centre | 0.86 KM |
Images
Nearby Streets
| Name | Average Price | Average Sqft | Distance |
|---|---|---|---|
| Wrottesley Road | £ 0 | 0 | 0.00 KM |
| Wrottesley Road | £ 0 | 0 | 0.00 KM |
| Wrottesley Road | £ 0 | 0 | 0.00 KM |
| Wrottesley Road | £ 0 | 0 | 0.00 KM |
| Wrottesley Road | £ 0 | 0 | 0.00 KM |
Nearby Transport
| Name | NLC | TLC | Distance |
|---|---|---|---|
| Kensal Green | 1447 | KNL | 0.82 KM |
| Willesden Junction | 1457 | WIJ | 1.34 KM |
| Kensal Rise | 1448 | KNR | 1.42 KM |
| Brondesbury Park | 1438 | BSP | 2.67 KM |
| Harlesden | 1521 | HDN | 2.84 KM |
Nearby Listings
| Address | Price | Type | Score | Distance |
|---|---|---|---|---|
| Trenmar Gardens, London, NW10 | £ 975,000 | BUY | 6 / 10 | 0.00 KM |
| Trenmar Gardens, Kensal Green , London, NW10 | £ 220,000 | BUY | 5 / 10 | 0.02 KM |
| Trenmar Gardens, London, NW10 | £ 975,000 | BUY | 6 / 10 | 0.02 KM |
| Albany Court, Trenmar Gardens, Kensal Green, London, NW10 | £ 205,000 | BUY | 6 / 10 | 0.03 KM |
| Harrow Road, Wembley, London NW10 | £ 250,000 | BUY | 4 / 10 | 0.04 KM |
Nearby Properties
| Address | Price | Distance |
|---|---|---|
| 1108b Harrow Road | £ 295,000 | 0.05 KM |
| 801 Harrow Road | £ 750,000 | 0.08 KM |
| 129 Clifford Gardens | £ 249,000 | 0.09 KM |
| 40b Napier Road | £ 565,000 | 0.09 KM |
| 14a Napier Road | £ 395,000 | 0.09 KM |