AS
Chalgrove, Welwyn Garden City, Hertfordshire, AL7
By Ashtons
£ 700,000
Reviews
3 out of 5 stars
Ashtons says ..
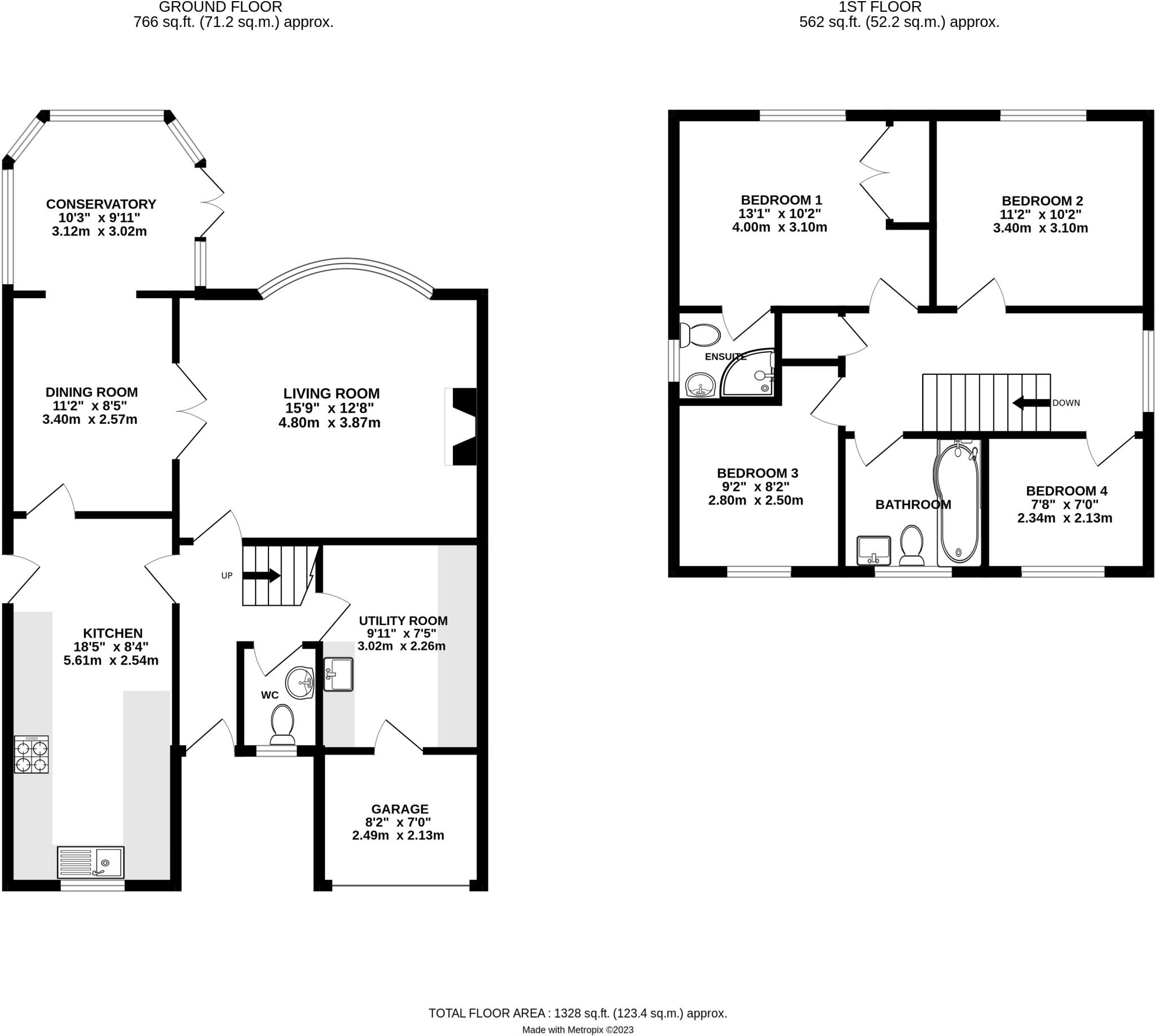
Situated in a popular Panshanger cul-de-sac, this exceptional four bedroom detached family home boasts a stunning high specification interior and a generous corner plot.
Property Oracle says ..
Therefore, we give this property 7 / 10. *Disclaimer: This is our option and does constitute a recommendation or financial advice. Do your own research. *
- Price
- 6
- Condition
- 9
- Location
- 7
- Land
- 7
- Bedrooms
- 4
- Bathrooms
- 2
- Sqft (est)
- 1,055.36
The heatmap indicates the level of crime in the area. The color of the heatmap indicates the crime severity and recency.
Metrics Year-on-Year
- Average area value
- 436,667.00 £Increased by 9.99 %
- Est sale value
- 566,728.32 £Increased by 46.72 %
- Average area rental value
- 1,625.00 £/moIncreased by 11.23 %
- Est letting value
- 1,055.36 £/moUnchanged by 0.00 %
- Est rental Yield
- 4.47 %Increased by 1.13 %
- Crime Rate
- 1.00 %Unchanged by 0.00 %
from 397,024.00 £
from 386,261.76 £
from 1,461.00 £/mo
from 1,055.36 £/mo
from 4.42 %
from 1.00 %
Agent Activity
Ashtons created the listing.
Nearby Schools
| Name | Type | Ofsted | Distance |
|---|---|---|---|
| Springmead Primary School | Academy Sponsor Led | 1.09 KM | |
| Watchlytes Primary School | Community School | Good | 1.56 KM |
| Tewin Cowper Church Of England Voluntary Aided Primary School | Voluntary Aided School | Good | 1.60 KM |
| Ridgeway Academy | Academy Sponsor Led | 2.13 KM | |
| Panshanger Primary School | Community School | Good | 2.51 KM |
Images
Nearby Streets
| Name | Average Price | Average Sqft | Distance |
|---|---|---|---|
| Elizabeth Close | £ 0 | 0 | 0.00 KM |
| Beverley Gardens | £ 0 | 0 | 0.00 KM |
| Bericot Way | £ 350,000 | 0 | 0.00 KM |
| Copperfields | £ 0 | 0 | 0.00 KM |
| The Meadow | £ 325,000 | 0 | 0.00 KM |
Nearby Transport
| Name | NLC | TLC | Distance |
|---|---|---|---|
| Welwyn North | 6096 | WLW | 4.33 KM |
| Welwyn Garden City | 6183 | WGC | 4.90 KM |
| Hatfield (Herts) | 6070 | HAT | 7.46 KM |
| Hertford North | 6085 | HFN | 7.53 KM |
| Watton-At-Stone | 6095 | WAS | 7.57 KM |
Nearby Listings
| Address | Price | Type | Score | Distance |
|---|---|---|---|---|
| Chalgrove, Welwyn Garden City, Hertfordshire, AL7 | £ 700,000 | BUY | 7 / 10 | 0.00 KM |
| Northwood, Welwyn Garden City, Hertfordshire, AL7 | £ 800,000 | BUY | 7 / 10 | 0.12 KM |
| Mendlesham, Welwyn Garden City, AL7 | £ 775,000 | BUY | 6 / 10 | 0.17 KM |
| Mendlesham, Panshanger, Welwyn Garden City, AL7 2QG | £ 750,000 | BUY | 7 / 10 | 0.18 KM |
| Alconbury, Welwyn Garden City, Hertfordshire, AL7 | £ 895,000 | BUY | 7 / 10 | 0.24 KM |
Nearby Properties
| Address | Price | Distance |
|---|---|---|
| 17 Chalgrove | £ 419,950 | 0.01 KM |
| 5 Chalgrove | £ 320,000 | 0.01 KM |
| 8 Chalgrove | £ 280,000 | 0.01 KM |
| 16 Chalgrove | £ 350,000 | 0.01 KM |
| 12 Chalgrove | £ 580,000 | 0.01 KM |