Wakefield Road, Copley
By Property @ Kemp and Co
£ 600,000
Reviews
2 out of 5 stars
Property @ Kemp and Co says ..
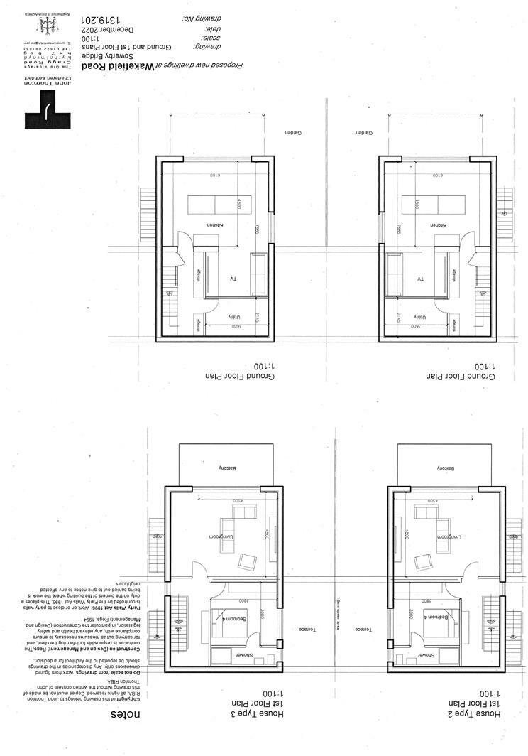
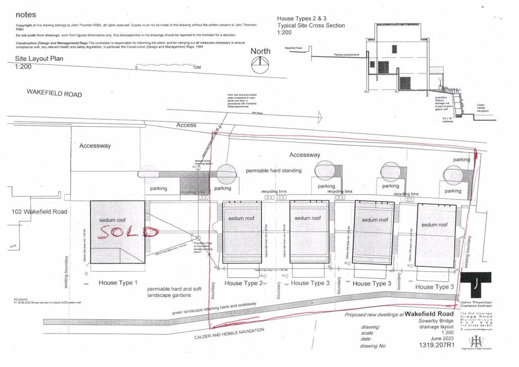
An excellent opportunity to purchase this plot of building land with full planning permission for four executive detached properties in this highly desirable residential location overlooking the Norland Hillside. The present planning permission is for 5 executive detached four bedroomed family ho...
Property Oracle says ..
This listing presents a development opportunity: a plot of land at Wakefield Road in Copley, Sowerby Bridge, with full planning permission granted for four executive, four-bedroom detached houses. The location is reasonably convenient, offering proximity to Sowerby Bridge train station and several schools, though the immediacy of local amenities requires further assessment. The plans show a development of four substantial properties suggesting a good-sized plot with potential for a significant return on investment for a developer. The absence of an existing structure means there is no property to evaluate regarding condition. Pricing is challenging to ascertain as a definite value for money score requires more granular data on the size and actual value of the land itself. Overall, the investment value may be high, however an individual looking to build their dream home will have to take into account the potential costs associated with building four homes. Noteworthy features include the planning permissions already in place and the potential rental income this project could generate once built.
Therefore, we give this property 5 / 10. *Disclaimer: This is our option and does constitute a recommendation or financial advice. Do your own research. *
- Price
- 6
- Condition
- 1
- Location
- 7
- Land
- 8
- Bedrooms
- 0
- Bathrooms
- 0
- Sqft (est)
- 839.59
The heatmap indicates the level of crime in the area. The color of the heatmap indicates the crime severity and recency.
Metrics Year-on-Year
- Average area value
- 225,000.00 £Increased by 3.20 %
- Est sale value
- 155,324.15 £Decreased by 26.29 %
- Average area rental value
- 809.00 £/moIncreased by 21.84 %
- Est letting value
- 0.00 £/mo
- Est rental Yield
- 4.31 %Increased by 18.08 %
- Crime Rate
- 3.00 %Unchanged by 0.00 %
Agent Activity
Property @ Kemp and Co created the listing.
Nearby Schools
| Name | Type | Ofsted | Distance |
|---|---|---|---|
| Bolton Brow Primary Academy | Academy Converter | Good | 0.54 KM |
| Compass Community School Willow Park | Other Independent Special School | 0.81 KM | |
| Warley Road Primary Academy | Academy Converter | 0.86 KM | |
| Christ Church Cofe Va Junior School, Sowerby Bridge | Voluntary Aided School | Good | 1.12 KM |
| Norland Ce School | Voluntary Controlled School | Good | 1.40 KM |
Images
Nearby Streets
| Name | Average Price | Average Sqft | Distance |
|---|---|---|---|
| Milner Royd Lane | £ 700,000 | 0 | 0.00 KM |
| Upper Bolton Brow | £ 170,000 | 0 | 0.00 KM |
| Woodland Drive | £ 325,000 | 0 | 0.00 KM |
| Park Street | £ 0 | 0 | 0.00 KM |
| Nelson Place | £ 0 | 0 | 0.00 KM |
Nearby Transport
| Name | NLC | TLC | Distance |
|---|---|---|---|
| Sowerby Bridge | 8527 | SOW | 1.45 KM |
| Halifax | 8411 | HFX | 4.64 KM |
| Slaithwaite | 8450 | SWT | 9.73 KM |
| Mytholmroyd | 8526 | MYT | 9.87 KM |
Nearby Listings
| Address | Price | Type | Score | Distance |
|---|---|---|---|---|
| Wakefield Road, Copley | £ 600,000 | BUY | 5 / 10 | 0.00 KM |
| Wakefield Road, Sowerby Bridge | £ 190,000 | BUY | 7 / 10 | 0.01 KM |
| 18 High Fields, Wakefield Road, Sowerby Bridge | £ 190,000 | BUY | 5 / 10 | 0.08 KM |
| Prospect Avenue, Halifax | £ 180,000 | BUY | 6 / 10 | 0.14 KM |
| Back Wakefield Road, Sowerby Bridge | £ 95,000 | BUY | 6 / 10 | 0.17 KM |
Nearby Properties
| Address | Price | Distance |
|---|---|---|
| 10 Canal Road | £ 79,000 | 0.09 KM |
| 12 Canal Road | £ 105,000 | 0.09 KM |
| 4 Canal Road | £ 88,950 | 0.09 KM |
| 34b Prospect Avenue | £ 190,000 | 0.14 KM |
| 13 Prospect Avenue | £ 122,000 | 0.14 KM |