WA
Court Drive, Sutton
By Watson Homes
£ 600,000
Watson Homes says ..
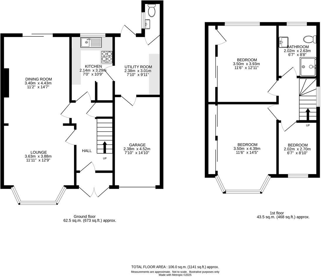
Watson Homes are delighted to offer this popular style three bedroom extended family home. The property offers two good size reception rooms, a utility room, a downstairs WC, a stunning rear garden, a garage, off street parking and no onward chain. The property is located in the sought a...
- Bedrooms
- 3
- Bathrooms
- 1
- Sqft (est)
- 1,011.81
The heatmap indicates the level of crime in the area. The color of the heatmap indicates the crime severity and recency.
Metrics Year-on-Year
- Average area value
- 524,000.00 £Decreased by 3.73 %
- Est sale value
- 705,231.57 £Increased by 100.29 %
- Average area rental value
- 1,458.00 £/moDecreased by 27.57 %
- Est letting value
- 1,011.81 £/moUnchanged by 0.00 %
- Est rental Yield
- 3.34 %Decreased by 24.77 %
- Crime Rate
- 3.00 %Unchanged by 0.00 %
from 544,291.00 £
from 352,109.88 £
from 2,013.00 £/mo
from 1,011.81 £/mo
from 4.44 %
from 3.00 %
Agent Activity
Watson Homes created the listing.
Nearby Schools
| Name | Type | Ofsted | Distance |
|---|---|---|---|
| St Philomena'S Catholic High School For Girls | Voluntary Aided School | Outstanding | 0.44 KM |
| Carshalton High School For Girls | Academy Converter | Good | 0.54 KM |
| St Mary'S Rc Infants School | Voluntary Aided School | Good | 0.62 KM |
| St Mary'S Rc Junior School | Voluntary Aided School | Good | 0.70 KM |
| Harris Junior Academy Carshalton | Academy Sponsor Led | Good | 0.80 KM |
Images
Nearby Streets
| Name | Average Price | Average Sqft | Distance |
|---|---|---|---|
| Old Swan Yard | £ 0 | 0 | 0.00 KM |
| William Street | £ 370,000 | 0 | 0.00 KM |
| Tyrell Court | £ 0 | 0 | 0.00 KM |
| Florian Avenue | £ 0 | 0 | 0.00 KM |
| Waterloo Road | £ 590,000 | 0 | 0.00 KM |
Nearby Transport
| Name | NLC | TLC | Distance |
|---|---|---|---|
| Carshalton | 5405 | CSH | 0.76 KM |
| Carshalton Beeches | 5406 | CSB | 1.07 KM |
| Sutton | 5385 | SUO | 2.16 KM |
| Hackbridge | 5364 | HCB | 2.46 KM |
| Wallington | 5394 | WLT | 2.54 KM |
Nearby Listings
| Address | Price | Type | Score | Distance |
|---|---|---|---|---|
| Court Drive, Sutton | £ 600,000 | BUY | Unknown | 0.00 KM |
| Westmead Road, Sutton, Surrey, SM1 | £ 610,000 | BUY | 8 / 10 | 0.08 KM |
| Westmead Corner, CARSHALTON | £ 500,000 | BUY | 6 / 10 | 0.15 KM |
| Westmead Corner, Carshalton | £ 525,000 | BUY | 7 / 10 | 0.16 KM |
| Rossdale, Sutton, Surrey. SM1 | £ 599,950 | BUY | 7 / 10 | 0.17 KM |
Nearby Properties
| Address | Price | Distance |
|---|---|---|
| 33 Court Drive | £ 645,000 | 0.07 KM |
| 22 Court Drive | £ 339,950 | 0.07 KM |
| 28 Court Drive | £ 698,000 | 0.07 KM |
| 24 Court Drive | £ 760,000 | 0.07 KM |
| 26 Court Drive | £ 588,500 | 0.07 KM |