Foxton Road, Lubenham, Market Harborough
OS

Foxton Road, Lubenham, Market Harborough

By Oscar James

£ 850,000

Oscar James says ..

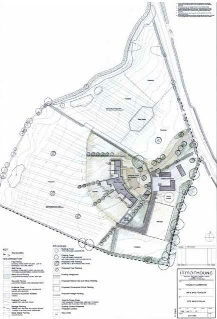
A unique development opportunity, with full planning permission granted for a contemporary grand design style home set down a long driveway approach with panoramic views over its own plot of approximately 11.5 acres. The plot is in an idyllic south-facing position looking towards Foxton ...

Bedrooms
5
Bathrooms
5

The heatmap indicates the level of crime in the area. The color of the heatmap indicates the crime severity and recency.

Metrics Year-on-Year

Average area value
358,568.00 £
Decreased by 12.12 %
from 408,028.00 £
Average area rental value
1,613.00 £/mo
Increased by 14.80 %
from 1,405.00 £/mo
Est rental Yield
5.40 %
Increased by 30.75 %
from 4.13 %
Crime Rate
7.00 %
Unchanged by 0.00 %
from 7.00 %

Agent Activity

  • Oscar James created the listing.

Nearby Schools

NameTypeOfstedDistance
Lubenham All Saints Church Of England Primary SchoolAcademy ConverterGood0.82 KM
Foxton Primary SchoolCommunity SchoolGood1.95 KM
Market Harborough Church Of England AcademyAcademy ConverterGood4.44 KM
St Joseph'S Catholic Voluntary AcademyAcademy ConverterGood4.61 KM
Market Harborough Sure Start Children'S CentreChildren's Centre4.75 KM

Images

1_Update (002).jpeg Ron Renders FULL CGI_Photo - 9.jpg Plot.png Drone Image 3.jpg 2_Update (002).jpeg Plot and view.png Drone render 2.jpg Ron Renders FULL CGI_14 - Photo.jpg Ron Renders FULL CGI_Photo - 5.jpg Ron Renders FULL CGI_Photo - 6.jpg Ron Renders FULL CGI_Photo - 7.jpg Ron Renders FULL CGI_Photo - 10.jpg Ron Renders FULL CGI_11 - Photo.jpg Ron Renders FULL CGI_Photo - 2.jpg 3_Update (002).jpeg 1.jpg Ron Renders FULL CGI_Photo - 4.jpg Ron Renders FULL CGI_Photo - 8.jpg

Nearby Streets

NameAverage PriceAverage SqftDistance
Foxton Road £ 587,50000.00 KM
The Hawthorns £ 325,00000.00 KM
Mill Hill £ 000.00 KM
Church Walk £ 849,00000.00 KM
Stuart Crescent £ 327,47500.00 KM

Nearby Transport

NameNLCTLCDistance
Market Harborough1909MHR6.44 KM

Nearby Listings

AddressPriceTypeScoreDistance
Foxton Road, Lubenham, Market Harborough £ 850,000BUYUnknown0.00 KM
Development Opportunity to the rear of Laughton Road, Lubenham, Market Harborough £ 250,000BUY6 / 100.21 KM
Main Street, Lubenham, Market Harborough £ 425,000BUY7 / 100.35 KM
Main Street, Lubenham, Market Harborough £ 260,000BUY7 / 100.35 KM
The Hawthorns, Main Street, Lubenham £ 315,000BUY7 / 100.35 KM

Nearby Properties

AddressPriceDistance
15 Foxton Road £ 180,0000.13 KM
13 Foxton Road £ 191,2500.13 KM
24 Foxton Road £ 312,5000.13 KM
57 Laughton Road £ 200,0000.22 KM
53 Laughton Road £ 125,0000.22 KM