Key Move says ..
Welcome to this delightful three-bedroom semi-detached home, perfectly situated in a popular location. This charming property offers a wealth of features designed to cater to modern family living, all presented with the added benefit of no onward chain
Property Oracle says ..
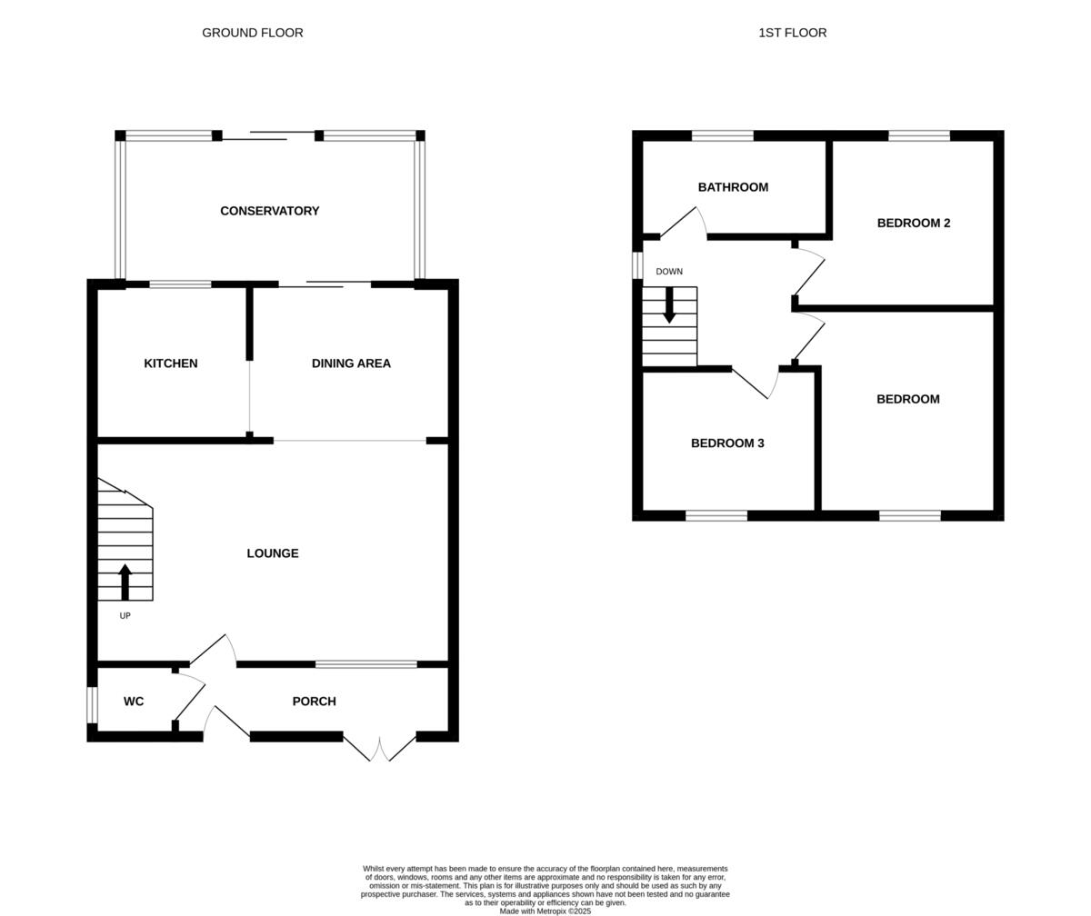
This three-bedroom semi-detached house in Swindon, Wiltshire, is presented by Key Move. The property’s location in Walcot and Park North offers a blend of convenience and family-friendly aspects. Nearby are highly rated primary schools and Greenbridge Retail Park. The relatively close proximity to Swindon town centre provides access to a wider range of amenities and transportation links such as the Swindon (Wilts) train station approximately 3.57 km away. The property’s condition shows a mix of new and older features. Recent renovations include new flooring and a modernized bathroom. However, the kitchen appears dated, and the garden requires some maintenance. The images suggest a decent-sized garden, but exact dimensions remain unknown. The list price of £270,000 needs to be considered in the context of the lack of square footage information, though its placement within the range of prices of similar properties in nearby streets makes it a potentially attractive property for a buyer in this location. A potential buyer should prioritize verifying the condition of the property and comparing with other properties of confirmed size before concluding.
Therefore, we give this property 6 / 10. *Disclaimer: This is our option and does constitute a recommendation or financial advice. Do your own research. *
- Price
- 7
- Condition
- 6
- Location
- 7
- Land
- 4
- Bedrooms
- 3
- Bathrooms
- 1
The heatmap indicates the level of crime in the area. The color of the heatmap indicates the crime severity and recency.
Metrics Year-on-Year
- Average area value
- 481,967.00 £Increased by 28.07 %
- Average area rental value
- 1,254.00 £/moIncreased by 10.97 %
- Est rental Yield
- 3.12 %Decreased by 13.33 %
- Crime Rate
- 11.00 %Unchanged by 0.00 %
Agent Activity
Key Move created the listing.
Nearby Schools
| Name | Type | Ofsted | Distance |
|---|---|---|---|
| Mountford Manor Primary School | Academy Converter | Good | 0.55 KM |
| New College Swindon | Further Education | 0.60 KM | |
| Goddard Park Community Primary School | Academy Converter | Good | 0.78 KM |
| Parks And Walcot Children'S Centre | Children's Centre | 1.03 KM | |
| Oaktree Nursery And Primary School | Community School | Good | 1.13 KM |
Images
Nearby Streets
| Name | Average Price | Average Sqft | Distance |
|---|---|---|---|
| Rogers Close | £ 230,000 | 0 | 0.00 KM |
| Little Walcot Lane | £ 0 | 0 | 0.00 KM |
| Stuart Close | £ 0 | 0 | 0.00 KM |
| Annapurna | £ 280,000 | 0 | 0.00 KM |
| Oakfield Avenue | £ 0 | 0 | 0.00 KM |
Nearby Transport
| Name | NLC | TLC | Distance |
|---|---|---|---|
| Swindon (Wilts) | 3333 | SWI | 3.57 KM |
Nearby Listings
| Address | Price | Type | Score | Distance |
|---|---|---|---|---|
| Courtenay Road, Swindon, SN3 3 | £ 270,000 | BUY | 6 / 10 | 0.00 KM |
| Swindon, Wiltshire, SN3 | £ 280,000 | BUY | 6 / 10 | 0.10 KM |
| Walcot, Swindon | £ 260,000 | BUY | 6 / 10 | 0.13 KM |
| Courtenay Road, Swindon | £ 110,000 | BUY | 6 / 10 | 0.14 KM |
| Naunton Road, Swindon, SN3 | £ 189,500 | BUY | 7 / 10 | 0.19 KM |
Nearby Properties
| Address | Price | Distance |
|---|---|---|
| 34 Buckhurst Crescent | £ 80,000 | 0.07 KM |
| 38 Buckhurst Crescent | £ 169,000 | 0.07 KM |
| 7 Buckhurst Crescent | £ 197,000 | 0.07 KM |
| 12 Buckhurst Crescent | £ 161,000 | 0.07 KM |
| 20 Buckhurst Crescent | £ 135,000 | 0.07 KM |