Stone says ..
*LAST PLOTS REMAINING *Triplex with large private terrace in the moments from London Fields and Broadway market
Property Oracle says ..
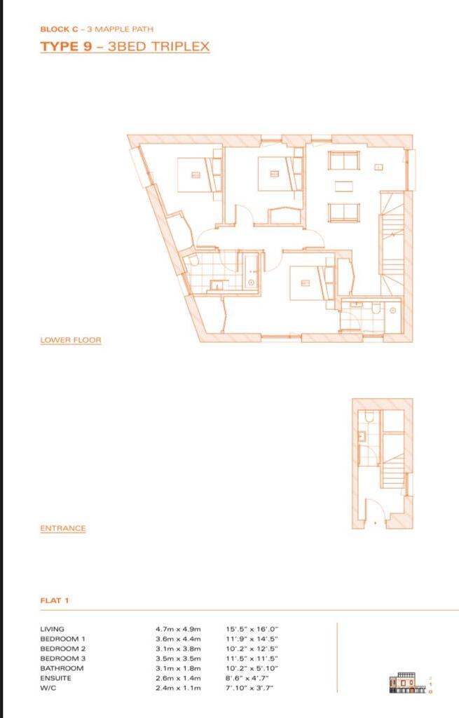
The property is located in Hackney Downs, East London, an area that has seen significant regeneration in recent years. It benefits from excellent transport links with several London Overground stations within a short distance, providing easy access to the city centre and beyond. The area also boasts a good selection of schools, including highly-rated primary schools like The Boxing Academy Ap Free School and Stormont House School. The property itself appears to be a modern apartment in excellent condition, with high-quality fixtures and fittings. The images show a contemporary design and a spacious layout. While specific plot size and square footage are not provided, the property benefits from a balcony offering outdoor space. The list price of £1,340,000 is above the average price for the area (£764,737), but comparable properties in the immediate vicinity support this valuation. Given the modern condition, desirable location, and apparent spaciousness, the price may be justified.
Therefore, we give this property 8 / 10. *Disclaimer: This is our option and does constitute a recommendation or financial advice. Do your own research. *
- Price
- 7
- Condition
- 10
- Location
- 9
- Land
- 6
- Bedrooms
- 3
- Bathrooms
- 2
- Sqft (est)
- 804.71
The heatmap indicates the level of crime in the area. The color of the heatmap indicates the crime severity and recency.
Metrics Year-on-Year
- Average area value
- 309,833.00 £Decreased by 53.44 %
- Est sale value
- 518,233.24 £Decreased by 7.87 %
- Average area rental value
- 2,396.00 £/moIncreased by 9.71 %
- Est letting value
- 3,218.84 £/moIncreased by 100.00 %
- Est rental Yield
- 9.28 %Increased by 135.53 %
- Crime Rate
- 4.00 %Unchanged by 0.00 %
Agent Activity
Stone created the listing.
Nearby Schools
| Name | Type | Ofsted | Distance |
|---|---|---|---|
| Nightingale Primary School | Community School | Good | 0.19 KM |
| The Boxing Academy Ap Free School | Free Schools Alternative Provision | Outstanding | 0.34 KM |
| St Scholastica'S Catholic Primary School | Voluntary Aided School | Good | 0.37 KM |
| Stormont House School | Community Special School | Outstanding | 0.39 KM |
| Al-Falah Primary School | Other Independent School | Good | 0.43 KM |
Images
Nearby Streets
| Name | Average Price | Average Sqft | Distance |
|---|---|---|---|
| Clapton Way | £ 0 | 0 | 0.00 KM |
| Baron's Walk | £ 299,950 | 0 | 0.00 KM |
| Tilia Road | £ 425,000 | 0 | 0.00 KM |
| Tolsford Road | £ 0 | 0 | 0.00 KM |
| Clarence Road | £ 0 | 0 | 0.00 KM |
Nearby Transport
| Name | NLC | TLC | Distance |
|---|---|---|---|
| Hackney Downs | 6867 | HAC | 0.76 KM |
| Rectory Road | 6967 | REC | 0.80 KM |
| Clapton | 6926 | CPT | 0.85 KM |
| Hackney Central | 6977 | HKC | 1.12 KM |
| Stoke Newington | 6934 | SKW | 1.65 KM |
Nearby Listings
| Address | Price | Type | Score | Distance |
|---|---|---|---|---|
| Mapple Path, Hackney Downs, E5 | £ 1,340,000 | BUY | 8 / 10 | 0.00 KM |
| Mapple Path, Hackney Downs, E5 | £ 1,300,000 | BUY | Unknown | 0.04 KM |
| Mapple Path, Hackney Downs, E5 | £ 1,300,000 | BUY | 6 / 10 | 0.04 KM |
| Mapple Path, Hackney | £ 1,300,000 | BUY | 6 / 10 | 0.04 KM |
| Downs Road, London, E5 | £ 500,000 | BUY | 6 / 10 | 0.04 KM |
Nearby Properties
| Address | Price | Distance |
|---|---|---|
| 5 Monro Way | £ 434,695 | 0.04 KM |
| 15 Monro Way | £ 410,500 | 0.04 KM |
| 23 Monro Way | £ 444,375 | 0.04 KM |
| 11 Monro Way | £ 315,000 | 0.04 KM |
| 19 Monro Way | £ 195,000 | 0.04 KM |