1 Barons Road, Motherwell, Lanarkshire, ML1
By Independent Estates
£ 85,000
Reviews
2 out of 5 stars
Independent Estates says ..
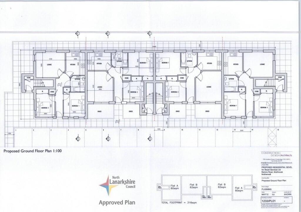
Independent Estates welcome this opportunity to purchase an approved development site. The plot is positioned well and site has been cleared of what was once the old water tower within Motherwell. Planning has been approved to erect a development of eight, two bedroomed apartments within the site...
Property Oracle says ..
This listing is for a development site located at 1 Barons Road, Motherwell, in the ML1 postcode area of North Lanarkshire, Scotland. The site has approved planning permission for the construction of eight, two-bedroom apartments. The property’s key strengths lie in its location near several train stations, increasing its accessibility. However, information about nearby schools and amenities is currently unavailable. The existing site is undeveloped land, meaning there is no standing structure for evaluation. Nearby property prices vary considerably, from small flats at under £50,000 to detached bungalows exceeding £250,000, indicating that the immediate area has a wide price range. The price of this property must therefore be evaluated in terms of development potential, rather than the current state of the plot. The relatively low list price of £85,000 for a site with planning permission for eight apartments may indicate a good investment opportunity; however, this would depend on future construction costs, market conditions, and sales prices of finished units. Therefore, a comprehensive feasibility study would be advisable before purchasing.
Therefore, we give this property 4 / 10. *Disclaimer: This is our option and does constitute a recommendation or financial advice. Do your own research. *
- Price
- 7
- Condition
- 1
- Location
- 6
- Land
- 2
- Bedrooms
- 0
- Bathrooms
- 0
The heatmap indicates the level of crime in the area. The color of the heatmap indicates the crime severity and recency.
Metrics Year-on-Year
- Average area value
- 207,222.00 £Decreased by 2.13 %
- Average area rental value
- 836.00 £/moDecreased by 9.62 %
- Est rental Yield
- 4.84 %Decreased by 7.63 %
- Crime Rate
- 0.00 %
Agent Activity
Independent Estates marked this listing as sold.
Independent Estates created the listing.
Images
Nearby Streets
| Name | Average Price | Average Sqft | Distance |
|---|---|---|---|
| Merryton Road | £ 0 | 0 | 0.00 KM |
| Broad Cairn Court | £ 0 | 0 | 0.00 KM |
| Muirhouse Drive | £ 0 | 0 | 0.00 KM |
| Bannoch Place | £ 0 | 0 | 0.00 KM |
| Muirhouse Avenue | £ 123,699 | 0 | 0.00 KM |
Nearby Transport
| Name | NLC | TLC | Distance |
|---|---|---|---|
| Shieldmuir | 9552 | SDM | 0.83 KM |
| Merryton | 9705 | MEY | 3.17 KM |
| Wishaw | 9694 | WSH | 3.69 KM |
| Larkhall | 9728 | LRH | 3.95 KM |
| Airbles | 9695 | AIR | 4.05 KM |
Nearby Listings
| Address | Price | Type | Score | Distance |
|---|---|---|---|---|
| 1 Barons Road, Motherwell, Lanarkshire, ML1 | £ 85,000 | BUY | 4 / 10 | 0.00 KM |
| Merryton Road, Motherwell | £ 129,995 | BUY | 6 / 10 | 0.15 KM |
| Broad Cairn Court, Motherwell, Lanarkshire, ML1 | £ 120,000 | BUY | 5 / 10 | 0.17 KM |
| Broad Cairn Court, Motherwell, Lanarkshire, ML1 | £ 120,000 | BUY | Unknown | 0.17 KM |
| Muirhouse Drive, Muirhouse, Motherwell | £ 120,000 | BUY | 6 / 10 | 0.19 KM |